房屋信息
一定要看见!/和角头B灯光和自然阳光灯光套间位于中心列治文山.列治文山之心的太阳之光和自然之光套房。 3床+1 书房开放概念 2 侧侧停车点。带有开放门厅的双门入口。大鲍K尼(阳台),有走入式衣柜的初级睡房. 24 Hr大门的社区与门屋.最好学校的ZONE!明斯至时代广场,餐厅,电影院,中转,高速公路 407和404以及学校.参加奢华的25,000 sf设施独家喜来登公园酒店健身和游乐俱乐部,其中包括:室内/室外游泳池、网球法院、健身和锻炼、桑拿、心肺和瑜伽类、蒸汽室和平地法院
主要特征
- 朝向: 西南

- 睡房: 3+1

- 洗手间: 2

- 车库: 2

- 厨房: 1

重要信息
- 空间: 1200-1399

- 管理费: $ 1012.83

- 地税: $ 3065.96

- N12782880

- Listing contracted with: CENTURY 21 ATRIA REALTY INC.
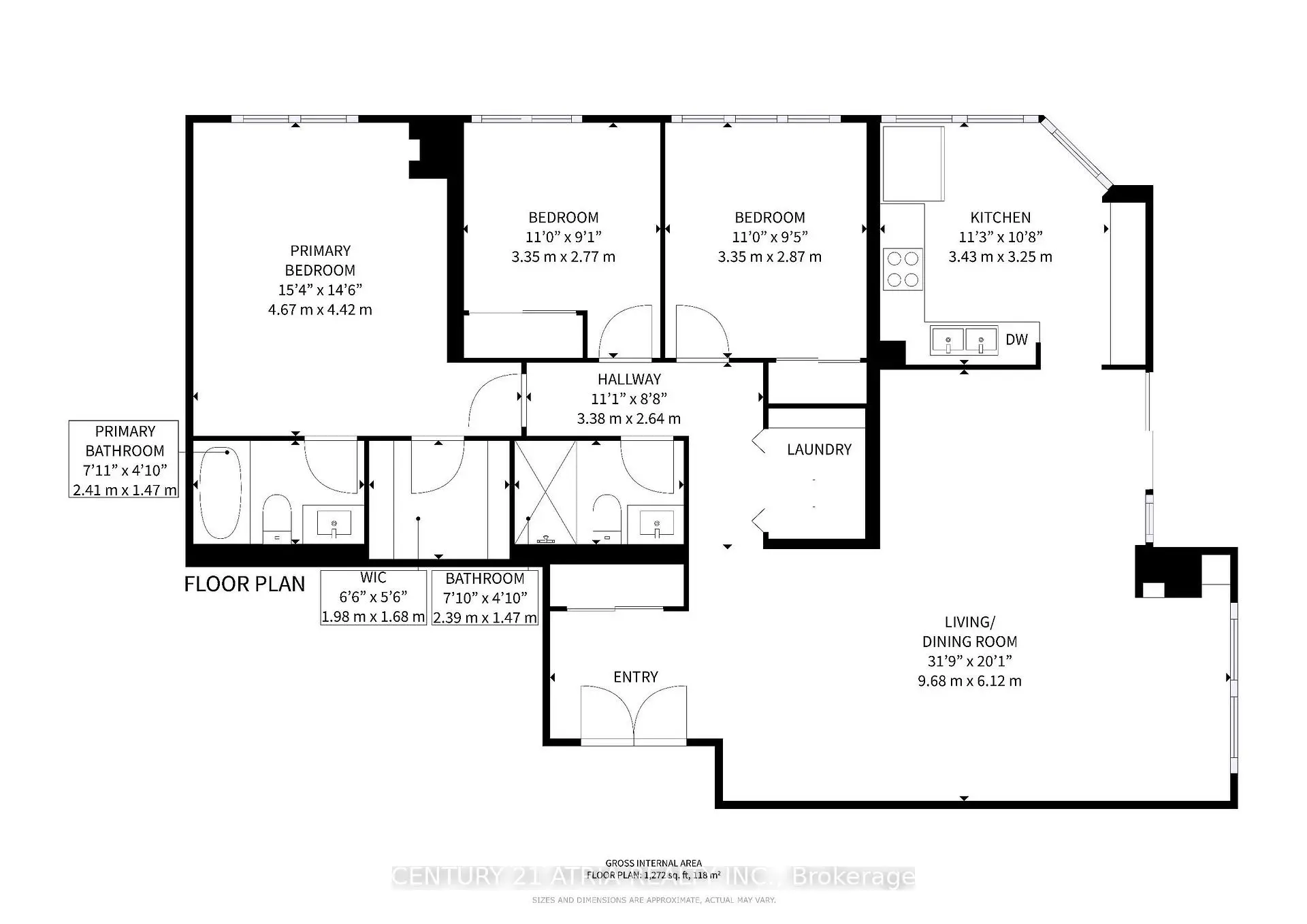
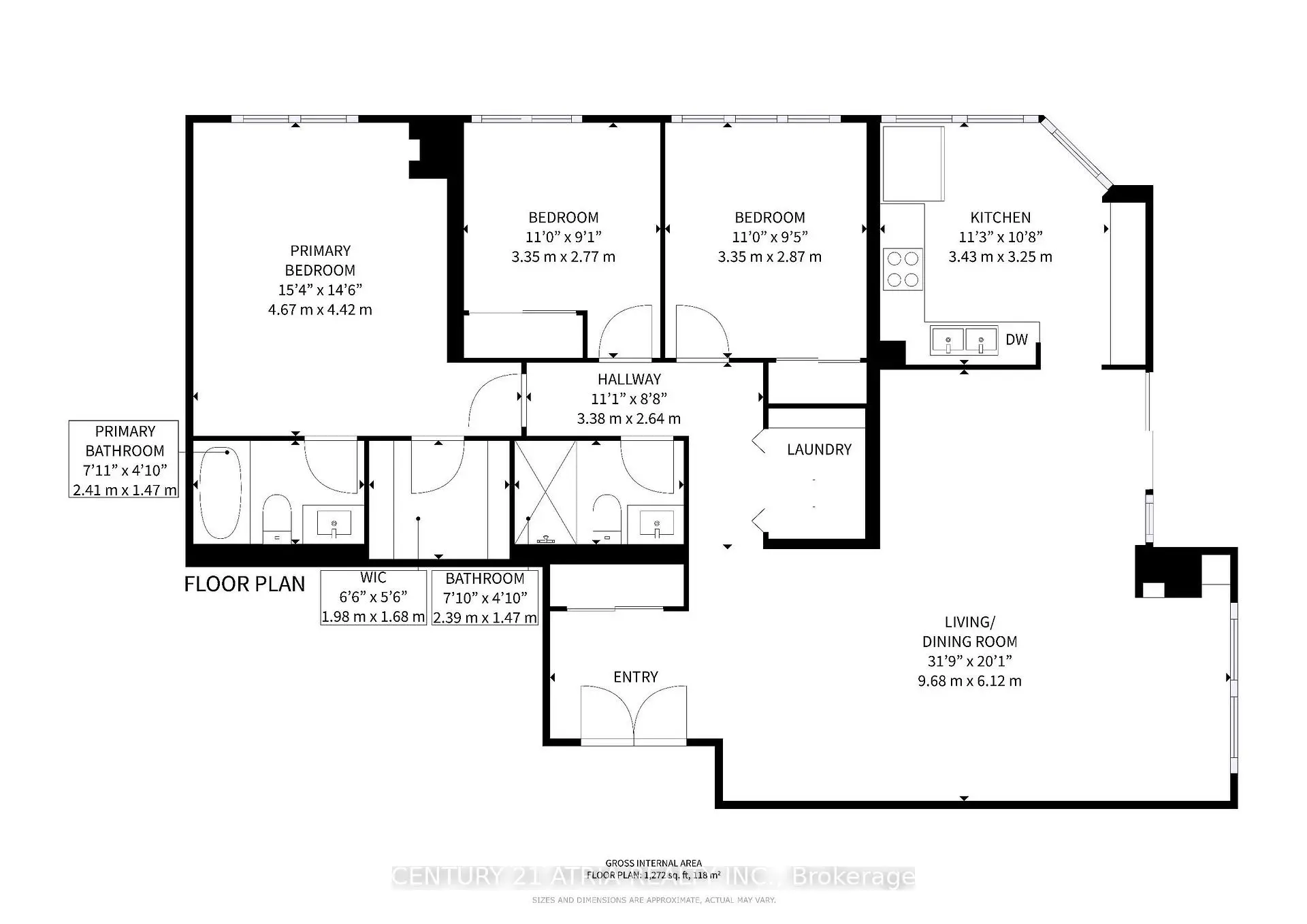
| 房间 | 尺寸(平方米) | 细节描述 | |
|---|---|---|---|
| 客厅 Rm | 9.68x6.12 | 合并餐饮, 开放式概念, 复合地板 |
|
| 晚餐室 Rm | 9.68x6.12 | 合并客厅, 走出式阳台, 复合地板 |
|
| 厨房 | 3.43x3.25 | 南向, 大窗, 瓷砖地板 |
|
| 学习室 | 9.68x6.12 | 合并餐饮, 大窗, 复合地板 |
|
| Primary B | 4.67x4.42 | 4pcs卫生间套间, , 复合地板 |
|
| 第二间卧室 | 3.35x2.87 | 壁橱, 大窗, 复合地板 |
|
| 第三间卧室 | 3.35x2.77 | 壁橱, 大窗, 复合地板 |
| 卫生间 | 卫浴件数 | 所在楼层 | |
|---|---|---|---|
| 1间 | 4件套 | 主层 |
|
| 1间 | 3件套 | 主层 |
房屋简介
房屋位于Highway 7 And Leslie交界附近, 这间3房2卫双车库Condo Apt户型朝西南向. #219-9017 Leslie St拥有双停车位并带有一个室内储藏空间. 房屋及周边设施包括Other等. .Grand Parkway Residences II
9017 Leslie St是由房地产建筑商Condo Developer开发的, 物业年龄23年左右。该公寓大楼大约有13层219个单元。Grand Parkway Residences II的设施包括用:桑拿房,安全系统,室内游泳池,健身房,室外游泳池,访客停车位和壁球场。每月物业管理费1012.83加元包括用水. 目前9017 Leslie St大约有1间公寓在售3间在出租。学校信息
小学
-
-
法语沉浸课程学校
在 3022学校里排名 1 (分数: 10.0)距离学校1.7公里 (走路大约30分钟) -
-
中学
-
对口学区学校排名: 20/746 (分数: 9.0) 5年平均分: 50/746 (分数: 8.0)距离学校2.7公里 (开车大约8分钟)
-
法语沉浸课程学校
排名: 20/746 (分数: 9.0) 5年平均分: 50/746 (分数: 8.0)距离学校2.7公里 (开车大约8分钟) -
艺术特色学校
排名: 100/746 (分数: 7.9) 5年平均分: 60/746 (分数: 7.9)距离学校6.8公里 (开车大约20分钟) -
AP课程学校 IB课程
排名: 67/746 (分数: 8.2) 5年平均分: 109/746 (分数: 7.5)距离学校6.0公里 (开车大约18分钟) -
天主教对口学区学校
排名: 1/746 (分数: 10.0) 5年平均分: 2/746 (分数: 9.3)距离学校1.4公里 (走路大约25分钟) -
天主教AP课程学校
排名: 89/746 (分数: 8.0) 5年平均分: 135/746 (分数: 7.3)距离学校5.2公里 (开车大约16分钟) -

















































