房屋信息
Beautifully renovated detached home in one of Markham's most sought-after family communities. Offering just under 2,000 sq. ft., this 3+1 bedroom, 4-bath home features a bright, functional layout with rare East & West exposure that fills the space with natural light all day.Spacious living and dining areas flow into a modern kitchen with large pantry and sun-filled breakfast area. Family room with fireplace and oversized windows is ideal for everyday living and entertaining.Primary retreat includes a spa-inspired ensuite with stand-alone tub and separate glass shower. Three generous bedrooms offer ample storage.Finished basement with bedroom, full bath, kitchen and dining area provides in-law suite or income potential (buyer to verify).Single garage + extended interlock driveway parking for 3 cars. Fully renovated top to bottom. Close to parks, top-rated schools, shopping and major amenities. Turnkey home in a strong, high-demand neighbourhood.
主要特征
- 朝向: 后院朝西

- 睡房: 3

- 卫生间: 4

- 车库: 1

- 厨房: 1

重要信息
- 占地面接: 37.03 x 89.68 Feet

- 室内面积: 1500-2000

- 地税: $ 5132.02

- N12996504

- Listing contracted with: ROYAL LEPAGE VISION REALTY
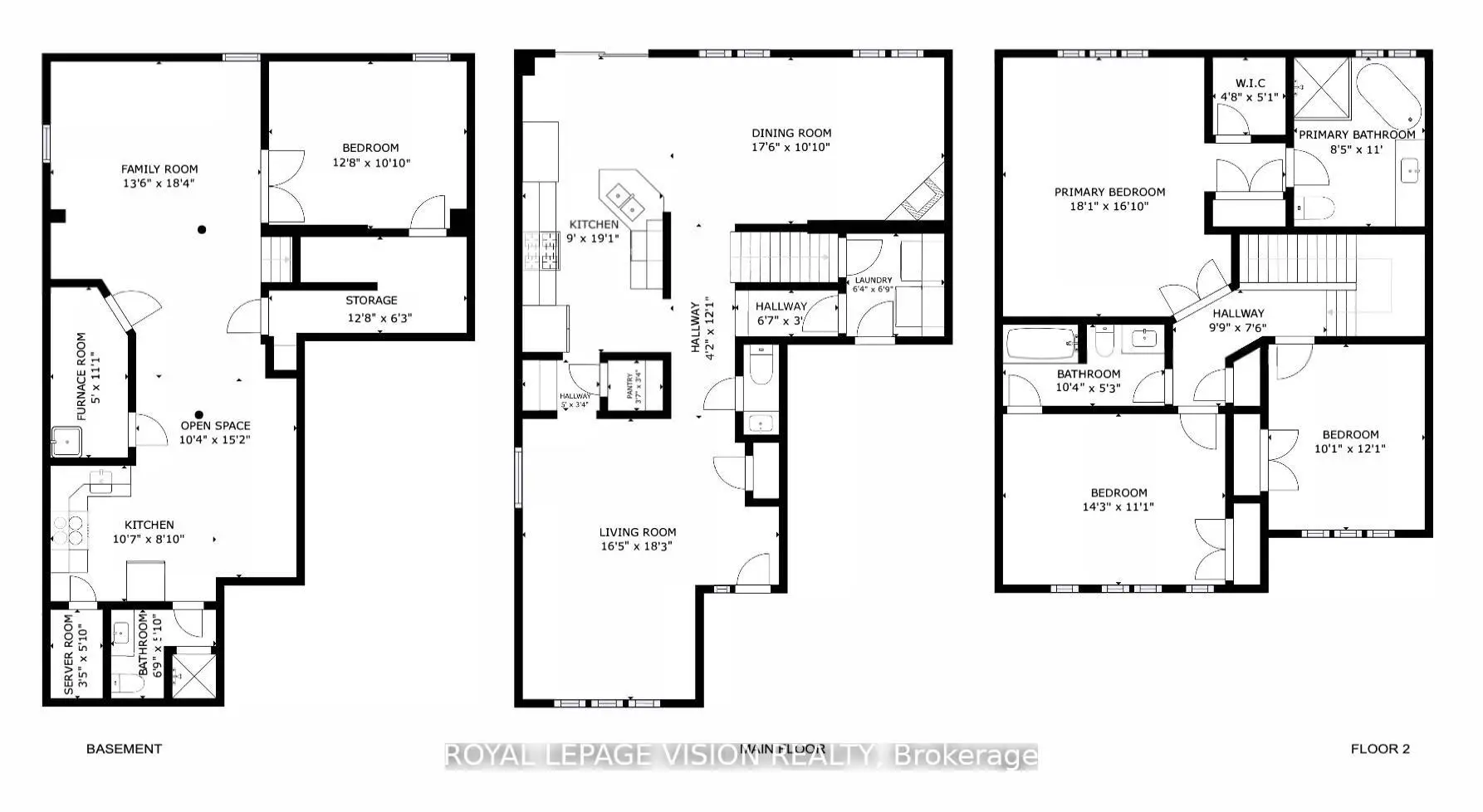
| 房间 | 尺寸(平方米) | 细节描述 | |
|---|---|---|---|
| 客厅 Rm | 5.38x4.31 | 复合地板, 开放式概念, 顶灯 |
|
| 晚餐室 Rm | 5.38x4.31 | 复合地板, 合并客厅, 顶灯 |
|
| 厨房 | 7.23x3.03 | 复合地板, , 茶水间 |
|
| 家庭房 Rm | 5.33x3.37 | 复合地板, 煤气壁炉, 顶灯 |
|
| Primary B | 5.14x3.93 | 复合地板, 5pcs卫生间套间, |
|
| 第二间卧室 | 4.28x3.43 | 复合地板, 双壁橱, 半套卫生间 |
|
| 第三间卧室 | 3.74x3.04 | 复合地板, 双壁橱 |
|
| 娱乐室reatio | 8.03x6.80 | 复合地板, L型房, 顶灯 |
|
| 第四间卧室 | 2.75x2.33 | 复合地板, , 顶灯 |
| 卫生间 | 卫浴件数 | 所在楼层 | |
|---|---|---|---|
| 1间 | 5件套 | Second |
|
| 1间 | 4件套 | Second |
|
| 1间 | 2件套 | 主层 |
|
| 1间 | 3件套 | Basement |
房屋简介
房屋位于Markham and Bur Oak and 9th Line交界附近, 这间3房4卫单车库两层独立房户型朝西向. 124 Alfred Paterson Dr拥有单连接式停车位. 地下室Apartment Separate Ent. 房屋及周边设施包括In-LawCapability和CarpetFree等. 客厅 Rm, 晚餐室 Rm, 厨房和 家庭房 Rm在主层.学校信息
小学
-
-
法语沉浸课程学校
在 3022学校里排名 387 (分数: 7.9)距离学校3.6公里 (开车大约11分钟) -
-
天主教天才项目学校
在 3022学校里排名 219 (分数: 7.0) 5年平均分: 257/3022 (分数: 6.6)距离学校0.7公里 (走路大约13分钟) -
中学
-
过渡对口学校排名: 11/746 (分数: 9.3) 5年平均分: 16/746 (分数: 8.7)距离学校2.8公里 (开车大约8分钟)
-
-
艺术特色学校
排名: 24/746 (分数: 8.9) 5年平均分: 9/746 (分数: 8.9)距离学校9.0公里 (开车大约27分钟) -
AP课程学校 IB课程
排名: 16/746 (分数: 9.1) 5年平均分: 41/746 (分数: 8.2)距离学校8.8公里 (开车大约26分钟) -
天主教对口学区学校
排名: 67/746 (分数: 8.2) 5年平均分: 152/746 (分数: 7.3)距离学校1.5公里 (走路大约28分钟) -
天主教AP课程学校
排名: 67/746 (分数: 8.2) 5年平均分: 152/746 (分数: 7.3)距离学校1.5公里 (走路大约28分钟) -
天主教天才项目学校
排名: 67/746 (分数: 8.2) 5年平均分: 152/746 (分数: 7.3)距离学校1.5公里 (走路大约28分钟)
















































