房屋信息
将近1500 sq.生活空间,2个卧室,2个浴室,平地计划,巨大的潜力使它成为你自己,大校长室。南北观相.明亮的宽敞厨房,走出阳台,竖纵停车场,2辆汽车,大便利设施。
主要特征
- 朝向: 西

- 睡房: 2

- 洗手间: 2

- 车库: 1

- 厨房: 1

重要信息
- 空间: 1400-1599

- 管理费: $ 1266.67

- 地税: $ 4154.33

- N12936204

- Listing contracted with: FOREST HILL REAL ESTATE INC.
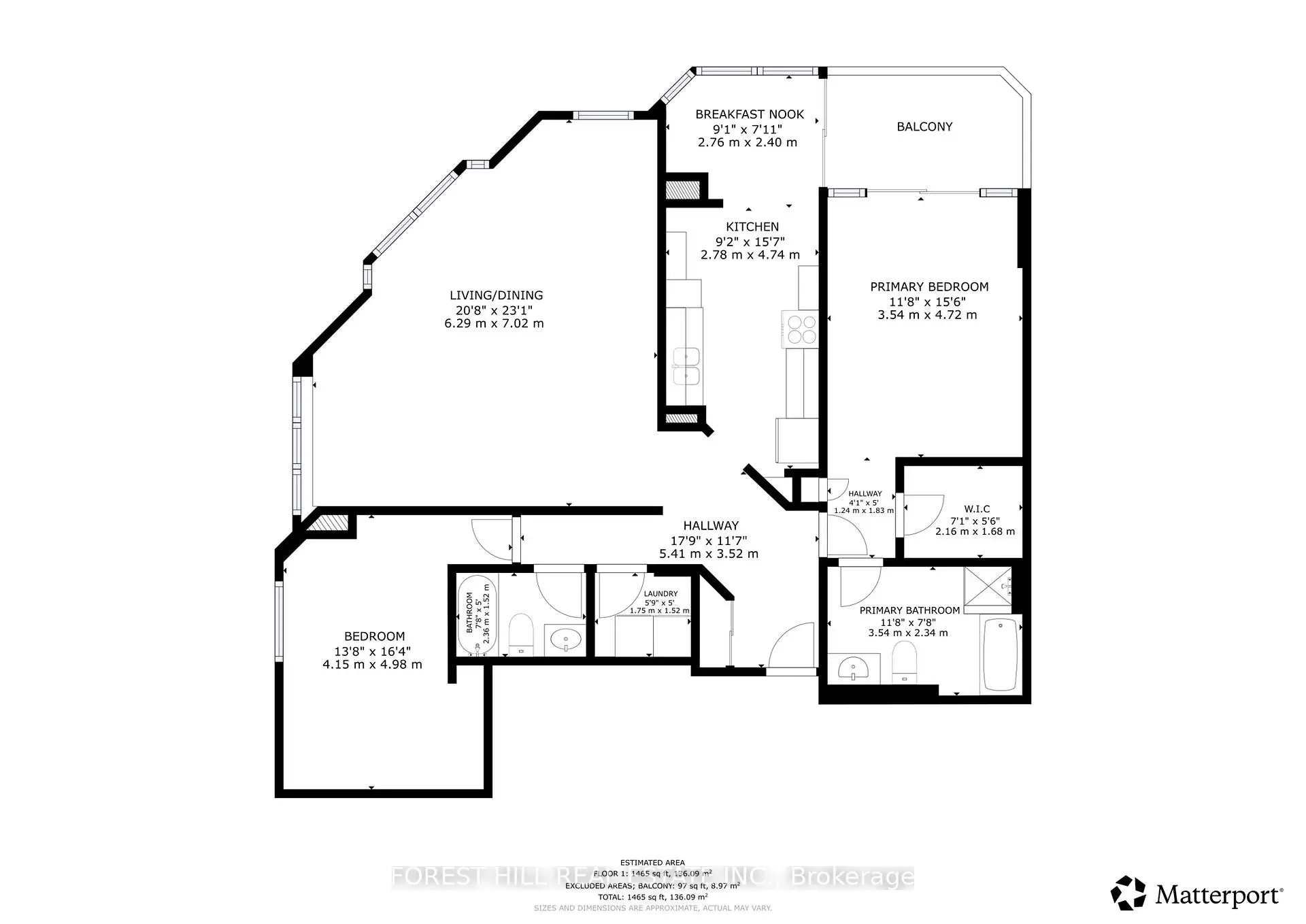
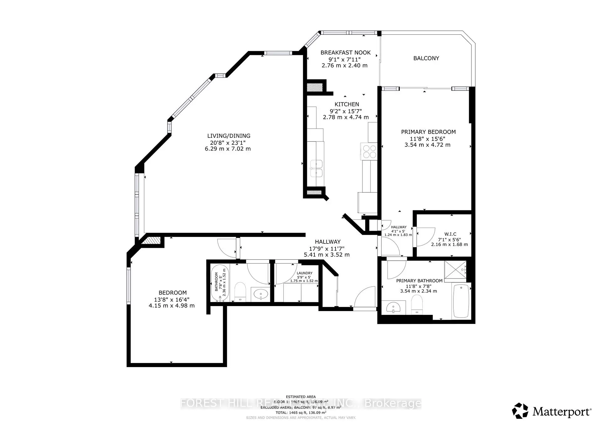
| 房间 | 尺寸(平方米) | 细节描述 | |
|---|---|---|---|
| 客厅 Rm | 6.29x7.02 | 合并餐饮, 开放式概念 |
|
| 晚餐室 Rm | 6.29x7.02 | 合并客厅 |
|
| 厨房 | 2.78x4.74 | 陶瓷地板, |
|
| 早餐室 | 2.76x2.40 | 窗户 |
|
| Primary B | 3.54x4.72 | 走出式阳台, 4pcs卫生间套间, |
|
| 第二间卧室 | 4.15x4.98 | 双壁橱, 窗户 |
| 卫生间 | 卫浴件数 | 所在楼层 | |
|---|---|---|---|
| 2间 | 4件套 |
房屋简介
房屋位于Clark and Yonge交界附近, 这间2房2卫双车库Condo Apt户型朝西向. #203-343 Clark Ave W拥有双停车位. 房屋及周边设施包括CarpetFree和PrimaryBedroom-Main等. 客厅 Rm, 晚餐室 Rm, 厨房, 早餐室, Primary B和 第二间卧室在一层.The Conservatory II
343 Clark Ave W是由房地产建筑商Conservatory GroupThe Conservatory Group is a family business considered to be one of Canada's largest developers/builders, providing prestigious luxury high-rise residential apartments to the entire GTA's low-rise communities.
开发的, 物业年龄37年左右。该公寓大楼大约有18层143个单元。The Conservatory II的设施包括用:会客厅,安全系统,壁球场,室内游泳池,访客停车位和宾客套房。每月物业管理费1266.67加元包括用电缆电视,暖气,水,电和空调. 目前343 Clark Ave W大约有4间公寓在售0间在出租。 学校信息
小学
-
-
法语沉浸课程学校
在 3022学校里排名 337 (分数: 8.0)距离学校0.2公里 (走路大约3分钟) -
-
-
天主教法语沉浸课程学校
在 3022学校里排名 1101 (分数: 6.7)距离学校2.7公里 (开车大约8分钟) -
中学
-
天才项目学校
排名: 112/746 (分数: 7.8) 5年平均分: 87/746 (分数: 7.7)距离学校1.4公里 (走路大约25分钟) -
法语沉浸课程学校
排名: 52/746 (分数: 8.4) 5年平均分: 76/746 (分数: 7.8)距离学校2.8公里 (开车大约8分钟) -
艺术特色学校
排名: 100/746 (分数: 7.9) 5年平均分: 60/746 (分数: 7.9)距离学校2.0公里 (走路大约36分钟) -
AP课程学校 IB课程
排名: 67/746 (分数: 8.2) 5年平均分: 109/746 (分数: 7.5)距离学校7.2公里 (开车大约22分钟) -
天主教对口学区学校
排名: 141/746 (分数: 7.5) 5年平均分: 169/746 (分数: 7.1)距离学校1.6公里 (走路大约29分钟) -
天主教AP课程学校
排名: 112/746 (分数: 7.8) 5年平均分: 87/746 (分数: 7.7)距离学校9.1公里 (开车大约27分钟) -












































