房屋信息
欢迎来到这间一号卧室以及位于Thornhill最有追求的社区之一的公寓这种精心设计的套房的外观布局是开放式的,大楼面可到天花板的窗户和奇妙的完成.厨房提供不锈钢电器,花岗岩柜台,并有充足的储存,是烹饪或娱乐的理想.多才多艺的洞穴为家庭办公室、客房或读书点提供了完美的空间。主卧室已完工,有一大块双层衣柜和丰富的自然光.享受你的私人阳台美景,套间洗衣房,和昂贵的建筑设施,包括健身中心,聚会室,24小时客房,和游客停车。这座公寓将便利与舒适地生活结合起来,对首次购买者、专业人员或投资者来说都是完美的。
主要特征
- 朝向: 东

- 睡房: 1+1

- 洗手间: 1

- 车库: 1

- 厨房: 1

重要信息
- 空间: 700-799

- 管理费: $ 746.66

- 地税: $ 2572.00

- N12794034

- Listing contracted with: RE/MAX REALTRON REALTY INC.
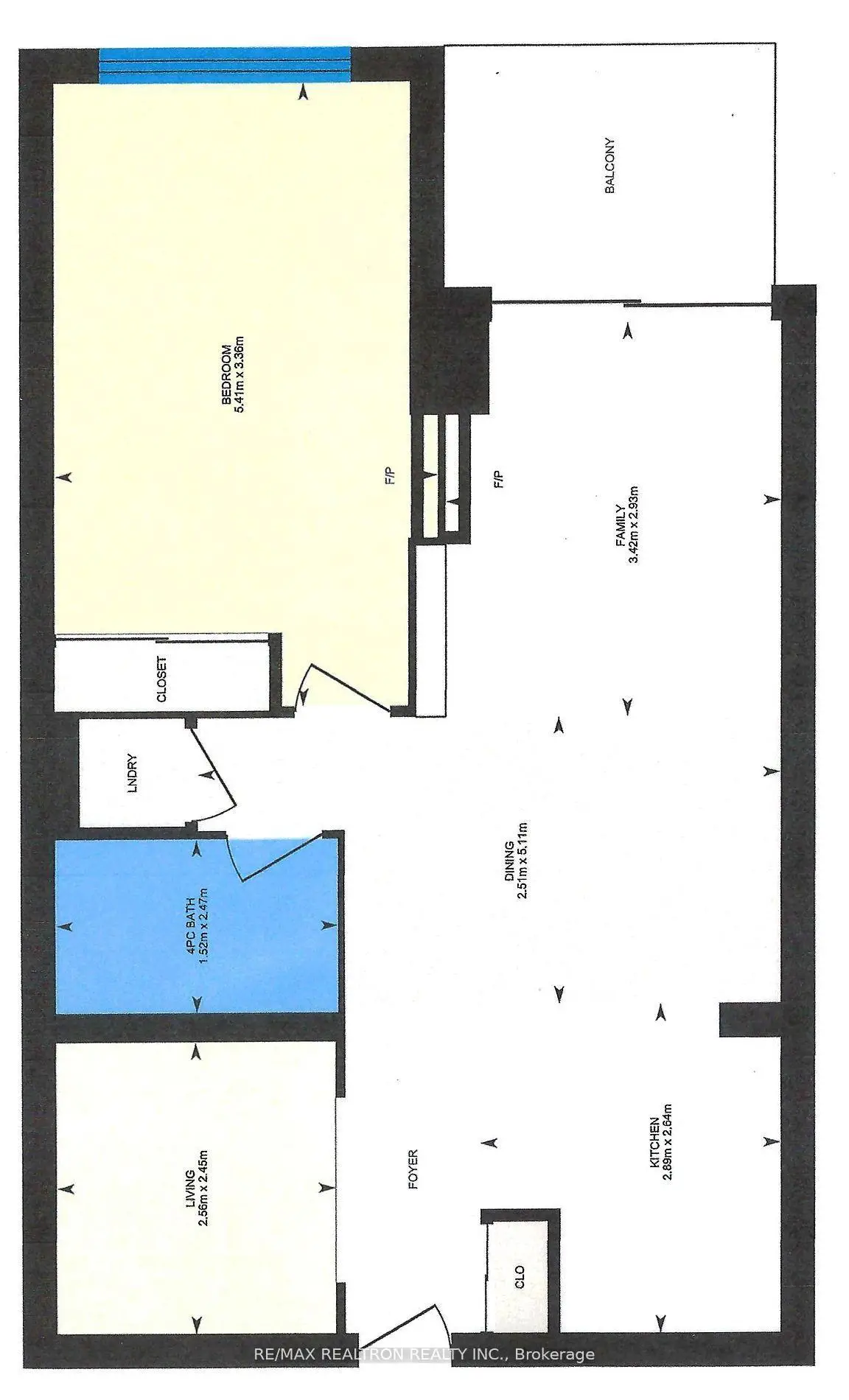
| 房间 | 尺寸(平方米) | 细节描述 | |
|---|---|---|---|
| 厨房 | 2.89x2.64 | 不锈钢电器, , 双水池 |
|
| 晚餐室 Rm | 3.82x2.53 | 复合地板, 皇冠顶饰, 合并客厅 |
|
| 客厅 Rm | 3.21x2.53 | 走出式阳台, 皇冠顶饰, 复合地板 |
|
| Primary B | 5.28x3.36 | , 双壁橱, 东向 |
|
| 书房 | 2.65x2.45 | 复合地板, 双门 |
| 卫生间 | 卫浴件数 | 所在楼层 | |
|---|---|---|---|
| 1间 | 4件套 | 主层 |
房屋简介
房屋位于Bathurst and Centre交界附近, 这间1房1卫单车库Condo Apt户型朝东向. #608-100 Promenade Circ拥有单停车位并带有一个室内储藏空间. 房屋及周边设施包括Other等. 厨房, 晚餐室 Rm, 客厅 Rm, Primary B和 书房在主层.Promenade Park
100 Promenade Circ是由房地产建筑商Forest Hill Homes开发的, 物业年龄20年左右。该公寓大楼大约有16层168个单元。Promenade Park的设施包括用:健身房,24/7前台服务&保安,室内游泳池,会客厅,访客停车位,宾客套房和桑拿房。每月物业管理费746.66加元包括用暖气,水和空调. 目前100 Promenade Circ大约有3间公寓在售0间在出租。学校信息
小学
-
-
法语沉浸课程学校
在 3022学校里排名 963 (分数: 6.9)距离学校1.8公里 (走路大约32分钟) -
天主教法语沉浸课程学校
在 3022学校里排名 1101 (分数: 6.7)距离学校1.3公里 (走路大约24分钟) -
中学
-
对口学区学校排名: 100/746 (分数: 7.9) 5年平均分: 60/746 (分数: 7.9)距离学校1.2公里 (走路大约21分钟)
-
法语沉浸课程学校
排名: 52/746 (分数: 8.4) 5年平均分: 76/746 (分数: 7.8)距离学校1.5公里 (走路大约28分钟) -
艺术特色学校
排名: 100/746 (分数: 7.9) 5年平均分: 60/746 (分数: 7.9)距离学校1.2公里 (走路大约21分钟) -
AP课程学校 IB课程
排名: 67/746 (分数: 8.2) 5年平均分: 109/746 (分数: 7.5)距离学校7.0公里 (开车大约21分钟) -
天主教对口学区学校
排名: 141/746 (分数: 7.5) 5年平均分: 169/746 (分数: 7.1)距离学校0.4公里 (走路大约8分钟) -
天主教AP课程学校
排名: 112/746 (分数: 7.8) 5年平均分: 87/746 (分数: 7.7)距离学校7.9公里 (开车大约24分钟) -






















