房屋信息
一定要看见!鲁K西里K的新康多在发达的中央沃恩,明亮和功能开放的概念,两个卧室大角套房和/2 全浴室与827sqf +阳台!太阳被暴露在南方东,北取景. Promenade 公园 tower),是索恩希尔现代城市生活的新表现.一个城镇全新氛围 at Bathurst/中心st,连接时髦的波多姆住宅和一个抬高的20,000 sq. Ft.户外绿色屋顶露台.令人惊叹的安逸,直接进入Promenade购物中心。附近有很多商店仓库沃尔玛方便的接近中转,有轨迹,公园和惊人的购物和设计。现代生活在它的最好!极受欢迎,走远到有名望的学校-布朗里奇公立学校。目前,租户愿意留下来或离开。如果财产是供个人使用,将列入价格。维护费包括水、热和高速互联网
主要特征
- 朝向: 东北

- 睡房: 2

- 洗手间: 2

- 车库: 1

- 厨房: 1

重要信息
- 空间: 800-899

- 房龄: New
- 管理费: $ 593.09

- 地税: $

- N12592674

- Listing contracted with: CENTURY 21 KENNECT REALTY
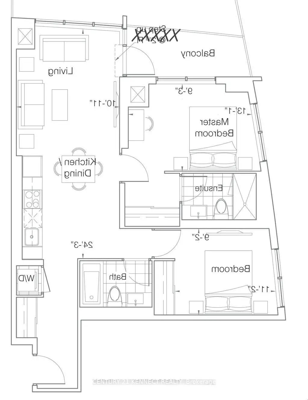
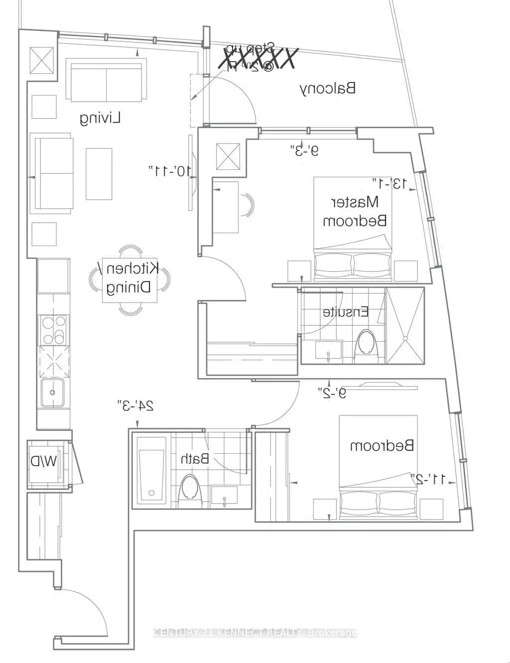
| 房间 | 尺寸(平方米) | 细节描述 | |
|---|---|---|---|
| 客厅 Rm | 7.40x3.33 | 合并餐饮, 走出式阳台, 复合地板 |
|
| 晚餐室 Rm | 7.40x3.33 | 合并厨房, 开放式概念, 复合地板 |
|
| 厨房 | 7.40x3.33 | 合并餐饮, 智能家电, 复合地板 |
|
| Primary B | 4.00x2.82 | 3pcs卫生间套间, 大窗, 复合地板 |
|
| 第二间卧室 | 3.40x2.80 | 壁橱, 大窗, 复合地板 |
|
| Bath | 0.00x0.00 | 石英台面, 陶瓷地板, 三件套卫生间 |
|
| Bath | 0.00x0.00 | 石英台面, 陶瓷地板, 4 件套卫生间 |
| 卫生间 | 卫浴件数 | 所在楼层 | |
|---|---|---|---|
| 1间 | 3件套 | 主层 |
|
| 1间 | 4件套 | 主层 |
房屋简介
房屋位于Bathurst St. and Clark Ave.交界附近, 这间2房2卫单车库Condo Apt户型朝东北向. #B-432-50 Upper Mall Way拥有单停车位. 房屋及周边设施包括PrimaryBedroom-Main和Built-InOven等. 客厅 Rm, 晚餐室 Rm, 厨房, Primary B, 第二间卧室, Bath和 Bath在主层.Promenade Park Towers- Building B
50 Upper Mall Way是由房地产建筑商Liberty Development Corporation开发的, 物业年龄1年左右。该公寓大楼大约有30层327个单元。Promenade Park Towers- Building B的设施包括用:前台服务,宾客套房,会客厅,健身房,台球室,宾客套房和屋顶花园。目前50 Upper Mall Way大约有13间公寓在售5间在出租。学校信息
小学
-
-
法语沉浸课程学校
在 3022学校里排名 963 (分数: 6.9)距离学校1.7公里 (走路大约30分钟) -
天主教法语沉浸课程学校
在 3022学校里排名 1101 (分数: 6.7)距离学校1.5公里 (走路大约27分钟) -
中学
-
对口学区学校排名: 100/746 (分数: 7.9) 5年平均分: 60/746 (分数: 7.9)距离学校1.3公里 (走路大约24分钟)
-
法语沉浸课程学校
排名: 52/746 (分数: 8.4) 5年平均分: 76/746 (分数: 7.8)距离学校1.6公里 (走路大约29分钟) -
艺术特色学校
排名: 100/746 (分数: 7.9) 5年平均分: 60/746 (分数: 7.9)距离学校1.3公里 (走路大约24分钟) -
AP课程学校 IB课程
排名: 67/746 (分数: 8.2) 5年平均分: 109/746 (分数: 7.5)距离学校7.2公里 (开车大约21分钟) -
天主教对口学区学校
排名: 141/746 (分数: 7.5) 5年平均分: 169/746 (分数: 7.1)距离学校0.4公里 (走路大约7分钟) -
天主教AP课程学校
排名: 112/746 (分数: 7.8) 5年平均分: 87/746 (分数: 7.7)距离学校8.2公里 (开车大约24分钟) -

















































