房屋信息
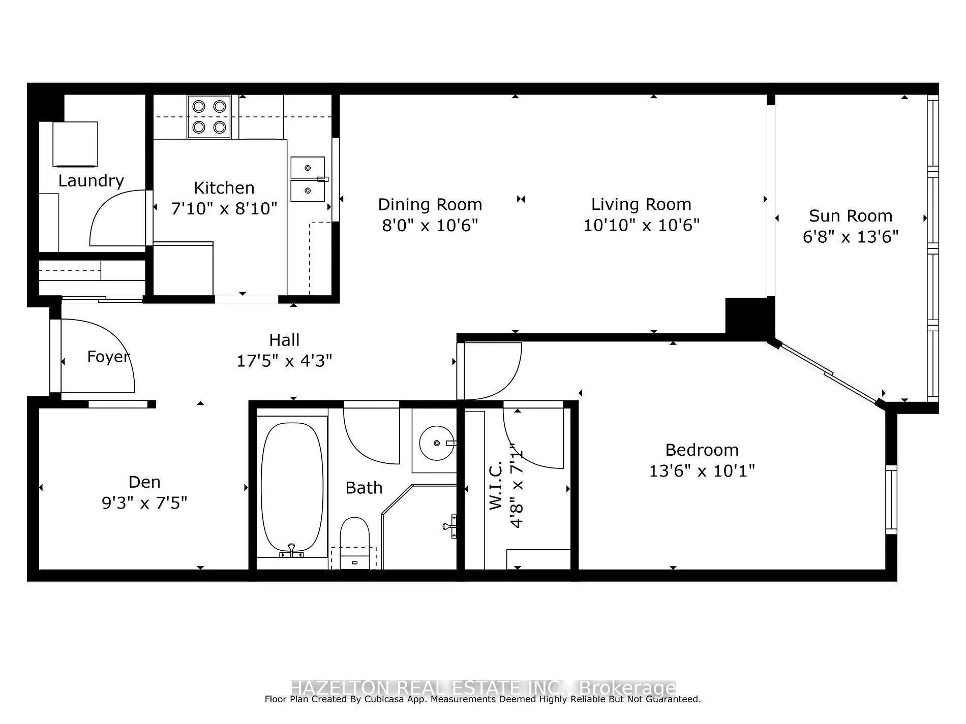
欢迎来到225 davenport,一个豪华的住家,这个宽敞的1+地穴加日光室提供了难得的舒适和魅力就在约K维尔的边缘。该套房从东面的窗户上沐浴出晨光,享有和平的花园和树顶观光,远离avenue Road和davenport的hum.内部,平滑的天花板(没有爆米花),一个带有全新的电炉的升级厨房,以及新鲜的窗户遮盖,创造了一个既能感觉精致又能被邀请的可移动的家.宽敞的居住空间使其易于娱乐或简单地松风取乐,并配有宽敞的卧室,该卧室适合全套家具,并具有走入衣柜的特色,并配有能增加魅力和性格感的无时无地的木百叶窗.入口外的单独地穴为家用办公室提供了灵活空间,而日光室则以宁静的花园前景来扩大生活区.大型浴室有浴缸式浴缸和有充足储藏的小洗衣房,增加了日常的便利.大楼本身以其友好的工作人员而出名,设施包括一个具有天线景观的奇特屋顶露台和烧烤,一个设备精良的健身房和有风格的聚会室。这座房子是一个难得的机会,提供了近900平方英尺的不可战胜的正方形镜头,质量和价值在一个街区,空间以高价来。维修费中包括的所有公用事业。
主要特征
- 朝向: 东

- 睡房: 1+2

- 洗手间: 1

- 车库: 1

- 厨房: 1

重要信息
- 空间: 800-899

- 管理费: $ 1403.58

- 地税: $ 3227.00

- C12950148

- Listing contracted with: HAZELTON REAL ESTATE INC.
| 房间 | 尺寸(平方米) | 细节描述 | |
|---|---|---|---|
| 客厅 Rm | 5.73x3.21 | 合并餐饮, 东向 |
|
| Primary B | 4.12x3.07 | , 东向 |
|
| 书房 | 2.81x2.26 | ||
| Sunroom | 2.04x4.12 | 东向, |
| 卫生间 | 卫浴件数 | 所在楼层 | |
|---|---|---|---|
| 1间 | 4件套 |
房屋简介
房屋位于中城区南部临界多伦多市区Davenport Rd and Avenue Rd.交界附近, 这间1房1卫单车库Condo Apt户型朝东向. #211-225 Davenport Rd拥有单停车位并带有一个室内储藏空间. 房屋及周边设施包括Other等. 客厅 Rm, Primary B, 书房和 Sunroom在主层.The Dakota
225 Davenport Rd是由房地产建筑商Dakota Land Corp开发的, 物业年龄38年左右。该公寓大楼大约有6层101个单元。The Dakota的设施包括用:桑拿房,安全系统和保安。每月物业管理费1403.58加元包括用暖气,水,电和空调. 目前225 Davenport Rd大约有2间公寓在售1间在出租。学校信息
小学
-
对口学区学校在 3022学校里排名 433 (分数: 7.8)距离学校0.3公里 (走路大约6分钟)
-
-
-
-
中学
-
艺术特色学校
排名: 404/746 (分数: 5.9) 5年平均分: 553/746 (分数: 4.5)距离学校1.8公里 (走路大约32分钟) -
-















































