房屋信息
多伦多市中心进入这间1,950平方英尺的公寓,渐渐地渐渐淡出距离,让位于一种罕见的隐私感、比例感和平静感。前街80号818套房东为罕见的倒座式平房,两间房,两间全盆式住宅,生活如家出所出,舒适,规模,生活便利常与一所住宅相接,而不会牺牲市区公寓生活的便利.手接式的硬木地板,九英尺高的天花板和花冠模具创造了一个由人构成和受人欢迎的背景.开放式布局自然地从活到吃饭到厨房,由凯撒斯通石刻上一个有定制地幔的烧木壁炉来支撑.厨房的特色是一个慷慨的凯撒斯通岛,匹配了柜台和回放,并定制了为日常实用而设计的柜子.主要套房是自定义地上至上层壁橱的静静地后退和精心设计的后继出水自吹自擂,淋浴面积过大,被石头砸倒的洗手台和Rubinet固定装置.完成于卡拉拉瓷砖和大理石的第二道全浴,延续了家中无时无刻的美学.与电梯相邻的超大双尺寸停车位确保了日常的便利。由于规模的维护费非常低,而且屋顶露台离楼梯门只有40个台阶,无劳的室内户外生活总是遥不可及的。市场广场提供24小时的客房和保安,室内盐水池,红外桑拿,两个健身房,壁球场,馆藏出借图书馆,作坊,有景观的庭院,以及两个有全景和天然气和木炭烧烤的屋顶露台.新大堂(2025年)和翻修的走廊反映了深思熟虑的再投资。从圣劳伦斯市场走来,这是为那些寻求空间、舒适和像家一样的无妥协的感觉的人建造的公寓。
主要特征
- 朝向: 西南

- 睡房: 2

- 洗手间: 2

- 车库: 1

- 厨房: 1

重要信息
- 空间: 1800-1999

- 房龄: 31-50
- 管理费: $ 1559.69

- 地税: $ 6281.55

- C12921440

- Listing contracted with: HARVEY KALLES REAL ESTATE LTD.
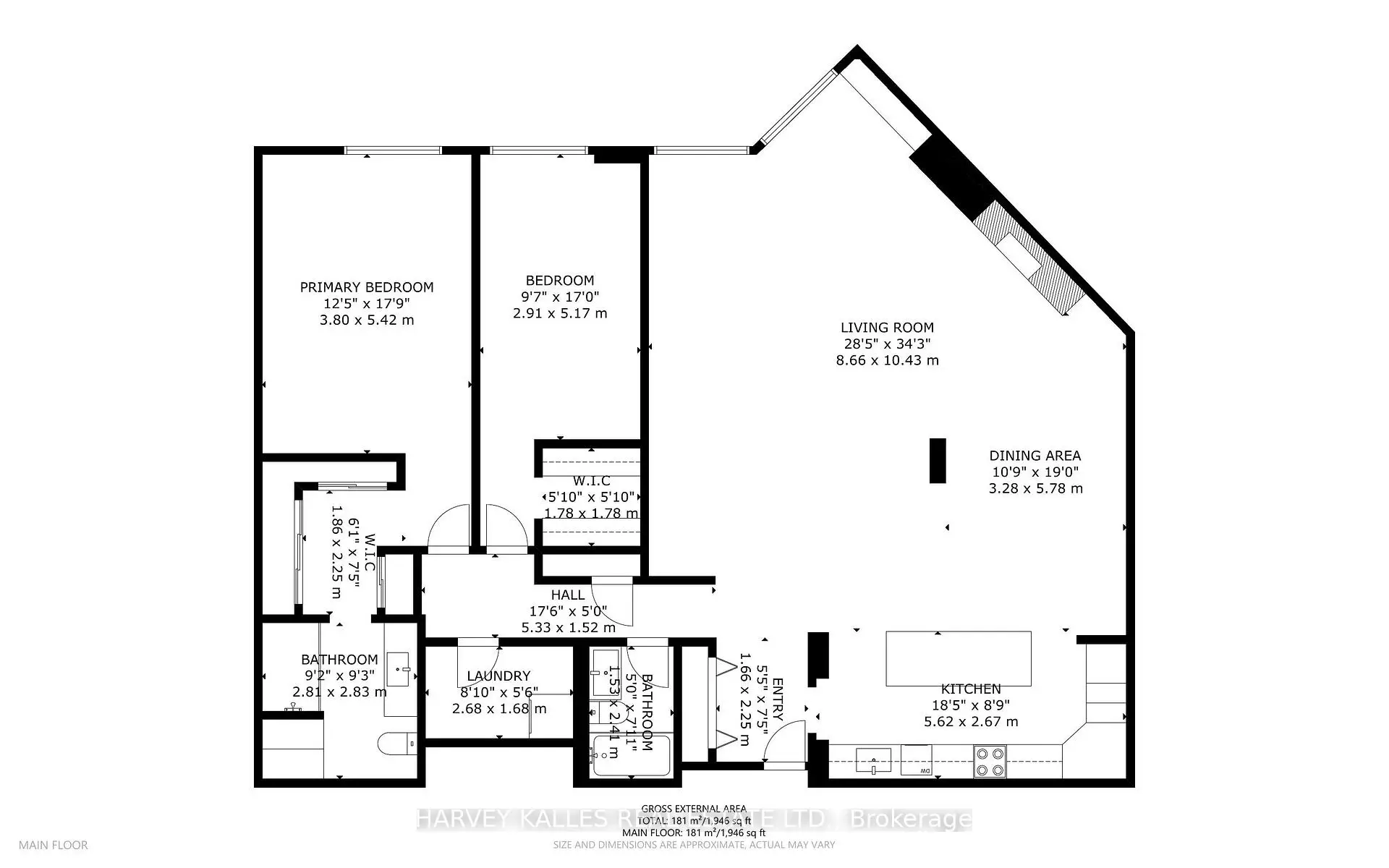
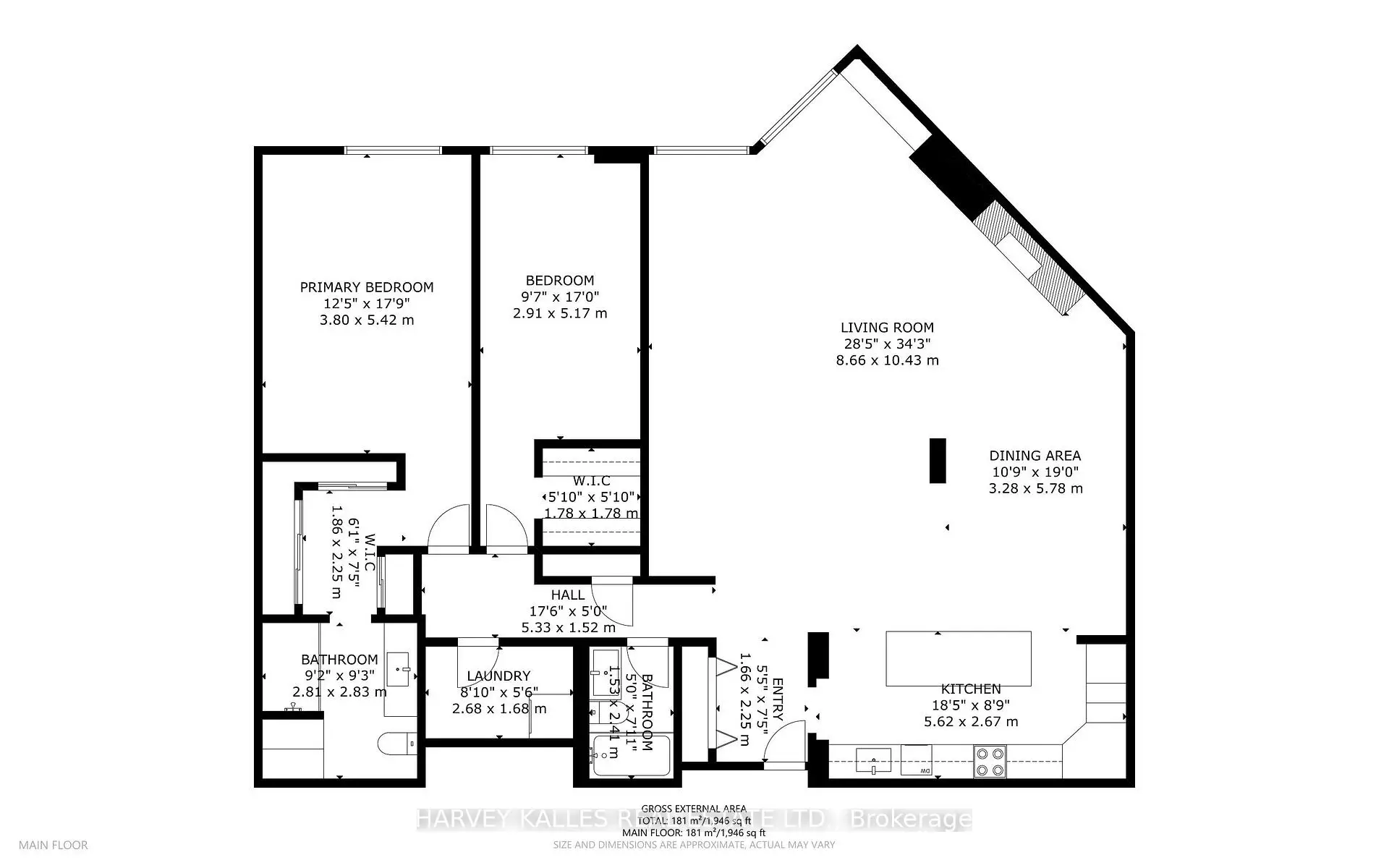
| 房间 | 尺寸(平方米) | 细节描述 | |
|---|---|---|---|
| 厨房 | 2.67x5.62 | ||
| 客厅 Rm | 8.66x1.43 | ||
| 晚餐室 Rm | 3.28x5.55 | ||
| 家庭房 Rm | 0.00x0.00 | ||
| 门厅 | 1.66x2.25 | ||
| Primary B | 3.80x5.42 | ||
| 第二间卧室 | 2.91x5.17 | ||
| Bath | 2.81x2.83 | 3pcs卫生间套间 |
|
| Bath | 1.53x2.41 | 三件套卫生间 |
| 卫生间 | 卫浴件数 | 所在楼层 | |
|---|---|---|---|
| 2间 | 4件套 | 主层 |
房屋简介
房屋位于多伦多市区东部Front and Church交界附近, 这间2房2卫单车库Condo Apt户型朝西南向. #818-80 Front St E拥有单停车位. 地下室Apartment . 房屋及周边设施包括Storage,PrimaryBedroom-Main和Built-InOven等. 厨房, 客厅 Rm, 晚餐室 Rm, 家庭房 Rm, 门厅, Primary B, 第二间卧室, Bath和 Bath在主层.Market Square
80 Front St E是由房地产建筑商Hls York Developments Ltd开发的, 物业年龄42年左右。该公寓大楼大约有9层187个单元。Market Square的设施包括用:安全系统,壁球场,桑拿房和室内游泳池。每月物业管理费1559.69加元包括用水. 目前80 Front St E大约有5间公寓在售0间在出租。学校信息
小学
-
对口学区学校在 3022学校里排名 2677 (分数: 3.7)距离学校0.7公里 (走路大约12分钟)
-
-
-
中学
-
对口学区学校排名: 404/746 (分数: 5.9) 5年平均分: 553/746 (分数: 4.5)距离学校1.9公里 (走路大约33分钟)
-
-
通勤信息
King 地铁站 (0.4公里)Union Go 火车站 (0.8公里)

















































