房屋信息
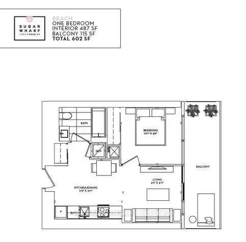
糖厂公寓由Menkes发展公司发行.水口镇多伦多。 1号床 1号床不到500英尺+阳台115 sq ft 总计 602 sq ft.无浪费空间的宽敞布局。包括Unity健身房会员及Bell Gigabit Fibe网络。大城市和湖泊视线!全尺寸洗衣机和甩干机和好的-维护单元.远离农场男孩、Loblaws、LCBO、商店pers、餐馆、糖滩、2英亩公园和新的George Brown 和 OCad校园。联合站圣劳伦斯市场金融区全程步行10-12分钟.直接进入未来的适宜卫生技术学校和TdsB学校
主要特征
- 朝向: 东

- 睡房: 1

- 洗手间: 1

- 车库:

- 厨房: 1

重要信息
- 空间: 0-499

- 房龄: 0-5
- 管理费: $ 527.00

- 地税: $ 2598.17

- C12907402

- Listing contracted with: KW Living Realty
| 房间 | 尺寸(平方米) | 细节描述 | |
|---|---|---|---|
| 晚餐室 Rm | 3.60x2.78 | 复合地板, 不锈钢电器, 石英台面 |
|
| 厨房 | 3.60x2.78 | 复合地板, , 合并厨房 |
|
| 客厅 Rm | 2.62x2.78 | 复合地板, 走出式阳台 |
|
| Primary B | 3.26x2.56 | 复合地板, , 壁橱 |
| 卫生间 | 卫浴件数 | 所在楼层 | |
|---|---|---|---|
| 1间 | 4件套 | 主层 |
房屋简介
房屋位于多伦多市区东部Yonge and Queens Quay交界附近, 这间1房1卫车库Condo Apt户型朝东向. #1905-138 Downes St带有一个储藏空间. 地下室Apartment . 房屋及周边设施包括Built-InOven等. 晚餐室 Rm, 厨房, 客厅 Rm和 Primary B在主层.Suger Wharf East Tower
138 Downes St是由房地产建筑商Menkes Developments开发的, 物业年龄3年左右。该公寓大楼大约有75层1927个单元。Suger Wharf East Tower的设施包括用:健身房,前台服务,会客厅,篮球场,宾客套房,T暖气er,室内游泳池,PATH和PATH。目前138 Downes St大约有11间公寓在售33间在出租。学校信息
小学
-
-
-
-
-
中学
-
对口学区学校排名: 404/746 (分数: 5.9) 5年平均分: 553/746 (分数: 4.5)距离学校2.4公里 (开车大约7分钟)
-
-
通勤信息
King 地铁站 (0.8公里)Union Go 火车站 (0.8公里)



































