房屋信息
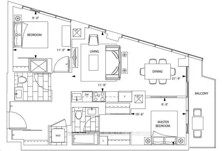
相貌西南角二间房二间房(原始内容存档于2017-10-21).通过 Bloor社区by Tridel.这种明亮而开放的布局呈现出从地上到上层的窗户和宽敞的阳台,带有阳光照射和城市景色.现代厨房设有石英石台面台,溢价完成并有不锈钢电器.宽敞的生活和餐饮区是日常生活和娱乐的理想.这个套房包括一个地下停车场.居民享有世界一流的便利设施,包括24小时客房、有桑拿和热浴缸的健身中心、屋顶游泳池和烧烤露台、聚会室、剧院和会议室。前往sherbourne站、商店、餐馆、公园的台阶, Rogers网络包含在维护费中.请参看所附的平面图。
主要特征
- 朝向: 西南

- 睡房: 2

- 洗手间: 2

- 车库: 1

- 厨房: 1

重要信息
- 空间: 700-799

- 房龄: 0-5
- 管理费: $ 748.00

- 地税: $ 4185.18

- C12829774

- Listing contracted with: SERENITY HOME REALTY INC.
| 房间 | 尺寸(平方米) | 细节描述 | |
|---|---|---|---|
| 客厅 Rm | 0.00x0.00 | 复合地板, 开放式概念, 走出式阳台 |
|
| 晚餐室 Rm | 0.00x0.00 | 复合地板, 合并客厅, 合并厨房 |
|
| 厨房 | 0.00x0.00 | 复合地板, 现代厨房, 开放式概念 |
|
| Primary B | 0.00x0.00 | 复合地板, 壁橱, 4pcs卫生间套间 |
|
| 第二间卧室 | 0.00x0.00 | 复合地板, 壁橱, 大窗 |
| 卫生间 | 卫浴件数 | 所在楼层 | |
|---|---|---|---|
| 1间 | 4件套 | 主层 |
|
| 1间 | 3件套 | 主层 |
房屋简介
房屋位于多伦多市区东部Bloor St E and Parliament St交界附近, 这间2房2卫单车库Condo Apt户型朝西南向. #908-575 Bloor St E拥有单停车位. 房屋及周边设施包括CarpetFree等. 客厅 Rm, 晚餐室 Rm, 厨房, Primary B和 第二间卧室在主层.Via Bloor
575 Bloor St E是由房地产建筑商TridelRecognized as the number one high-rise condo builder in the Greater Toronto Area, Tridel's design, quality, scale, capital, and service are considered top-notch.
开发的, 物业年龄5年左右。该公寓大楼大约有38层372个单元。Via Bloor的设施包括用:访客停车位,前台服务,室外游泳池和健身房。目前575 Bloor St E大约有6间公寓在售12间在出租。 学校信息
小学
-
对口学区学校在 3022学校里排名 2535 (分数: 4.1)距离学校0.2公里 (走路大约3分钟)
-
-
-
-
中学
-
对口学区学校排名: 404/746 (分数: 5.9) 5年平均分: 553/746 (分数: 4.5)距离学校0.7公里 (走路大约13分钟)
-
-





































