9 Bogert Ave 2702

主要路口Lansing-Westgate, Toronto
$859.9K 出售价格

房屋信息

地点!与Iconic CN tower 和城市的光滑东南角套房观想.欢迎来到位于永和谢帕德的著名翡翠公园小屋一个非常出色的高楼这惊人的2个卧室+书房, 2 浴室角套房提供罕见且有保障的东南接触,展示CN塔和令人喘息的多伦多天线的全景.享受你所在单位的壮观的市中心景色通过从地到地的窗户,或者走出你的私人阳台享受你的早咖啡或晚酒杯,俯瞰多伦多市中心。这种不同寻常的观点将继续存在,今后没有任何事态发展来阻碍它。具有开放式概念布局的特点,并综合了溢价 Miele不锈钢电器(平脊、玻璃炉顶和烤箱、内置微波炉、内置洗碗机)、石英柜台,以及适合日常生活和娱乐的有型中岛。地物为9-ft天花板,为现代开放布局,全地为全新的地层.该股最近也进行了油漆。宽敞的主卧室和4个接后浴室。多才多艺的书房完全适合专门的家庭办公室或学习区。翡翠公园塔的方便无与伦比.享受永惠地铁和谢泼德地铁线的室内直通,无需出站!.直接进入由LCBO、Food Basic、Tim Hortons、一家食品院、药店、购物中心和餐馆组成的大型建筑群。 401号高速公路通车方便快速通勤.从无休止的晚餐,购物,和娱乐选择。 24 Hour安保和安保室内游泳池和健身房派对室和会议客套间屋顶露台带有烧烤区.(英语)

主要特征

  • 朝向: 东南
  • 睡房: 2+1
  • 洗手间: 2
  • 车库: 1
  • 厨房: 1

重要信息

  • 空间: 900-999
  • 管理费: $ 803.80
  • 地税: $ 4140.00
  • C12512416
  • Listing contracted with: iCloud Realty Ltd.
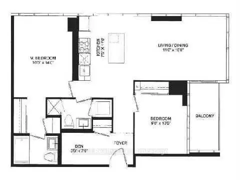
房间 尺寸(平方米) 细节描述
客厅 Rm5.50x3.50

复合地板, 走出式阳台,

晚餐室 Rm5.50x3.50

复合地板, 开放式概念, 合并客厅

厨房3.35x2.25

复合地板, , 中心岛

Primary B4.27x3.05

复合地板, 双壁橱, 4pcs卫生间套间

第二间卧室3.05x2.75

复合地板, 壁橱,

书房2.32x1.75

复合地板



卫生间 卫浴件数 所在楼层
1间4件套

主层

1间3件套

主层



房屋简介

房屋位于北约克央街西侧Yonge and Sheppard交界附近, 这间2房2卫单车库Condo Apt户型朝东南向. #2702-9 Bogert Ave拥有单停车位并带有一个室内储藏空间. 房屋及周边设施包括PrimaryBedroom-Main,SeparateHydroMeter,StorageAreaLockers和AutoGarageDoorRemot等. 客厅 Rm, 晚餐室 Rm, 厨房, Primary B, 第二间卧室和 书房在主层.

Emerald Park East Tower

9 Bogert Ave是由房地产建筑商 BAZIS International开发的, 物业年龄11年左右。该公寓大楼大约有40层327个单元。Emerald Park East Tower的设施包括用:健身房,前台服务,会客厅,屋顶花园,桑拿房,室内游泳池和宾客套房。每月物业管理费803.80加元包括用水,暖气和空调. 目前9 Bogert Ave大约有11间公寓在售3间在出租。


学校信息

  • elementary schools
    Cameron 公立小学 (年级: JK-5)
  • elementary schools
    Willowdale 公立初中 (年级: 6-8)
  • secondary schools
    Northview Heights 公立中学 (年级: 9-12) 180/739
  • elementary schools
    St. Edward 天主教学校 (年级: JK-8) 766/3037
  • elementary schools
    Charles H Best 公立初中 (年级: 4-8)
  • elementary schools
    Yorkview 公立小学 (年级: JK-5)


通勤信息

Sheppard-Yonge 地铁站 (0.2公里)

房屋位置