房屋信息
惊呆了,满脸毛发的角落套房罗斯代尔山谷的景点!这个亮而有气的公寓地物地板对天花板的视窗, sooaring 9FT Ceaps,以及一个宽敞的分层-卧室布局提供最佳隐私。享受优雅的优雅的阳台为早咖啡或晚间放松。 4米特步行去永和布洛尔车站步入约K维尔购物餐厅和杂货店市中心的美丽城市绿洲住宿包括健身、游泳池(室内)、按摩浴缸、桑拿、比利亚德室、2个客服、图书馆、游客泊车、24H Consierge。
主要特征
- 朝向: 东北

- 睡房: 2

- 洗手间: 2

- 车库: 1

- 厨房: 1

重要信息
- 空间: 900-999

- 房龄: 11-15
- 管理费: $ 866.00

- 地税: $ 4900.00

- C12435575

- Listing contracted with: ROYAL LEPAGE YOUR COMMUNITY REALTY
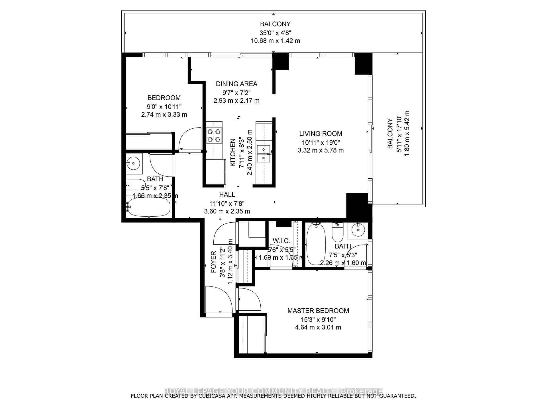
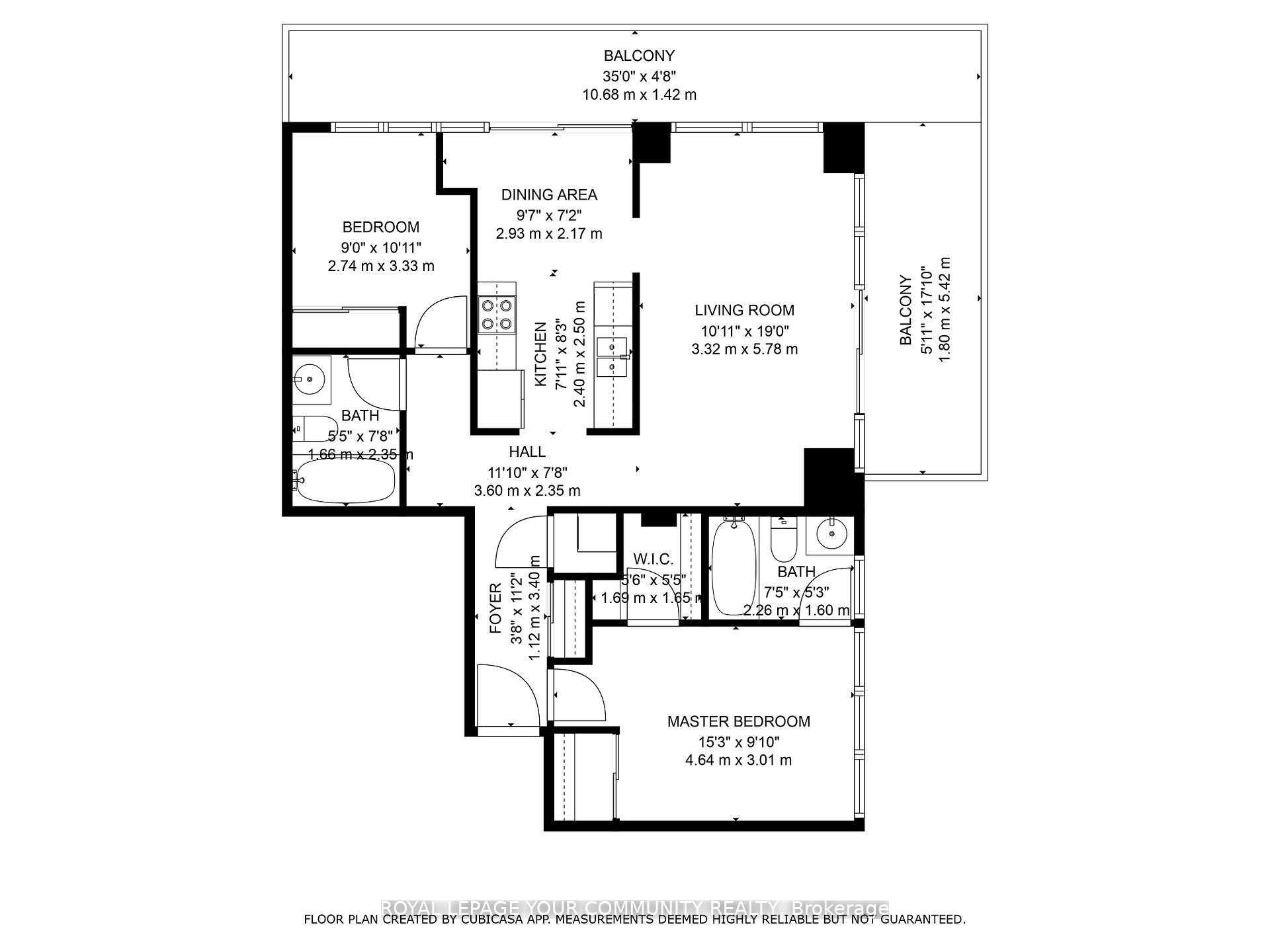
| 房间 | 尺寸(平方米) | 细节描述 | |
|---|---|---|---|
| 客厅 Rm | 5.01x3.50 | 大窗, , 走出式阳台 |
|
| 厨房 | 4.69x2.43 | , 瓷砖地板, 合并餐饮 |
|
| 晚餐室 Rm | 1.50x1.50 | 窗户, 瓷砖地板, 合并厨房 |
|
| Primary B | 3.80x3.04 | 窗户, , 复合地板 |
|
| 第二间卧室 | 2.86x2.74 | 墨菲床, 壁橱, 复合地板 |
| 卫生间 | 卫浴件数 | 所在楼层 | |
|---|---|---|---|
| 2间 | 4件套 | 主层 |
房屋简介
房屋位于多伦多高级社区玫瑰谷Yonge & Church and Davenport交界附近, 这间2房2卫单车库共管公寓户型朝东北向. #611-825 Church St拥有单停车位并带有一个室内储藏空间. 房屋及周边设施包括CarpetFree等. .The Milan
825 Church St是由房地产建筑商Conservatory GroupThe Conservatory Group is a family business considered to be one of Canada's largest developers/builders, providing prestigious luxury high-rise residential apartments to the entire GTA's low-rise communities.
开发的, 物业年龄11年左右。The Milan的设施包括用:健身房,前台服务,会客厅,访客停车位,屋顶花园,宾客套房,室内游泳池和桑拿房。每月物业管理费866.00加元包括用暖气,水和空调. 学校信息
- Jesse Ketchum Junior and 公立初中 (年级: 7-8) 1683/3037
- Jarvis 公立高中 (年级: 9-12) 651/739
- Our Lady of Lourdes 天主教学校 (年级: JK-8) 1119/3037
- Forest Hill Junior and 公立初中 (年级: JK-8) 97/3037
- Winchester Junior and 公立初中 (年级: 0-8)
- King Edward Junior and 公立初中 (年级: JK-8) 1119/3037















































