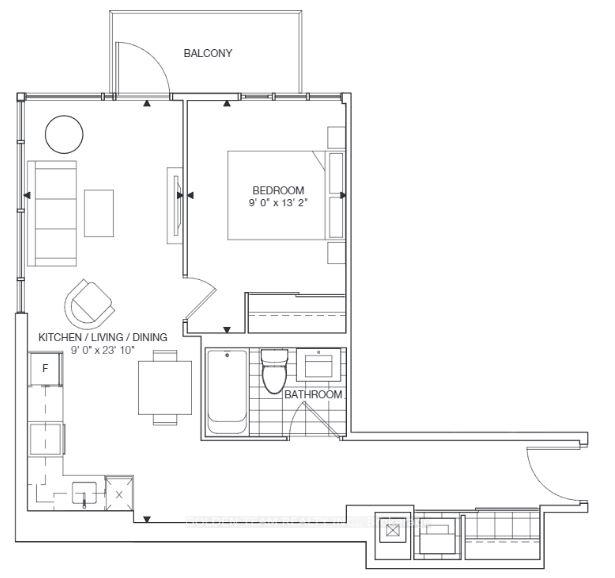
房屋信息
- 房屋朝向: 西北

- 睡房: 1

- 洗手间: 1

- 室内空间:500-599平方尺

其他信息
- 车位数量: 0

- 地下存储: 0

- 入住时间: 2026-06-01 04:00:00
- C12997752

- GOLDEN TEAM REALTY INC.
Noir Condo
建成年份: 2018建筑商:
MenkesMenkes was founded by entrepreneur Murray Menkes more than 60 years ago.
租金包括: 暖气, 水, 空调
大楼设施: 健身房, 前台服务, 宾客套房, 会客厅
































