房屋信息
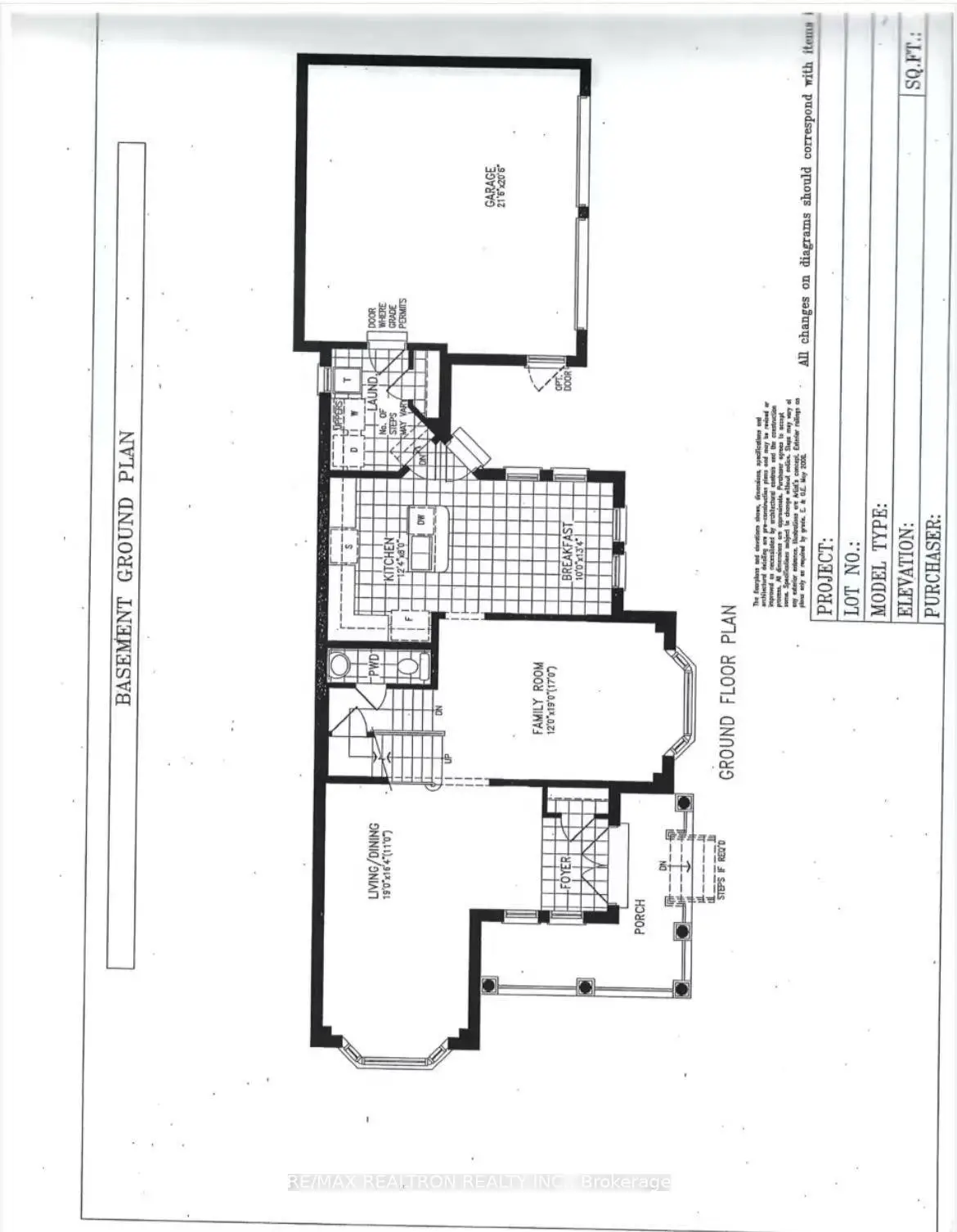
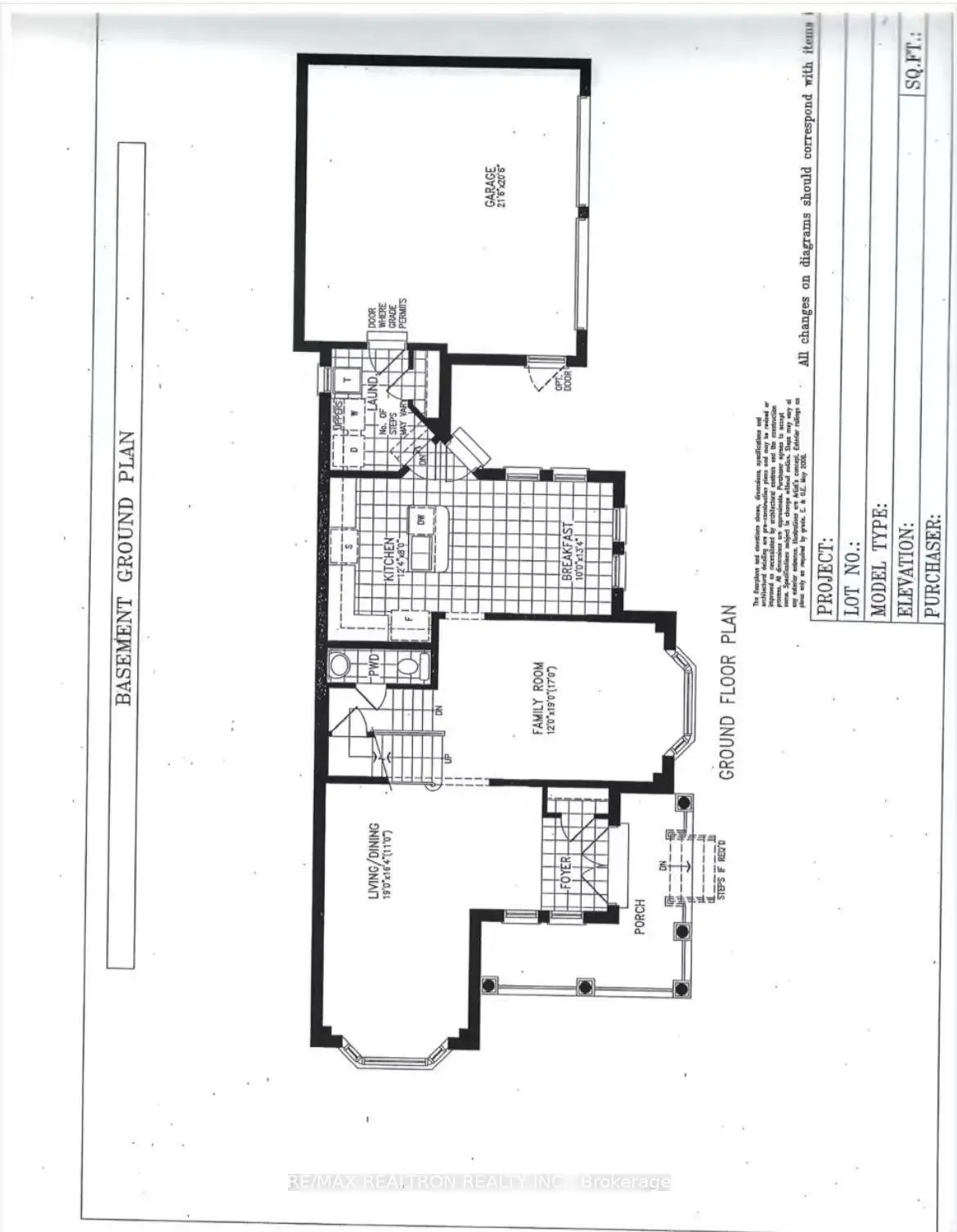
Welcome to this beautifully maintained 2-storey Detached Home in a Prestigious Neighborhood In The Heart Of Stouffville! This spacious home features 4 generous bedrooms, 3 bathrooms, and a functional layout designed for both everyday comfort and entertaining. The main level boasts a bright living and dining area, a versatile family room, a modern kitchen with breakfast area, and convenient main-floor laundry. Upstairs, you'll find four spacious bedrooms. The unfinished basement offers endless potential for customization to suit your needs. The Property Conveniently located near Shops, Restaurants, Parks, High-Ranking School, Golf Course And Other Amenities, Go Station Near By, just a 10 Mins Drive To Hwy 404**** Don't miss out on this opportunity to make this stunning property yours!******Interior Photos virtually staged******
主要特征
- 朝向: 后院朝东

- 睡房: 4

- 卫生间: 3

- 车库: 2

- 厨房: 1

重要信息
- 占地面接: 44.51 x 90.33 Feet

- 室内面积: 2000-2500

- 地税: $ 6545.00

- N12802482

- Listing contracted with: RE/MAX REALTRON REALTY INC.
| 房间 | 尺寸(平方米) | 细节描述 | |
|---|---|---|---|
| 客厅 Rm | 5.79x5.00 | 硬木地板, 大窗 |
|
| 晚餐室 Rm | 5.79x5.00 | 硬木地板, 合并客厅 |
|
| 家庭房 Rm | 5.79x3.66 | 硬木地板, 海湾窗 |
|
| 厨房 | 3.78x2.44 | 陶瓷地板, 中心岛, |
|
| 早餐室 | 4.08x3.05 | 陶瓷地板, |
|
| Primary B | 4.88x3.35 | 5pcs卫生间套间, , |
|
| 第二间卧室 | 3.54x3.29 | 地毯, 西向, 壁橱 |
|
| 第三间卧室 | 3.05x2.77 | 地毯, 壁橱 |
|
| 第四间卧室 | 3.35x2.74 | 地毯, 壁橱 |
| 卫生间 | 卫浴件数 | 所在楼层 | |
|---|---|---|---|
| 1间 | 5件套 | Second |
|
| 1间 | 4件套 | Second |
|
| 1间 | 2件套 | 主层 |




























