房屋信息
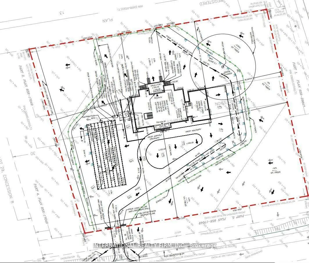
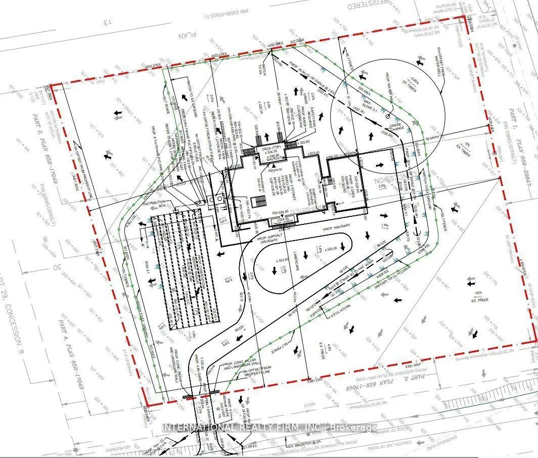
A Beautiful double wide Estate Lot on a hilltop in scenic Vivian Forest - offering 338ft of frontage. Exclusive area consisting of significant estates yet close to urban conveniences of Newmarket, Stouffville, Major Highways, GO train and Southlake regional health Centre. Seller has completed various studies required to apply for a building permit including Topographic survey, Natural heritage evaluation, Site Grading plan, Septic plan, Butter nut assessment (no preserved butternuts on site) saving months of time and expense for the buyer. Two different concepts of building plans are also available to carry forward if desired. VTB financing available.
主要特征
- 朝向: 后院朝西

- 睡房:

- 卫生间:

- 车库:

- 厨房:

重要信息
- 占地面接: 338.00 x 285.00 Feet

- 室内面积: < 700

- 地税: $ 4500.00

- N12681222

- Listing contracted with: INTERNATIONAL REALTY FIRM, INC.
房屋简介
房屋位于Vivian and Ninth交界附近, 这间房卫车库Vacant Land户型朝西向. 地下室 . 房屋及周边设施包括None等. .学校信息
- Ballantrae公立小学 (Grade:JK-8)
- Stouffville District公立中学 (Grade:9-12) 281/739
- St. Mark天主教小学 (Grade:1-8) 1617/3037
- St. Maximilian Kolbe Catholic公立高中 (Grade:9-12)
- Harry Bowes公立小学 (Grade:1-2) 688/3037
- Glad Park公立小学 (Grade:3-8) 392/3037
- Aurora公立高中 (Grade:9-12) 35/739












