房屋信息
页:1 欢迎来到这个令人叹为观止的行政住所,由全国的家园,并设置一个罕见的馅饼形状溢出拉维内洛特。这个分离的双层地产之家提供6个宽敞的寝室、6.5个浴室和3个车库,最多可停放9辆车,这是奢侈、功能和排他性的完美组合。给地块优质的付了525 000加元,另外还有35万加元用于建设者升级,使这个家园真正成为一类。进到里面去发现优雅满足舒适的宏伟布局.来自建筑商的厨师厨房是一出杰作,由一出大型K特兹岛,专业级的"狼行"(Wolf Range),"次零冰箱"(sub-Zero Refergerator)和"冷冻"(冰柜)所出道,以及同时设计出美和存储的扩展定制柜.家庭房间是一个避难所夸耀出高天花板舒适的壁炉令人叹为观止的拉维尼观点餐厅的"柯佛德天花板","整个嵌入式天花灯"和"超大"的窗户真正设定了奢侈的基调并照亮了整个房子.页:1 主楼有5个平房的卧室可用作法律套房或办公室。主套房是一个私人后退室,它有一个壁炉,一个类似斯帕的套房,以加热地板,他和她的大衣和拉维尼的宁静观点为主.这座住宅设计为"现代生活与心灵平和",配备有智能警报系统,安全相机,视频门和自动停车场开通器.从把大自然带到你家门前的"走出地下室"这座住宅重新定义了完美生活这不仅仅是一个家,它是一种行政生活方式,等待经验。"/span"
主要特征
- 朝向: 后院朝南

- 睡房: 6

- 卫生间: 7

- 车库: 3

- 厨房: 1

重要信息
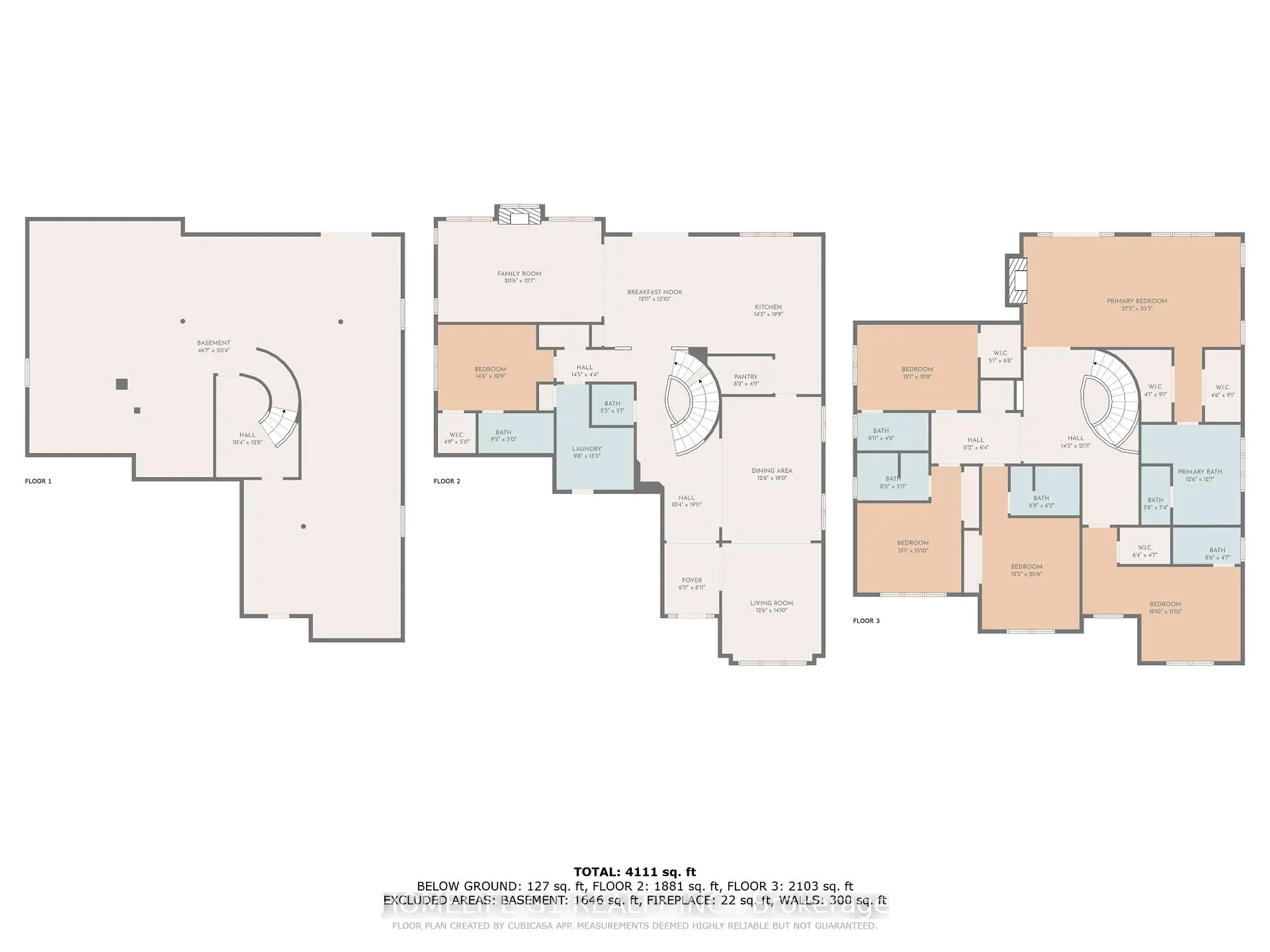
- 占地面接: 47.79 x 141.50 Feet

- 室内面积: 3500-5000

- 地税: $ 11342.36

- N12427656

- Listing contracted with: HOMELIFE G1 REALTY INC.
| 房间 | 尺寸(平方米) | 细节描述 | |
|---|---|---|---|
| Primary B | 8.41x4.27 | 走出式阳台, 壁炉, 7pcs卫生间套间 |
|
| 第二间卧室 | 4.57x3.35 | 5pcs卫生间套间, , 大窗 |
|
| 第三间卧室 | 3.96x3.35 | 5pcs卫生间套间, 大窗, 顶灯 |
|
| 第四间卧室 | 3.66x4.27 | 5pcs卫生间套间, 大窗, 顶灯 |
|
| 第五间卧室 | 3.66x3.66 | 5pcs卫生间套间, 大窗, 顶灯 |
|
| 卧室 | 3.66x3.66 | 5pcs卫生间套间, 大窗, 顶灯 |
|
| 厨房 | 4.27x4.57 | 智能家电, 自定义后挡板, |
|
| 茶水间 | 1.83x1.22 | ||
| 早餐室 | 3.96x4.21 | 走出式甲板, , 顶灯 |
|
| 家庭房 Rm | 6.10x3.96 | , 大窗, 壁炉 |
|
| 客厅 Rm | 3.66x5.49 | 大窗, 顶灯 |
|
| 晚餐室 Rm | 3.66x4.57 | , 大窗, 顶灯 |
| 卫生间 | 卫浴件数 | 所在楼层 | |
|---|---|---|---|
| 1间 | 2件套 | 主层 |
|
| 4间 | 5件套 | Second |
|
| 1间 | 7件套 | Second |
|
| 1间 | 5件套 | 主层 |
















































