房屋信息
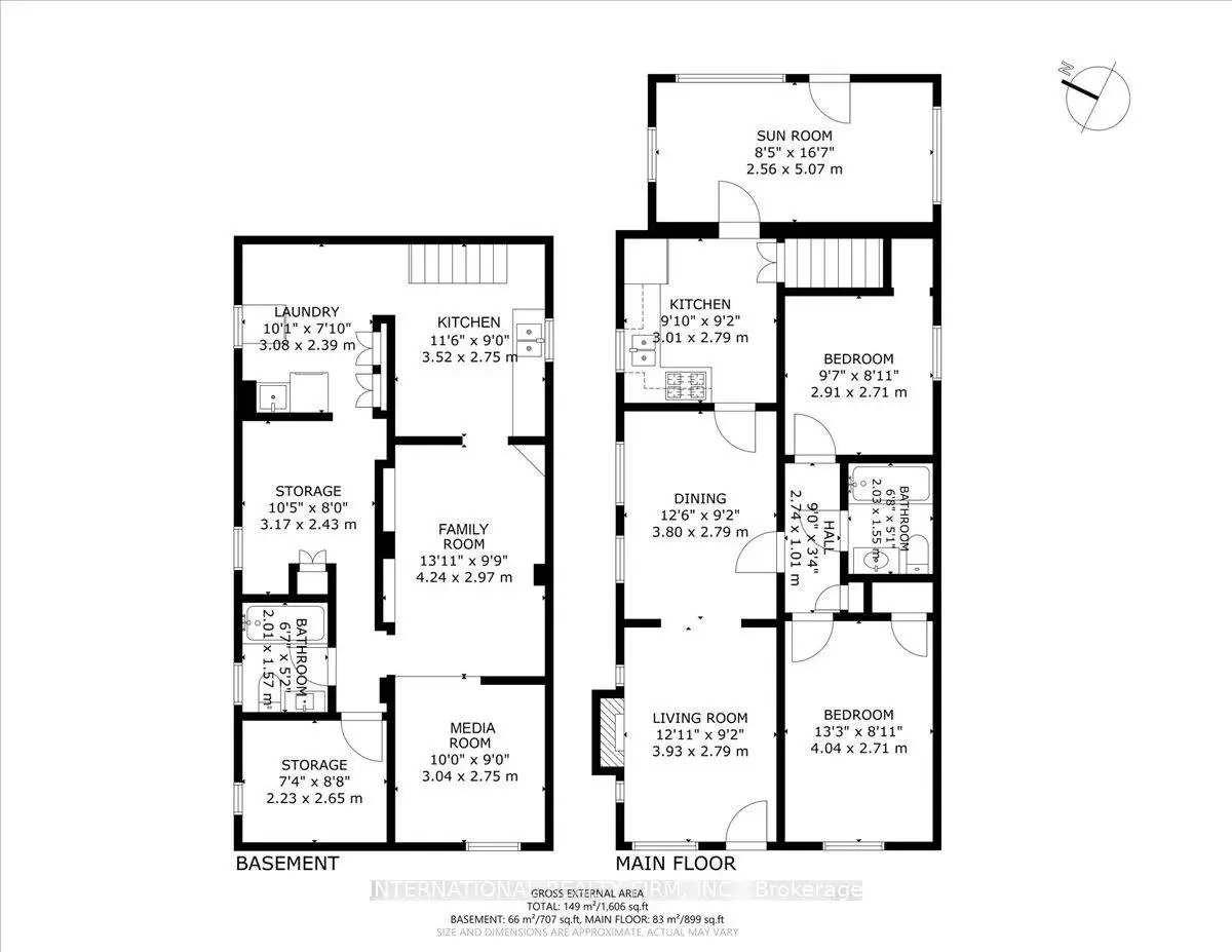
60多年来第一次出价!对建设者、革新者、投资者或第一时间买家来说,亮相2号寝室平房在一个惊人的高需求位置在25x138英尺的大地上(原始内容存档于2017-09-21).步行区域去所有 almenities 包括 Fairbank轻轨.主要楼层特色开放式概念生活和饮食室并拥有大量的迷人的原创木质细节/装饰,二个有硬木质地板的精美有型床房.厨房铅到大太阳房 w/去大栅栏后院。完成了地下室,有第二层浴室和单独入口的潜力。大型双车道停车场提供储值吨和花园套件转换潜力。财产正在按原状出售。不要错过你增加价值的机会,让你的标记出现在后区域! span>
主要特征
- 朝向: 后院朝东

- 睡房: 2

- 卫生间: 2

- 车库: 2

- 厨房: 1

重要信息
- 占地面接: 25.00 x 138.00 Feet

- 室内面积: 700-1100

- 地税: $ 4004.20

- W12788576

- Listing contracted with: INTERNATIONAL REALTY FIRM, INC.
| 房间 | 尺寸(平方米) | 细节描述 | |
|---|---|---|---|
| 客厅 Rm | 3.93x2.79 | 硬木地板, , 大窗 |
|
| 晚餐室 Rm | 3.80x2.79 | 硬木地板, , 大窗 |
|
| 厨房 | 3.01x2.79 | 走出式太阳房 |
|
| Primary B | 4.74x2.01 | 硬木地板, 大窗 |
|
| 第二间卧室 | 2.91x2.71 | 硬木地板 |
|
| Sunroom | 2.56x5.07 | ||
| 厨房 | 3.52x2.75 | 高于地面窗口, 防溅挡板 |
|
| 家庭房 Rm | 4.24x2.97 | ||
| Media Rm | 3.04x2.75 | 高于地面窗口 |
|
| 洗衣房 | 3.08x2.39 | 洗衣房水池 |
|
| 电器房 R | 2.23x2.65 | 高于地面窗口 |
| 卫生间 | 卫浴件数 | 所在楼层 | |
|---|---|---|---|
| 1间 | 4件套 | 主层 |
|
| 1间 | 4件套 | Basement |
房屋简介
房屋位于多伦多西区约克区Dufferin and Eglinton交界附近, 这间2房2卫双车库平房独立房户型朝东向. 41 Branstone Rd拥有双分离式停车位. 房屋及周边设施包括AutoGarageDoorRemot等. 客厅 Rm, 晚餐室 Rm, 厨房, Primary B, 第二间卧室和 Sunroom在主层.学校信息
- Fairbank Memorial Community School (Grade:JK-5)
- Fairbank公立小学 (Grade:JK-6) 2457/3037
- York Memorial公立高中 (Grade:9-12) 542/739
- St. John Bosco天主教学校 (Grade:JK-6) 2413/3037
- Rawlinson Community School (Grade:JK-8) 2170/3037
- J R Wilcox Community School (Grade:JK-8) 1277/3037
















































