房屋信息
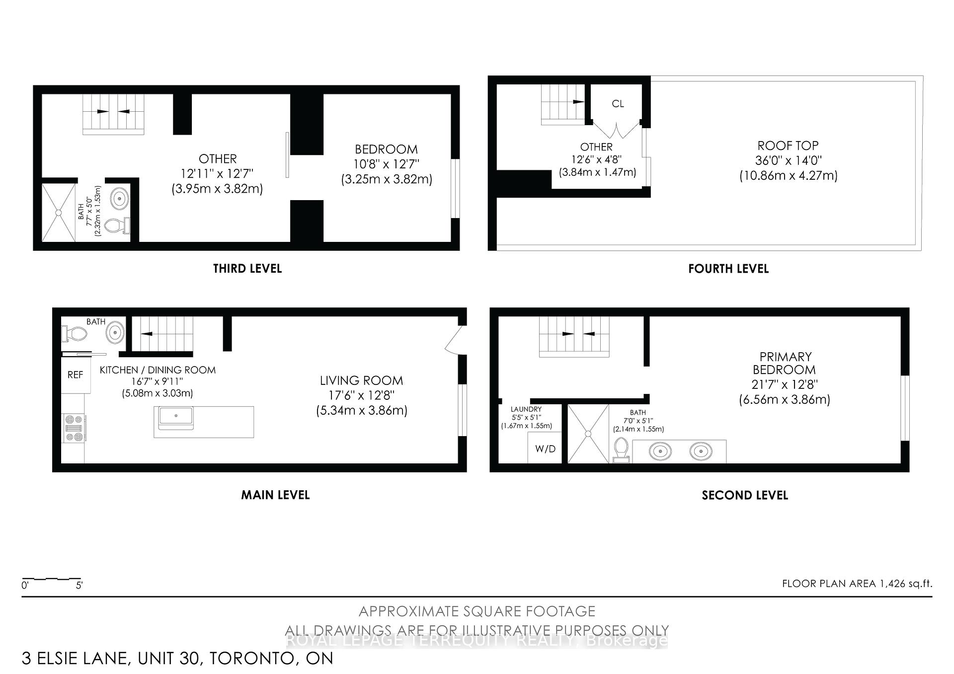
这间2个卧室加上2个洞,3个洗手间位于相交三角的市政厅将设计前方细节与日常功能相融合正面的引人注目的建筑设定了基调,在内部会找到一个充满了现代触摸的开阔概念布局:玻璃栏杆,木制楼梯,以及地底取暖,包括加热的瓷砖地板,走入淋浴,甚至混凝土浴缸和水槽(2021年-2022年).二楼的洗手间直接进入主卧室.温暖的木地板贯穿全家,平衡了风格和舒适.前往dundas街西地铁站/UPX 和 Junction跑道,这个是罕见的智能设计和不可打取位置的组合
主要特征
- 朝向: 后院朝东

- 睡房: 2

- 卫生间: 3

- 车库: 1

- 厨房: 1

重要信息
- 占地面接: --- x --- Feet

- 室内面积: 1500-2000

- 地税: $ 5979.91

- W12616418

- Listing contracted with: ROYAL LEPAGE TERREQUITY REALTY
| 房间 | 尺寸(平方米) | 细节描述 | |
|---|---|---|---|
| 客厅 Rm | 5.18x3.87 | 硬木地板, 合并餐饮, 窗户 |
|
| 晚餐室 Rm | 5.18x3.87 | 硬木地板, 合并客厅, 开放式概念 |
|
| 厨房 | 5.19x2.63 | 硬木地板, 开放式概念, |
|
| Primary B | 6.54x3.84 | 硬木地板, 5pcs卫生间套间, 窗户 |
|
| 第二间卧室 | 3.84x3.26 | 硬木地板, 窗户, 滑动门 |
|
| 其他 | 3.93x3.84 | 瓷砖地板, , 滑动门 |
|
| 其他 | 3.84x1.47 | 瓷砖地板, 走出式露台 |
| 卫生间 | 卫浴件数 | 所在楼层 | |
|---|---|---|---|
| 1间 | 2件套 | 主层 |
|
| 1间 | 5件套 | Second |
|
| 1间 | 3件套 | Third |
房屋简介
房屋位于多伦多西区约克区Symington Ave & Bloor St交界附近, 这间2房3卫单车库三层镇屋户型朝东向. #30-3 Elsie Ln拥有单停车位. 房屋及周边设施包括OnDemandWaterHeater和CarpetFree等. 客厅 Rm, 晚餐室 Rm和 厨房在主层; 其他在楼上.学校信息
- Keele Street公立小学 (Grade:JK-8) 978/3037
- Humberside公立高中 (Grade:9-12) 95/739
- St. Josaphat天主教学校 (Grade:JK-8) 194/3046
- St. Cecilia天主教学校 (Grade:JK-8) 449/3037
- Swansea Junior and公立初中 (Grade:JK-8) 131/3037
- George Syme Community School (Grade:JK-5)













































