房屋信息
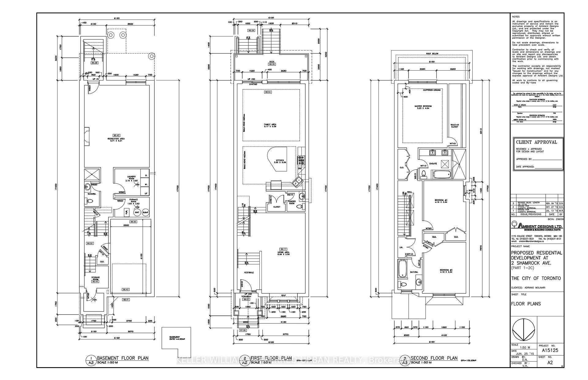
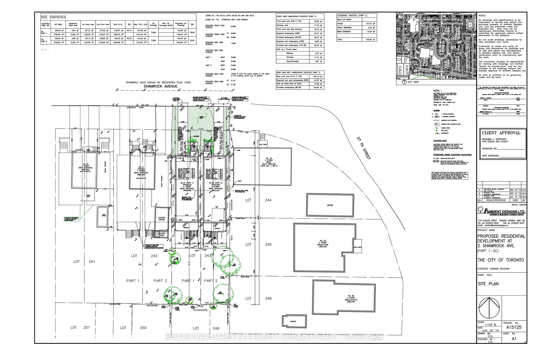
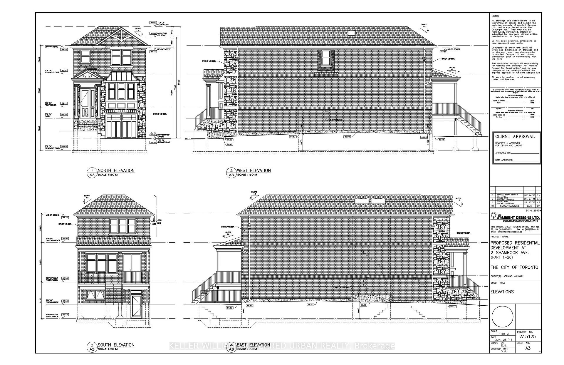
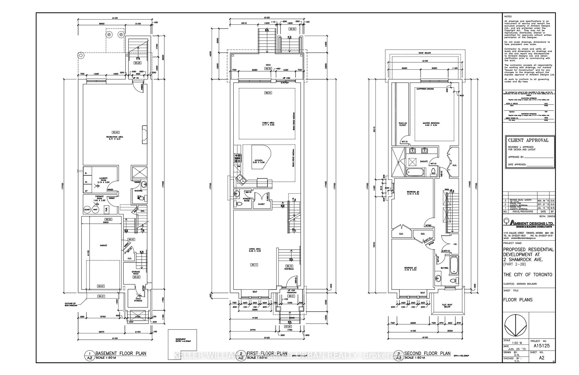
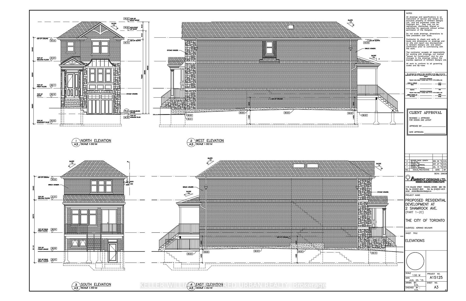
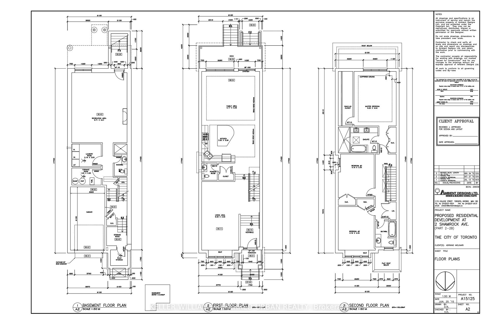
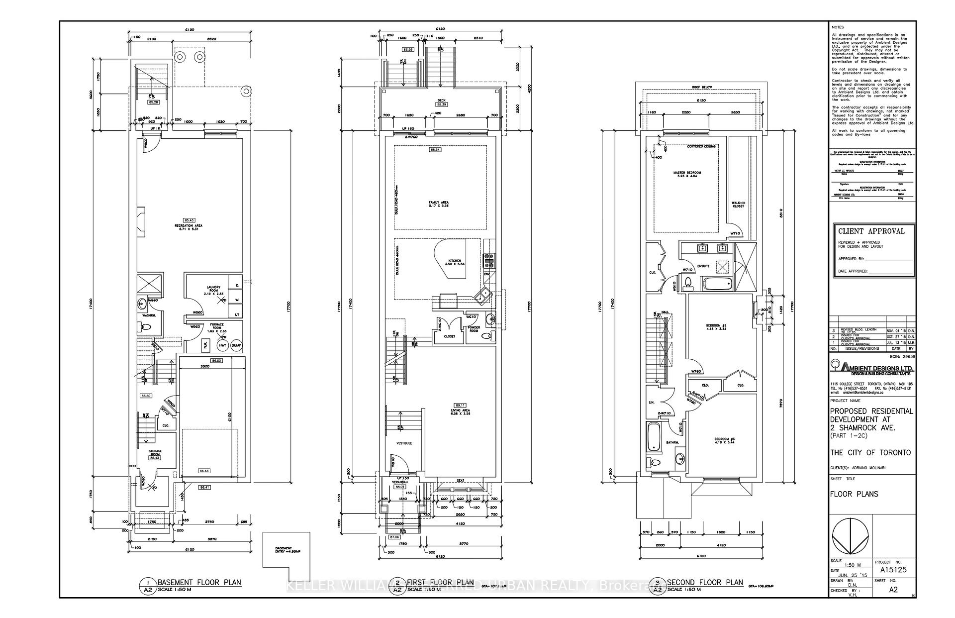
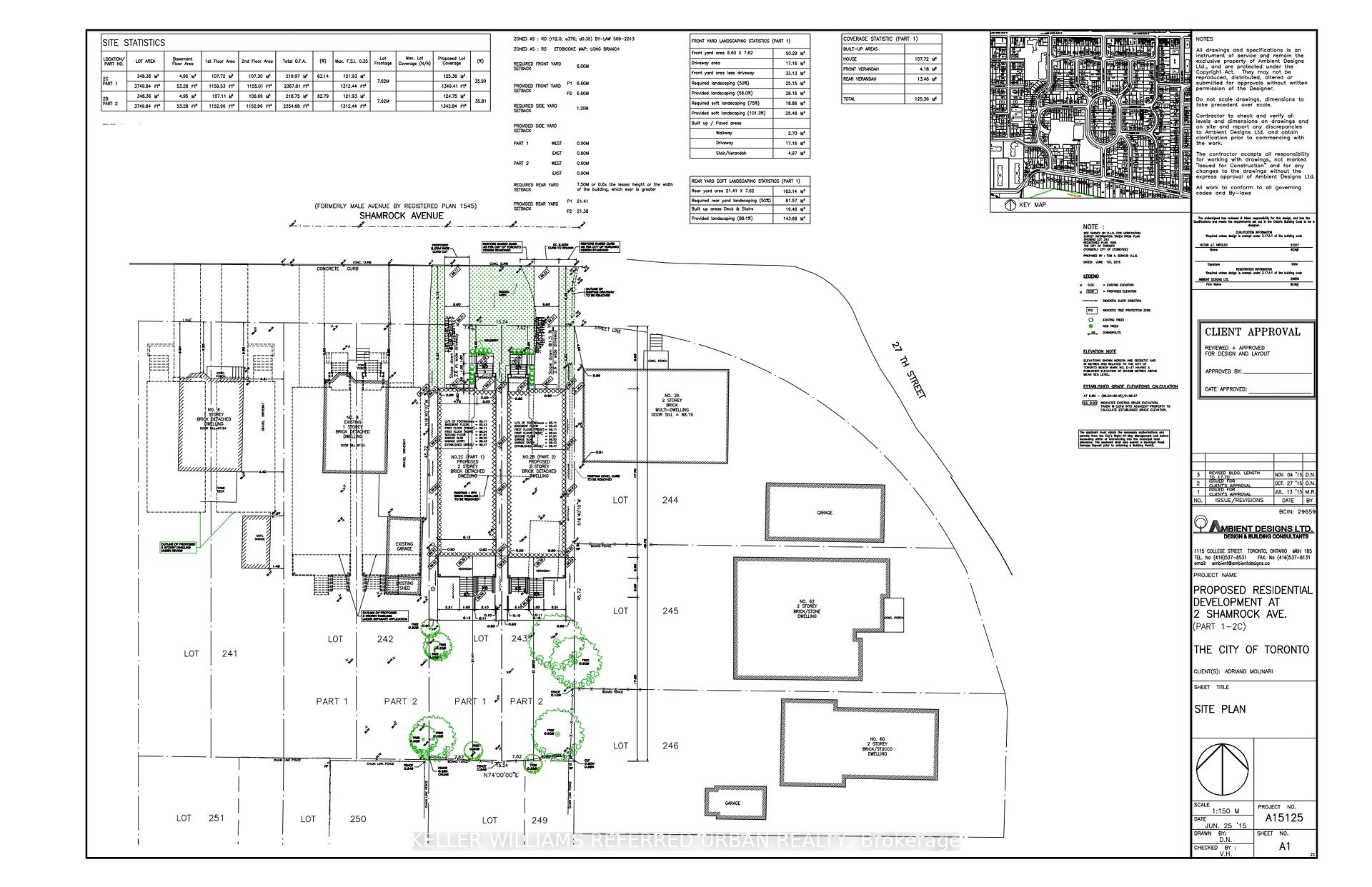
Its your lucky day! **Rare City Approval allows for a 2,333 sq ft house above grade (close to 3,300 sq ft with finished basement. Some adjustments to the layout/exterior style prior to filling for the permit still allowable.**. This Shamrock property is one of the last approved lots for redevelopment in all of Long Branch. Building your dream home becomes even more possible with one of the area's most respected builders standing by to make your dream come true. Shamrock is uniquely located on a private street with no through-traffic, and is walking distance to The Lake, Marie Curtis Park, GO train, Lakeshore shops and Restaurants, trails and so much more. It gets better, if you want to choose your next-door neighbor, adjacent property *2B Shamrock Avenue* is also being offered for sale.
主要特征
- 朝向: 后院朝南

- 睡房:

- 卫生间:

- 车库:

- 厨房:

重要信息
- 占地面接: 25.00 x 150.00 Feet

- 室内面积: < 700

- 地税: $ 4156.00

- W12331638

- Listing contracted with: KELLER WILLIAMS REFERRED URBAN REALTY
房屋简介
房屋位于怡陶碧谷Twenty Seventh St and Shamrock Ave交界附近, 这间房卫车库Vacant Land户型朝南向. 地下室 . 房屋及周边设施包括None等. .学校信息
- James S Bell Junior Middle Sports and Wellness Academy (Grade:JK-8) 1409/3037
- Lakeshore公立高中 (Grade:9-12) 634/739
- St. Josaphat天主教学校 (Grade:JK-8) 194/3046
- The Holy Trinity天主教学校 (Grade:JK-8) 449/3037
- Second Street Junior公立初中 (Grade:JK-8) 1409/3037

















