房屋信息
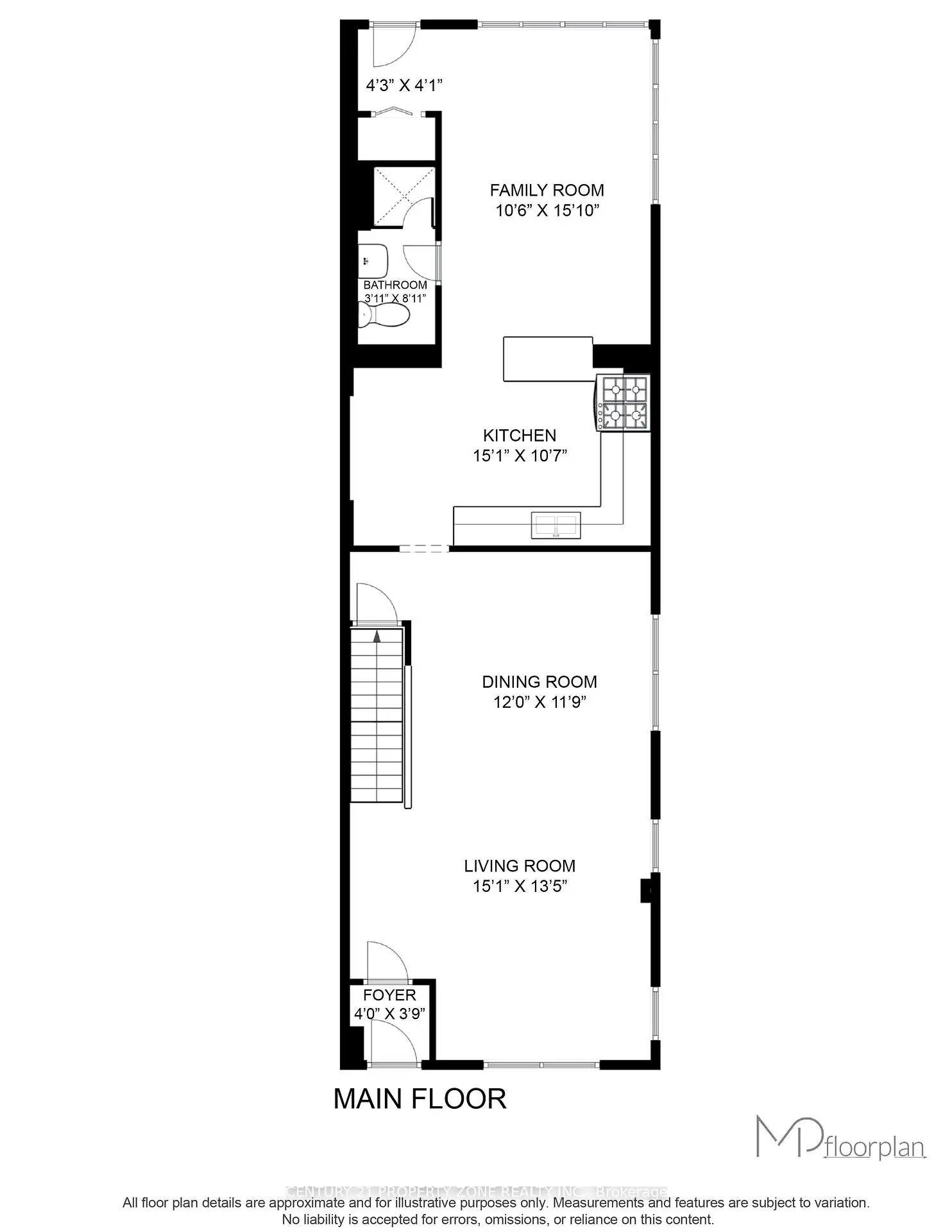
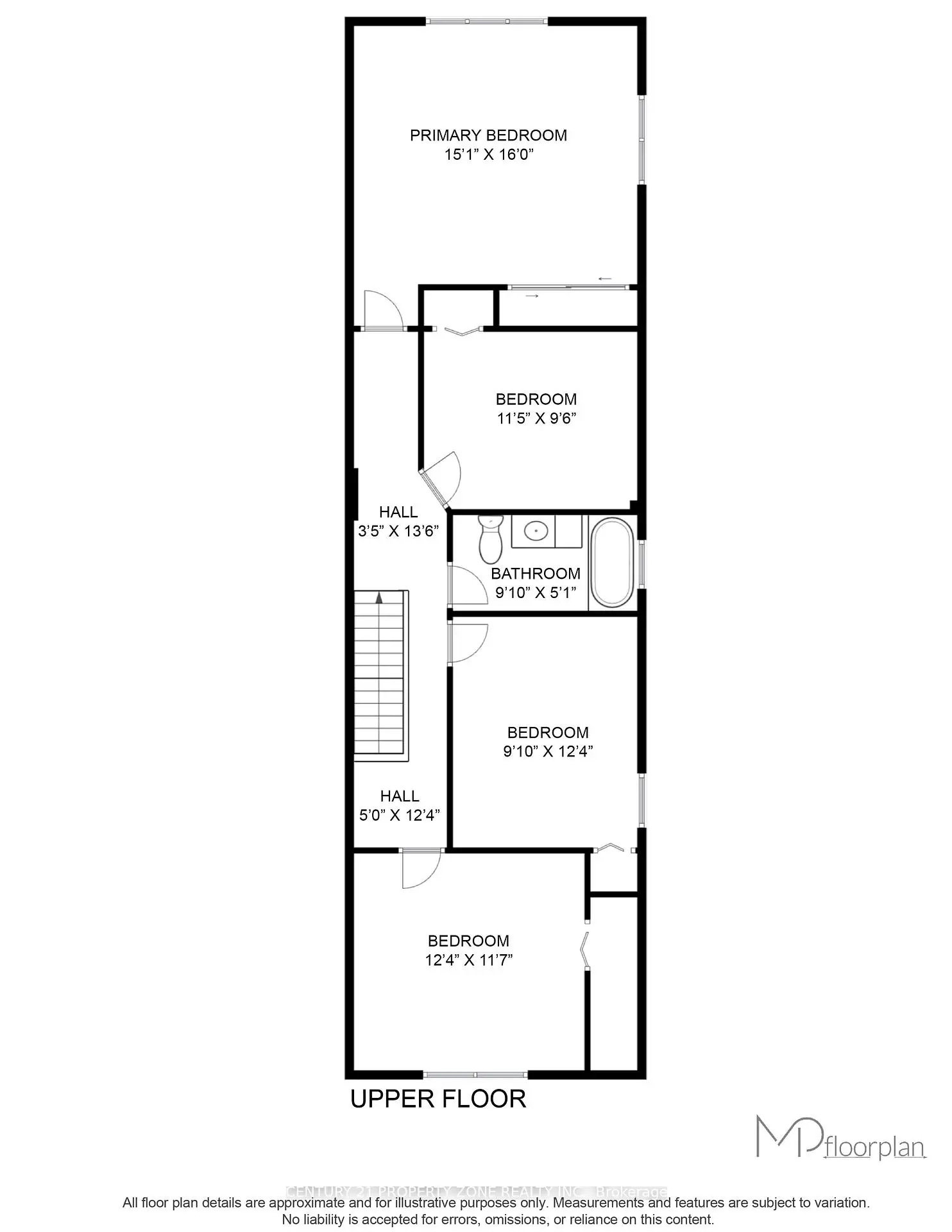
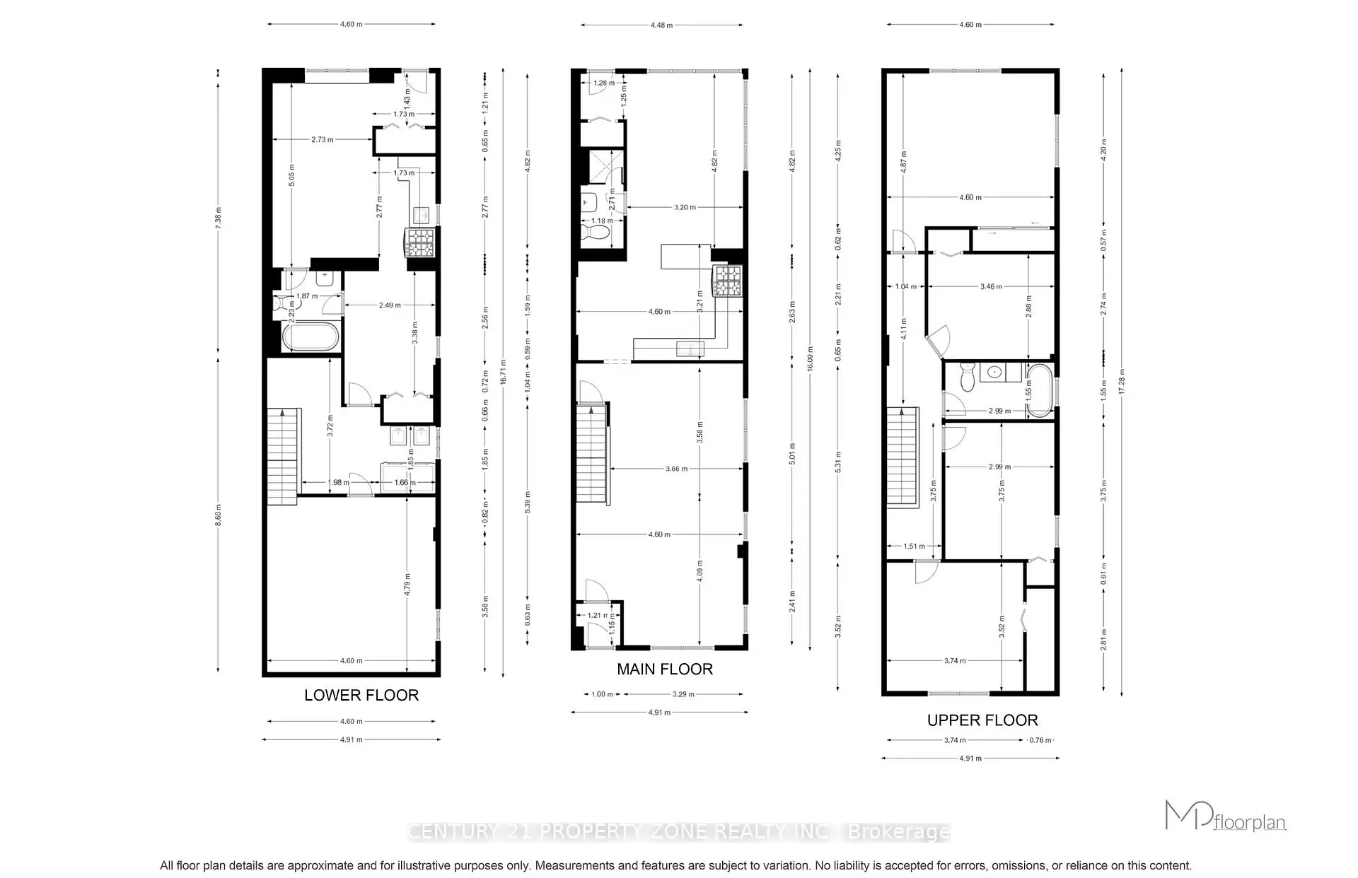
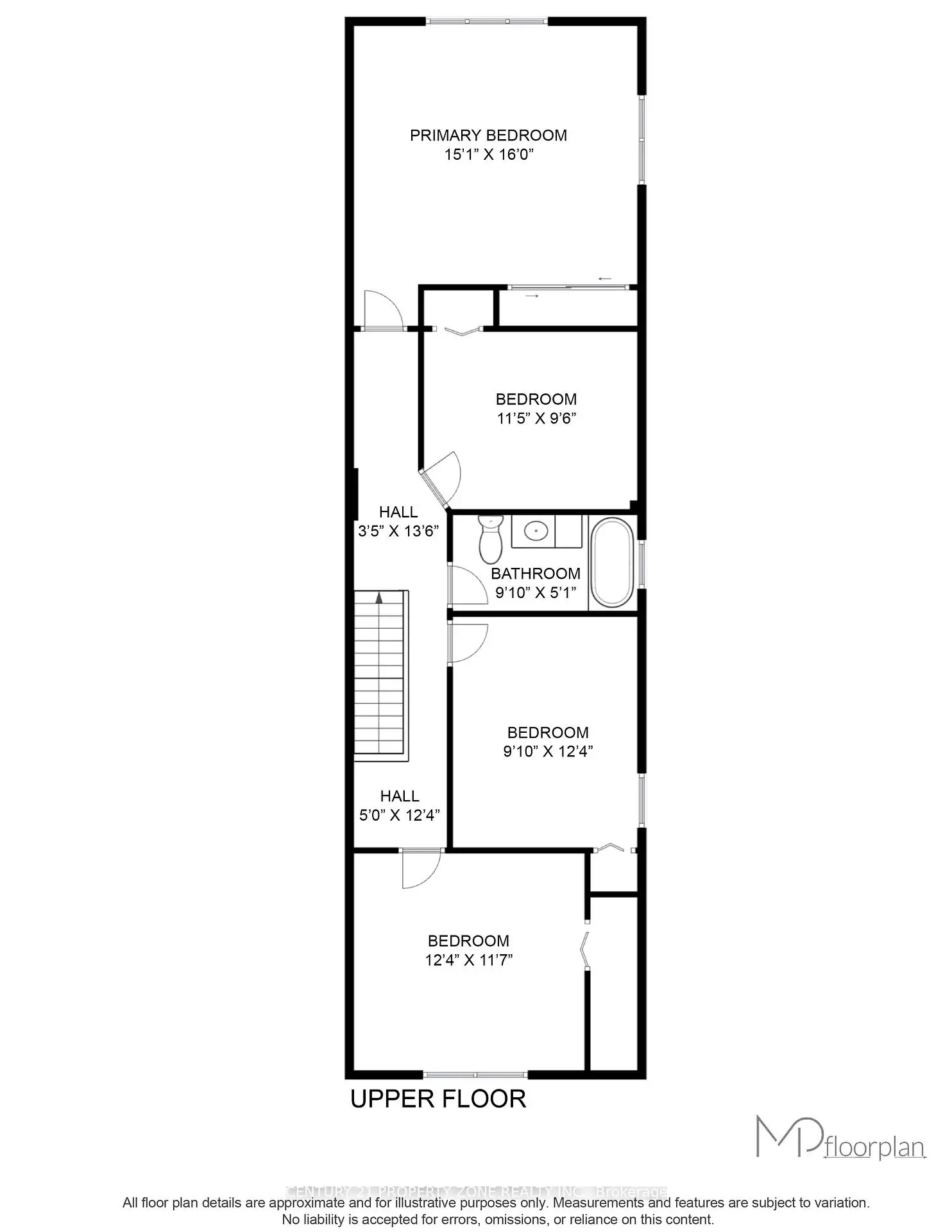
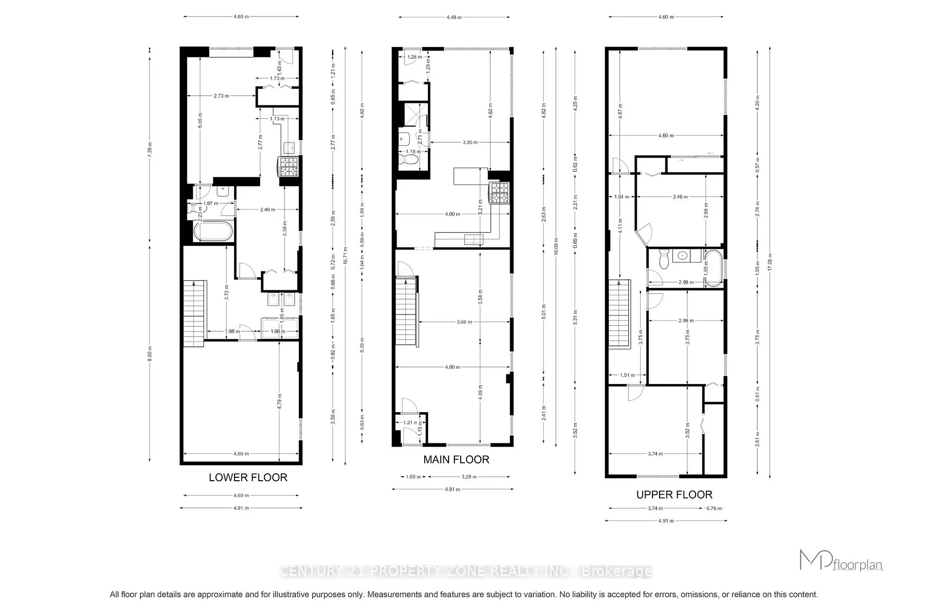
Welcome to this spacious and well-maintained 2-storey semi-detached home in the highly sought-after North Riverdale community, offering approximately 2,617 sq ft of total living space and an exceptional blend of comfort, functionality, and urban convenience. Ideally located just steps from Danforth & Broadview, this home features a bright and practical main floor layout with a generous living room, formal dining area, and a large kitchen with adjoining family room-perfect for everyday living and entertaining. The upper level offers four well-sized bedrooms, including a spacious primary retreat, ideal for growing families. The fully finished walkout basement includes a self-contained 1-bedroom unit with separate entrance, kitchen, bathroom, and laundry, providing excellent potential for rental income or multi-generational living. Enjoy unbeatable access to some of Toronto's best amenities, including a short walk to Riverdale Park East with iconic skyline views, minutes to Broadview Subway Station (Line 2) for quick downtown access, nearby streetcar routes (504, 505, 506), and vibrant Danforth (Greektown) offering restaurants, cafes, and shopping. With close proximity to the DVP, Gardiner Expressway, Lakeshore Blvd, and Don Valley trails, this location offers exceptional connectivity and lifestyle. Situated in one of Toronto's most desirable neighbourhoods known for strong demand, excellent walkability, and family-friendly appeal, this property is ideal for families, professionals, and investors seeking long-term value and growth potential. A copy of the survey is attached, and the property benefits from a right of way to the rear garage located between 99 and 101 Sparkhall Avenue, providing convenient access. The existing garage is currently not in functional condition; however, it presents a future opportunity for restoration, allowing potential for rear parking.
主要特征
- 朝向: 后院朝北

- 睡房: 4

- 卫生间: 3

- 车库:

- 厨房: 1

重要信息
- 占地面接: 17.75 x 91.50 Feet

- 室内面积: 1500-2000

- 地税: $ 8325.00

- E13014696

- Listing contracted with: CENTURY 21 PROPERTY ZONE REALTY INC.
| 卫生间 | 卫浴件数 | 所在楼层 | |
|---|---|---|---|
| 1间 | 2件套 | 主层 |
|
| 1间 | 3件套 | Second |
|
| 1间 | 3件套 | Basement |
房屋简介
房屋位于东约克Danforth & Broadview交界附近, 这间4房3卫车库两层半独立房户型朝北向. 地下室Partially Fi . 房屋及周边设施包括In-LawCapability和CarpetFree等. .学校信息
- Withrow Avenue公立小学 (Grade:JK-6) 392/3037
- Earl Grey公立初中 (Grade:7-8)
- Riverdale公立高中 (Grade:9-12) 111/739
- Holy Name天主教学校 (Grade:JK-8) 1409/3037
- Earl Grey公立初中 (Grade:7-8)
- Withrow Avenue公立小学 (Grade:JK-6) 392/3037
- Chester公立小学 (Grade:JK-5)
















































