房屋信息
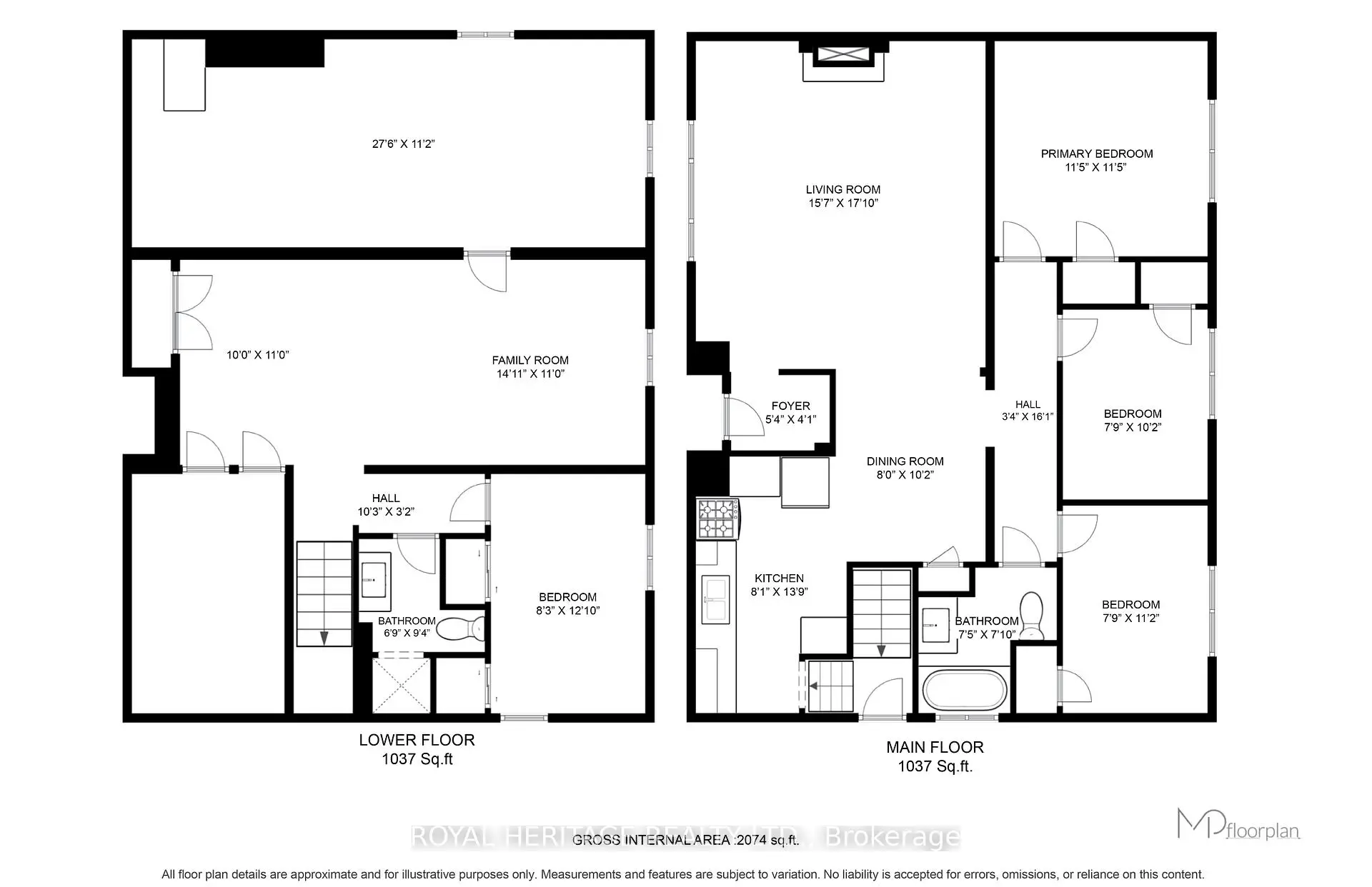
If you've been waiting for the right home in the right neighbourhood-this is it. Welcome to 45 Andrew Avenue in the well established Cliffcrest community. Close to the Scarborough Bluffs & trails. Ideally situated towards the end of the street where green space abounds. First time to ever hit the market & just in time for Spring. This is an excellent opportunity for buyers ready to make a move. Large lot, fantastic oversized 2 car garage. Walking distance to schools, parks, playgrounds, making everyday living both convenient and enjoyable. Appreciate a functional layout offering 3 + 1 bedrooms, 2 bathrooms, separate side entrance to basement offering plenty of windows and loads of space. This warm welcoming home has been lovingly maintained, updated windows, quality hardwood floors, lovely built in cabinet in dining room. Primary bedroom has hardwood under broadloom. Lower level features a large finished living room, bedroom and bathroom and huge workshop area affording space for additional rooms. Vast backyard-perfect for summer BBQs, entertaining, or enjoying your morning coffee on the patio with seamless outdoor living. More to Love: Built in 1955, this home offers solid construction & great location. You'll enjoy all the conveniences nearby, schools, shops and restaurants, community events, and an abundance of parks, trails, and green space that make this such a special place to call home.
主要特征
- 朝向: 后院朝东

- 睡房: 3

- 卫生间: 2

- 车库: 2

- 厨房: 1

重要信息
- 占地面接: 50.00 x 135.00 Feet

- 室内面积: 700-1100

- 地税: $ 3876.01

- E12991126

- Listing contracted with: ROYAL HERITAGE REALTY LTD.
| 房间 | 尺寸(平方米) | 细节描述 | |
|---|---|---|---|
| 客厅 Rm | 5.21x4.78 | 硬木地板, 风景窗, 壁炉 |
|
| 晚餐室 Rm | 3.10x2.44 | 陶瓷地板, , |
|
| 厨房 | 3.96x2.44 | 陶瓷地板, , |
|
| Primary B | 3.50x3.50 | 地毯, 大衣橱, 大窗 |
|
| 第二间卧室 | 3.10x2.40 | 硬木地板, 大衣橱, 大窗 |
|
| 第三间卧室 | 3.41x2.40 | 硬木地板, 大衣橱, 大窗 |
|
| 家庭房 Rm | 7.35x3.05 | 复合地板, 壁橱, 大窗 |
|
| 第四间卧室 | 3.68x2.53 | 地毯, 大衣橱, 窗户 |
|
| 洗衣房 | 3.68x2.53 | ||
| 工作室 | 8.41x3.41 |
| 卫生间 | 卫浴件数 | 所在楼层 | |
|---|---|---|---|
| 1间 | 3件套 | 主层 |
|
| 1间 | 3件套 | Basement |
















































