房屋信息
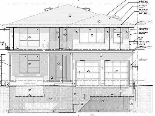
注意建筑者,建造了一座3857平方英尺,2层,4个卧室的房屋.基础完成。可用于继续实施该项目的核定提款。因此,销售权下出售,因为销售者没有任何担保。
主要特征
- 朝向: 后院朝东

- 睡房:

- 卫生间:

- 车库:

- 厨房:

重要信息
- 占地面接: 50.00 x 173.00 Feet

- 室内面积: < 700

- 地税: $ 3062.00

- E12750234

- Listing contracted with: RIGHT AT HOME REALTY
房屋简介
房屋位于世佳宝社区Morningside and Kingston Rd交界附近, 这间房卫车库Vacant Land户型朝东向. 房屋及周边设施包括None等. .学校信息
小学
-
-
-
中学
-
对口学区学校排名: 570/746 (分数: 4.8) 5年平均分: 585/746 (分数: 4.2)距离学校0.3公里 (走路大约6分钟)
-
St. Mother Teresa (年级: 9-12)
天主教学校
距离学校4.6公里 (开车大约14分钟) -
st. John Paul II (年级: 9-12)
天主教学校 IB课程
排名: 163/746 (分数: 7.3) 5年平均分: 284/746 (分数: 6.5)距离学校2.0公里 (走路大约36分钟)










