房屋信息
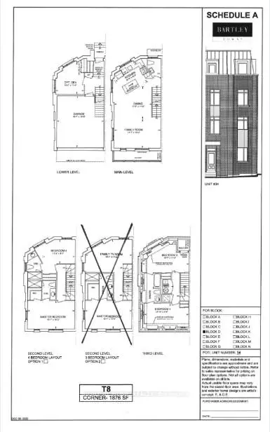
欢迎来到这个全新的从来没有住在家里,唯一的单位在建筑群有2个车库。绝对惊人的角落豪华的小镇住宅有两个车库充满了丰富的自然光提供了广阔的居住区被阳光所淹没深思熟虑地设计了更低的层次,是一个私人办公室,对今天的工作-家庭生活方式来说是理想的,而上层则提供了4个一般大小的卧室,适合家庭生活和生活区对接待客人的理想.超过1870平方英尺这一出众的家展示出天花板飞涨,整个楼层质量高,以及一个出众的橡树楼梯,营造出精致而精致的氛围.享受私人地平面停车场的便利,可直接进入室内并进行额外储存。这座住宅的特色是一个华丽的开放概念的现代厨房并有早餐区,而宽敞的生活和餐饮区则走出宽敞的阳台,适合烧烤,放松或主办聚会.两所豪华的初级卧室,包括一座有宁静的公园景观和CN塔景观的卧室,提供宁静的休憩空间,而第三所拥有自己阳台的卧室则吹出气来取景.最理想的地方是北约,仅走到Eglinton跨城地铁站,享受无比的便利与无弗里尔斯,沃尔玛,埃K林顿广场商场,和附近的好市多。该地区的吸引力因令人振奋的"金里"(黄金的Mile)发展而得到进一步提高,包括多伦多大学和百年学院未来的联合校园,使这里成为一个生机勃勃和极受欢迎的街区.允许的烧烤,游客停车
主要特征
- 朝向: 后院朝南

- 睡房: 4

- 卫生间: 4

- 车库: 2

- 厨房: 1

重要信息
- 占地面接: 18.47 x 40.90 Feet

- 室内面积: 1500-2000

- 地税: $ 5817.00

- C12925306

- Listing contracted with: RIGHT AT HOME REALTY
| 卫生间 | 卫浴件数 | 所在楼层 | |
|---|---|---|---|
| 1间 | 2件套 | 主层 |
|
| 1间 | 3件套 | Second |
|
| 1间 | 3件套 | Second |
|
| 1间 | 4件套 | Third |
房屋简介
房屋位于北约克C13社区Eglinton Ave and Victoria Pk交界附近, 这间4房4卫双车库三层镇屋户型朝南向. 1 Case Ootes Dr拥有双连接式停车位. 房屋及周边设施包括Other等. .学校信息
小学
-
-
-
-
-
-
中学
-
对口学区学校排名: 259/746 (分数: 6.8) 5年平均分: 260/746 (分数: 6.6)距离学校3.9公里 (开车大约12分钟)
-
-
st. Joan of Arc (年级: 9-12)
天主教AP课程学校
距离学校4.4公里 (开车大约13分钟)














































