房屋信息
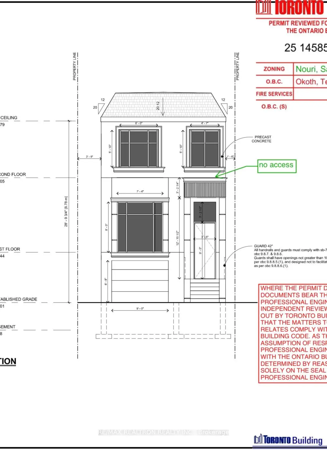
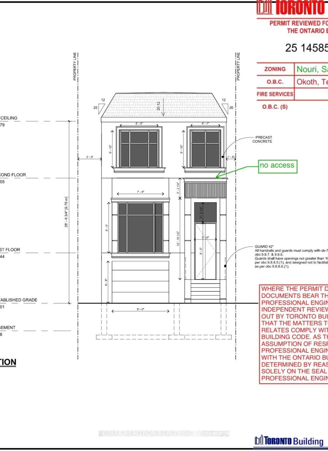
注意建设者与投资者! Lawrence 和.地点的Rd 和北主要avenue的特有机会。准备这房子的建筑许可证!找到在劳伦斯公园北区最理想的口袋中拥有的绝好机会.这个迷人的二层住宅充满了性格和潜力,最理想的地方是顶级学校、公园、商店和中转站。室内有明亮而宽敞的客厅,有舒适的壁炉,定制的内置,和漂亮的有铅的玻璃窗.精致的法式门向正餐室开放,展示出无时无刻已久的细节并可以无缝地进入更新后的厨房.厨房自吹自擂出全新的不锈钢电器,并提供一个走出去到双层甲板,理想的娱乐,俯瞰一个有着成熟花园和无限潜力的深厚后院.在楼上,你会找到一个慷慨的初级卧室,另外两个尺寸好的卧室,以及一个完整的家庭浴室.完成的下层包括一个大型取乐室或儿童游戏区,洗衣,储存,以及第二个浴室.这所房子已经准备就绪,已经获得建筑许可证,使它成为投资者、革新者或希望定制自己梦想的住宅的家庭的理想选择。恰好从约翰·万无斯 Ps,劳伦斯公园CI,公交,风景小道,餐馆,快餐店,和所有充满活力的便利设施,不要错过在多伦多最有名望的家庭社区投资或定居的这一难得机会!
主要特征
- 朝向: 后院朝北

- 睡房: 3

- 卫生间: 2

- 车库:

- 厨房: 1

重要信息
- 占地面接: 25.00 x 150.00 Feet

- 室内面积: 1100-1500

- 地税: $ 8974.00

- C12544342

- Listing contracted with: RE/MAX REALTRON REALTY INC.
| 房间 | 尺寸(平方米) | 细节描述 | |
|---|---|---|---|
| 客厅 Rm | 3.18x4.43 | 砖壁炉, 硬木地板, 开放式概念 |
|
| 晚餐室 Rm | 2.89x3.60 | 硬木地板, 开放式概念 |
|
| 厨房 | 0.00x0.00 | 不锈钢电器, 走出式甲板 |
|
| Primary B | 0.00x0.00 | 硬木地板, 窗户 |
|
| 卧室 | 0.00x0.00 | 硬木地板, 窗户 |
|
| 第二间卧室 | 0.00x0.00 | 硬木地板, 窗户 |
| 卫生间 | 卫浴件数 | 所在楼层 | |
|---|---|---|---|
| 1间 | 4件套 | Second |
|
| 1间 | 3件套 | 低层 |
















































