房屋信息
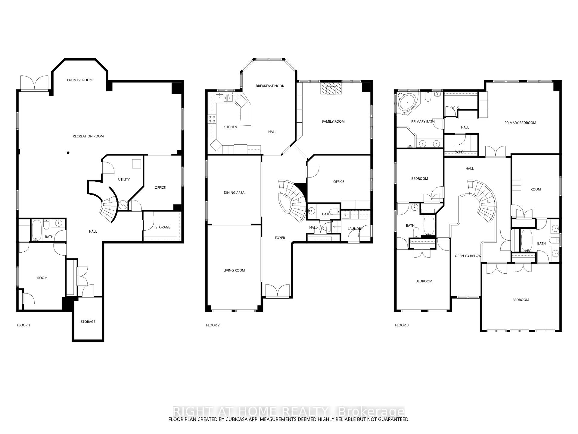
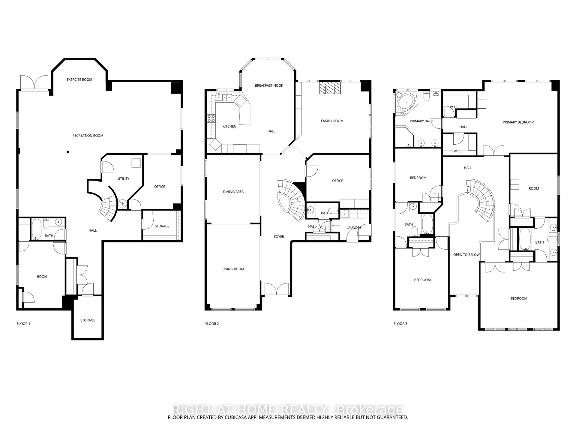
发现一个稀缺的城镇当sun灯光fills every角头和可能性stretch beyond back fence. set on 一个额外的普通的50 91 ft lot,这个通风的,开放式的,和宽敞的行政家给予优雅和 freedom 去创造你的梦想后院绿洲.这个令人惊叹的6-睡房, 5-bath民宅位于中心北约克, just分钟from Yonge 和 Finch,给予机会5,000 sq ft 已完成的生活空间包括一个走出口地下室.完美的套间为多层-generational生活,租赁收入,或者扩展家庭需要,它 blends实用的ity带有永恒的设计. stately stone,灰泥,和石膏façade开放式的去一个戏剧性门厅带有挑高19-ft层高,顶灯,和优雅的造型.表格生活和晚餐房间带有超大的窗户是非常理想的为娱乐,当一个 cozy 家庭房带有gas壁炉和内置式提供一个温暖每天.一个主要-地板图书馆带有wainscoting 和订制柜子给予魅力和 function,和厨师厨房带有天窗,一个中心岛, stainles-steel电器,和 gas range,完美的为家庭meals 或者客楼上, five明亮睡房享受南部ern朝向和一个天窗.主要套间包括his-和-hers步入式衣橱和一个类似水疗套间.已完成的走出口地下室adds 一个睡房和一个 full bath,和一个超大娱乐房间,环绕sound准备,完美的为 teens,亲属,或者奶奶use.走出去一个巨大的, sun-橡木后院,一个空白的画布为一个游泳池, cabana,花园,或者户外水疗中心.带有可以停放车辆four,一个附属的双车库on 一个安静的街道和 proximity 去 parks,学校,和公交,这个非凡的家给予scale,手艺,和位置,一个很难找到的在北约克.
主要特征
- 朝向: 后院朝北

- 睡房: 5

- 卫生间: 5

- 车库: 2

- 厨房: 1

重要信息
- 占地面接: 50.00 x 191.04 Feet

- 室内面积: 3500-5000

- 地税: $ 13166.00

- C12445583

- Listing contracted with: RIGHT AT HOME REALTY
| 房间 | 尺寸(平方米) | 细节描述 | |
|---|---|---|---|
| 客厅 Rm | 5.83x3.67 | 硬木地板, 模压天花板, 合并餐饮 |
|
| 晚餐室 Rm | 4.71x3.66 | 硬木地板, 模压天花板, 顶灯 |
|
| 厨房 | 4.27x3.05 | 现代厨房, 早餐台, 顶灯 |
|
| 早餐室 | 6.06x3.05 | 家庭大小的厨房, , 走出式甲板 |
|
| 家庭房 Rm | 4.85x3.54 | 硬木地板, , 煤气壁炉 |
|
| 图书馆 | 4.35x3.69 | 硬木地板, , 3pcs卫生间套间 |
|
| 洗衣房 | 2.13x2.13 | , 步入车库, 洗衣房水池 |
|
| Powder Rm | 2.02x1.04 | ||
| Primary B | 5.56x5.09 | 硬木地板, , 6pcs卫生间套间 |
|
| 第二间卧室 | 5.34x4.57 | 双壁橱, 半套卫生间 |
|
| 第三间卧室 | 3.27x4.32 | 硬木地板, 壁橱 |
|
| 第四间卧室 | 3.20x3.64 | 硬木地板, 壁橱 |
| 卫生间 | 卫浴件数 | 所在楼层 | |
|---|---|---|---|
| 1间 | 6件套 | Second |
|
| 1间 | 5件套 | Second |
|
| 1间 | 4件套 | Second |
|
| 1间 | 2件套 | 主层 |
|
| 1间 | 4件套 | Basement |
房屋简介
房屋位于北约克央街西侧N. Finch Ave and W. Yonge st.交界附近, 这间5房5卫双车库两层独立房户型朝北向. 154 Charlton Blvd拥有双连接式停车位. 房屋及周边设施包括In-LawCapability,CountertopRange,CentralVacuum,Built-InOven,AutoGarageDoorRemot和AirExchanger等. 客厅 Rm, 晚餐室 Rm, 厨房, 早餐室, 家庭房 Rm, 图书馆, 洗衣房和 Powder Rm在主层.学校信息
- R J Lang Elementary and公立初中 (Grade:JK-8) 2227/3037
- Fisherville公立初中 (Grade:7-8)
- Northview Heights公立中学 (Grade:9-12) 180/739
- St. Paschal Baylon天主教学校 (Grade:JK-8) 1756/3037
- Rockford公立小学 (Grade:JK-6) 1540/3037
- Pleasant公立小学 (Grade:JK-6) 577/3037















































