房屋信息
Live on a gorgeous tree-lined crescent walking distance to the restaurants on Main St. Property being sold as-is. Can do minor fix ups to live in or tear down for your dream home . Raised bungalow on an oversized lot with soaring 100' + tall trees. The street has stunning views all 4 seasons. Arguably one of the best streets to live on in Newmarket, among many new custom built homes. Huge garage- 2.5 bays has lots of storage. DRiveway fits 6 cars comfortably. Architectural plans exist for the lot + are available for purchase.
主要特征
- 朝向: 后院朝南

- 睡房: 3

- 卫生间: 3

- 车库: 3

- 厨房: 1

重要信息
- 占地面接: 88.28 x 135.00 Feet

- 室内面积: 1100-1500

- 地税: $ 0.00

- N12595662

- Listing contracted with: VANGUARD REALTY BROKERAGE CORP.
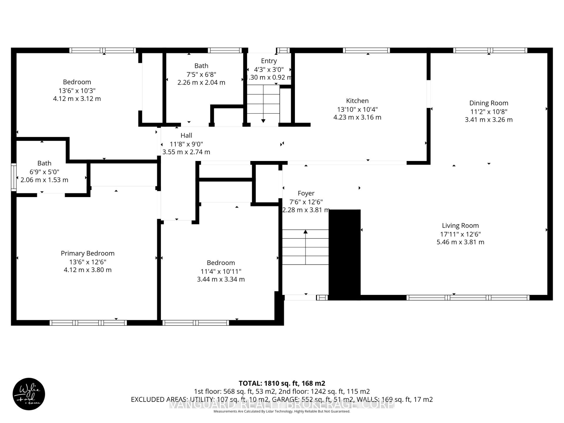
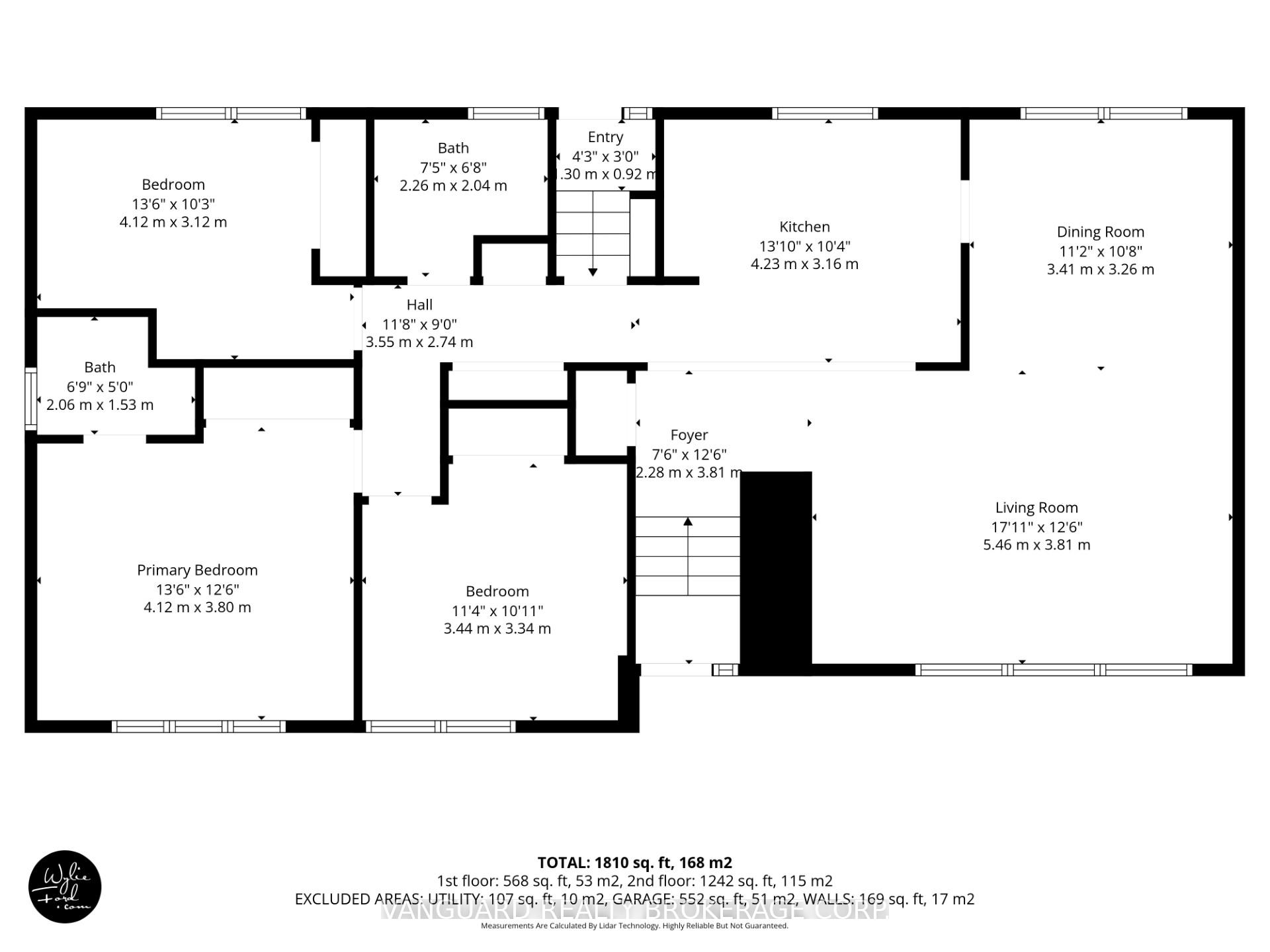
| 房间 | 尺寸(平方米) | 细节描述 | |
|---|---|---|---|
| 门厅 | 2.28x3.81 | 窗户, 硬木地板, 壁橱 |
|
| 客厅 Rm | 3.81x5.46 | 硬木地板, 窗户, 壁炉 |
|
| 晚餐室 Rm | 3.41x3.26 | 硬木地板, 窗户, |
|
| 厨房 | 3.16x4.23 | , 陶瓷地板, 窗户 |
|
| Primary B | 3.80x4.12 | 硬木地板, 3pcs卫生间套间, 壁橱 |
|
| 第二间卧室 | 3.34x3.44 | 壁橱, 硬木地板, 窗户 |
|
| 第三间卧室 | 3.12x4.12 | 壁橱, 窗户, 硬木地板 |
|
| Bath | 2.04x2.26 | 陶瓷地板, 窗户, 三件套卫生间 |
|
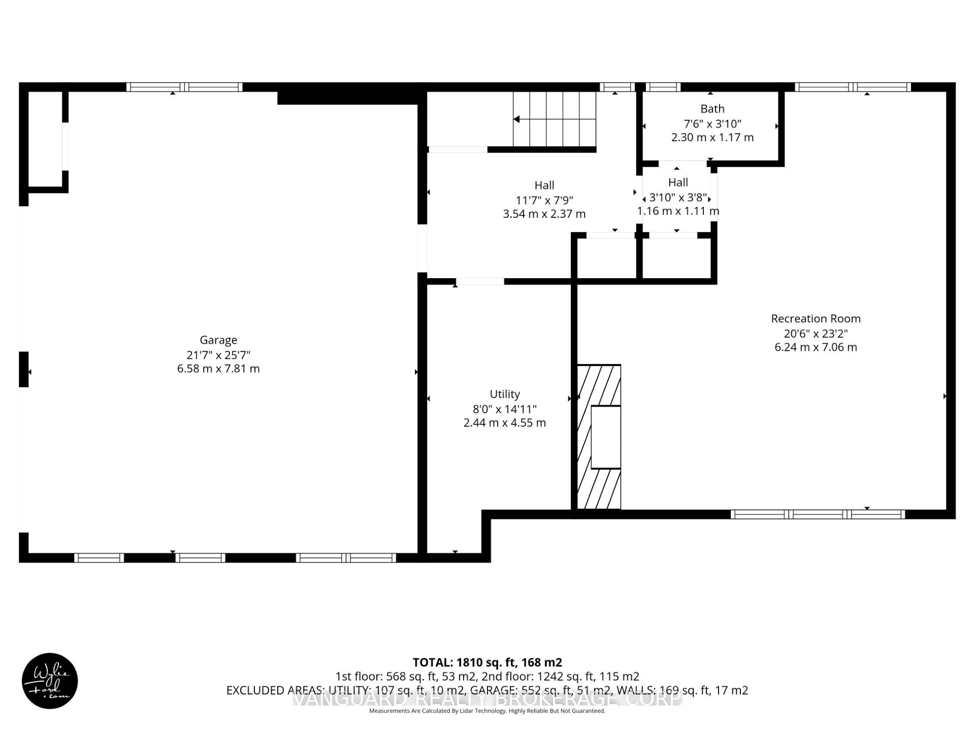
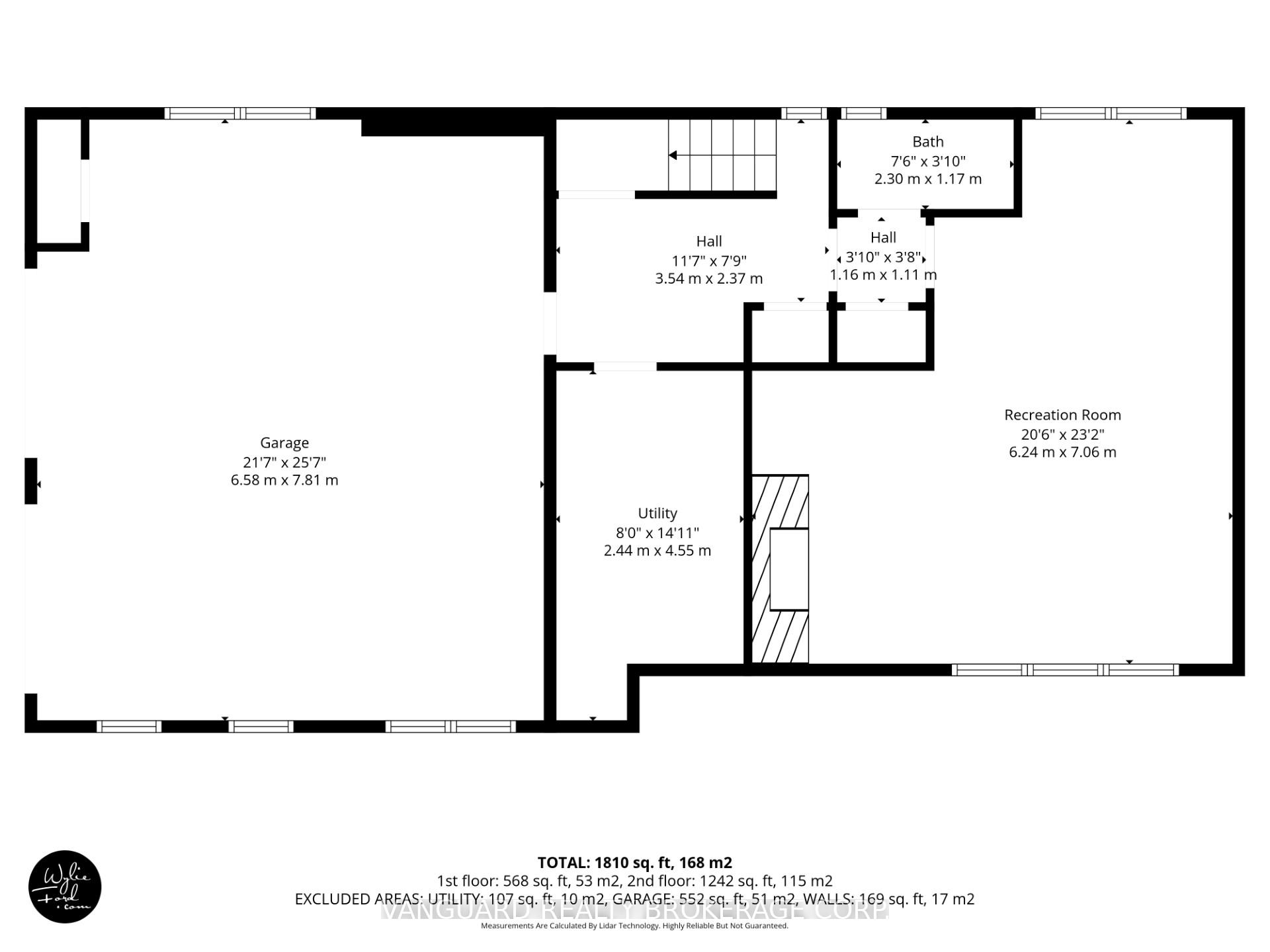
| 娱乐室reatio | 7.06x6.24 | 复合地板, 大窗, 壁炉 |
|
| Bath | 1.17x2.30 | 窗户, 陶瓷地板, 三件套卫生间 |
| 卫生间 | 卫浴件数 | 所在楼层 | |
|---|---|---|---|
| 1间 | 3件套 | 主层 |
|
| 1间 | 3件套 | 主层 |
|
| 1间 | 3件套 | Basement |
































