房屋信息
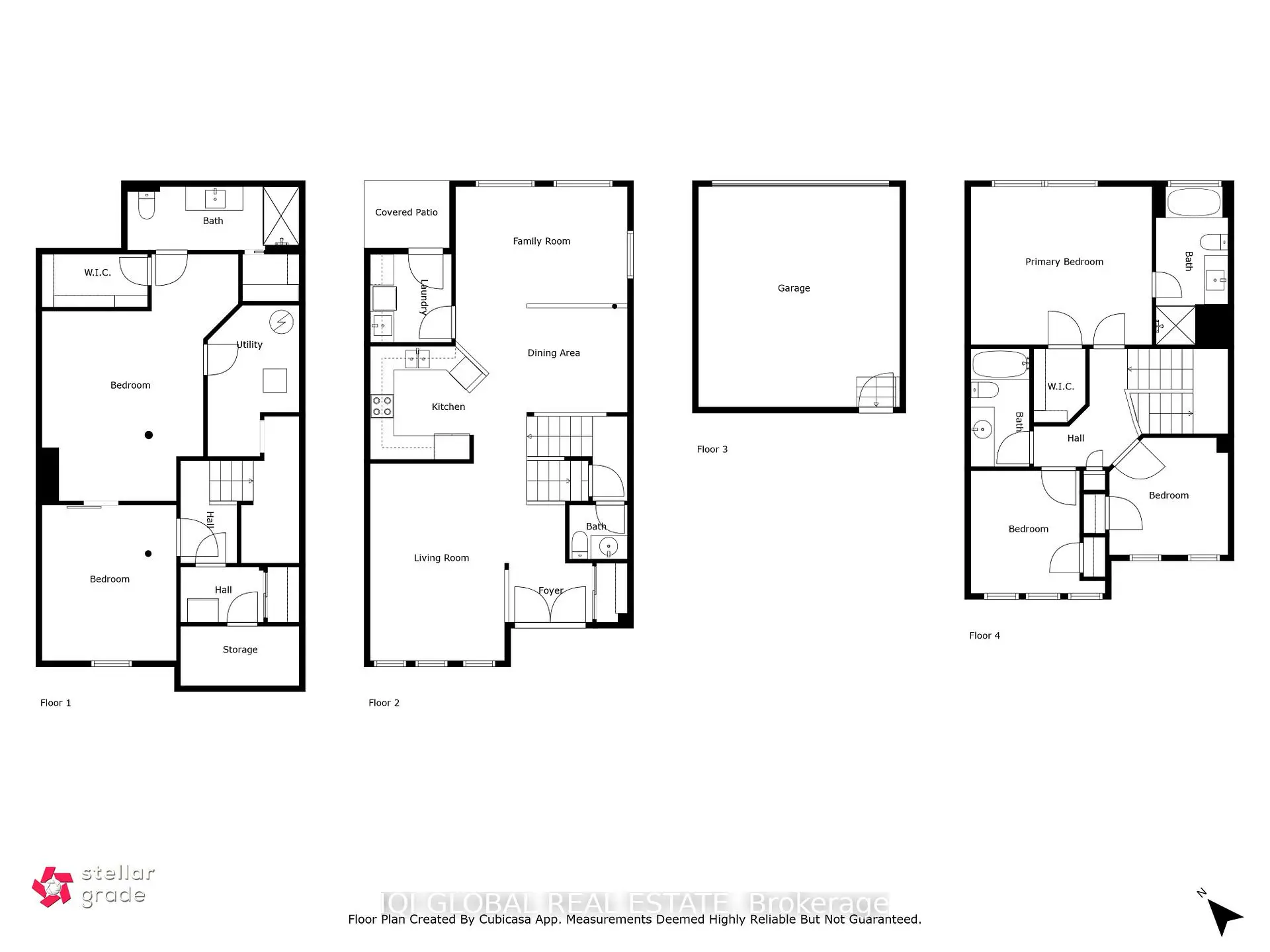
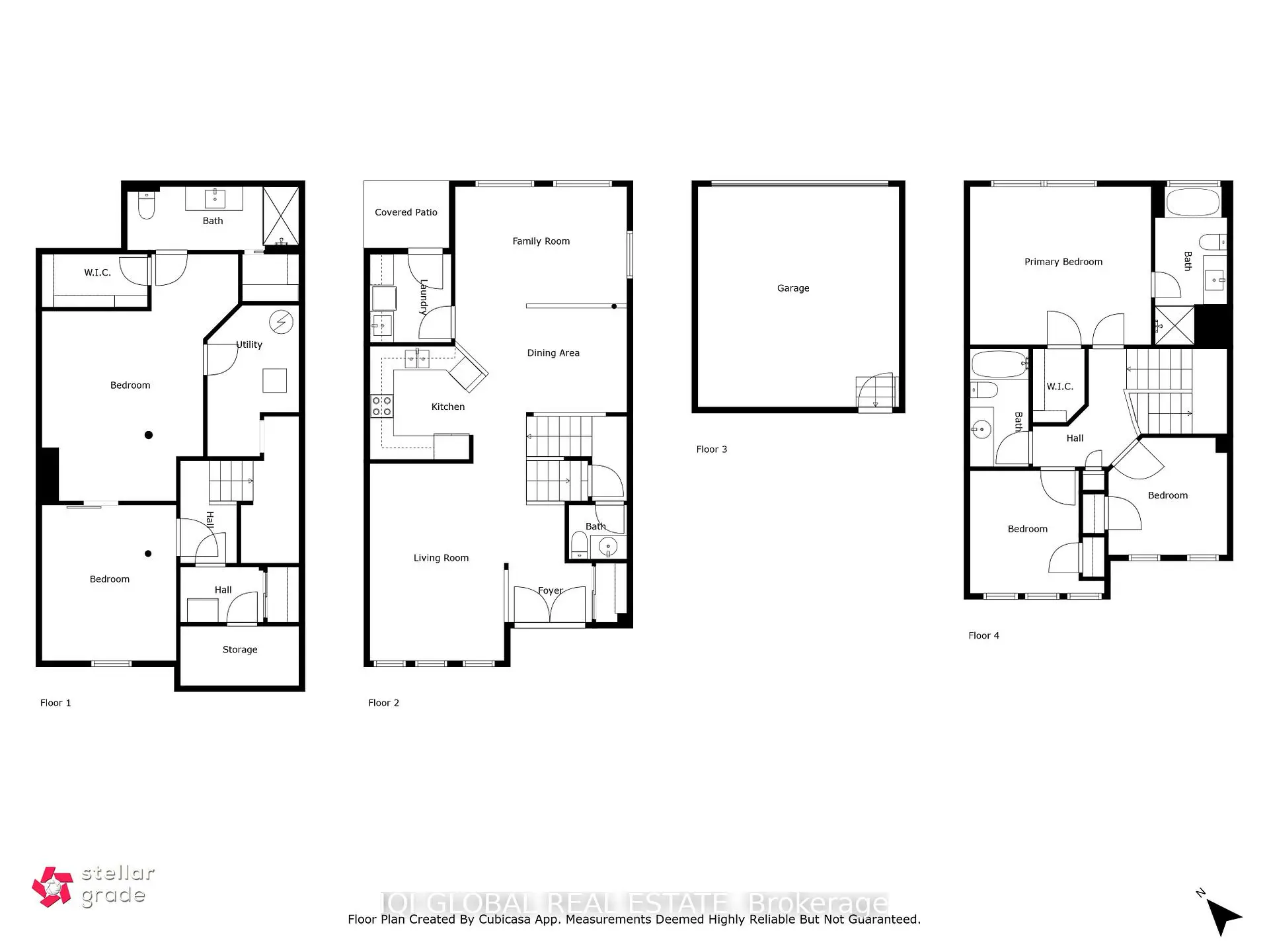
Beautifully upgraded 3+1 bedroom, 4 bathroom freehold townhouse on a rare 100-ft deep lot with double car garage in the heart of Churchill Meadows, Mississauga. Offering over 2,300 sq. ft. of total living space, this move-in ready home blends modern style, eco-friendly upgrades, and exceptional family functionality. The bright main floor features spacious living, dining, and family areas, ideal for both everyday living and entertaining.Upstairs offers 3 generous bedrooms, including an exceptionally spacious primary retreat measuring approximately 15 ft x 13 ft-rarely found in townhomes of this size-complete with a 4-pc ensuite and a walk-in closet, providing both comfort and functionality.The finished basement adds incredible versatility with a complete 1-bedroom suite featuring a 4-pc bath, walk-in closet, linen closet, and a large sitting/family room, perfect for extended family, guests, or added living space.Over $75K in premium upgrades include new stairs, vinyl flooring throughout, pot lights, upgraded skirting, fresh paint, and an enhanced front walkway. Energy-conscious improvements include a Tesla EV charger with upgraded electrical panel, high-efficiency heat pump that significantly reduces gas usage, large owned electric water heater with no rental fees, and Samsung appliances including fridge, dishwasher, washer, and dryer.Ideally located within walking distance to Stephen Lewis Secondary School, Ruth Thomson Middle School, Churchill Meadows Public School, FreshCo, TD Bank, Tim Hortons, Shoppers Drug Mart, walk-in clinic, community centre, library, and parks, with easy access to 10th Line, Thomas Street, transit, and major highways.A rare opportunity to own a spacious, upgraded family home in one of Mississauga's most sought-after neighbourhoods. Feature/Upgrade sheet and floor plan attached.
主要特征
- 朝向: 后院朝东

- 睡房: 3

- 卫生间: 4

- 车库: 2

- 厨房: 1

重要信息
- 占地面接: 22.48 x 100.10 Feet

- 室内面积: 1500-2000

- 地税: $ 5459.00

- W12919948

- Listing contracted with: IQI GLOBAL REAL ESTATE
| 房间 | 尺寸(平方米) | 细节描述 | |
|---|---|---|---|
| 客厅 Rm | 3.50x5.15 | 大窗, 乙烯塑胶地板 |
|
| 晚餐室 Rm | 2.50x3.45 | , 陶瓷地板 |
|
| 家庭房 Rm | 3.00x4.40 | , 乙烯塑胶地板 |
|
| 厨房 | 2.93x3.08 | 陶瓷地板, 防溅挡板 |
|
| 洗衣房 | 2.00x2.30 | 陶瓷地板, 走出式后院 |
|
| Primary B | 4.10x4.58 | 乙烯塑胶地板, 4pcs卫生间套间, |
|
| 第二间卧室 | 2.90x3.05 | 乙烯塑胶地板, 壁橱 |
|
| 第三间卧室 | 2.79x3.30 | 乙烯塑胶地板, 壁橱 |
|
| 门厅 | 1.45x2.18 | 乙烯塑胶地板 |
|
| 第四间卧室 | 4.16x12.15 | 乙烯塑胶地板, , 顶灯 |
|
| 家庭房 Rm | 3.44x3.96 | 乙烯塑胶地板 |
| 卫生间 | 卫浴件数 | 所在楼层 | |
|---|---|---|---|
| 2间 | 4件套 | Second |
|
| 1间 | 2件套 | 主层 |
|
| 1间 | 4件套 | Basement |
















































