Description
Don't miss out on this amazing home with superior quality for the price! Complete infrastructure upgrades - gutted to the brick in 2000 - insulated to R20, new vapour barrier, all new wiring, copper plumbing, new stacks, pot lights, real hardwood oak floors, chair height toilets, marble bathrooms, new windows & doors and stone entry steps. All roofs were replaced between 2021 and 2023 - 2 flat roofs, one sloped roof with new asphalt shingles. 9ft ceilings throughout - all 3 floors. 3rd floor master suite with ensuite bathroom, small kitchen bar area with fridge added in 2016 with outdoor patio. Third floor A\C wall unit added in 2017 for your comfort.New in 2000- 14 foot high insulated double garage - protect your cars indoor for the winter or convert to an in-law suite, rental suite or your own studio or workspace with its own 60 amp service already installed and still have 3 outdoor parking spots. Highly desirable neighbourhood - walk two blocks to groceries, drugstore, and multitudes of highly rated restaurants, bars and coffee shops.TTC at your door for a short downtown commute.Come see it to believe it!
Features
- Facing: East

- Bedrooms: 4

- Bathrooms: 4

- Garages: 2

- Kitchens: 1

Details
- Lot size: 19.42 x 122.58 Feet

- Space: 2000-2500

- Tax: $ 7721.85

- E12803898

- Listing contracted with: HOME CHOICE REALTY INC.
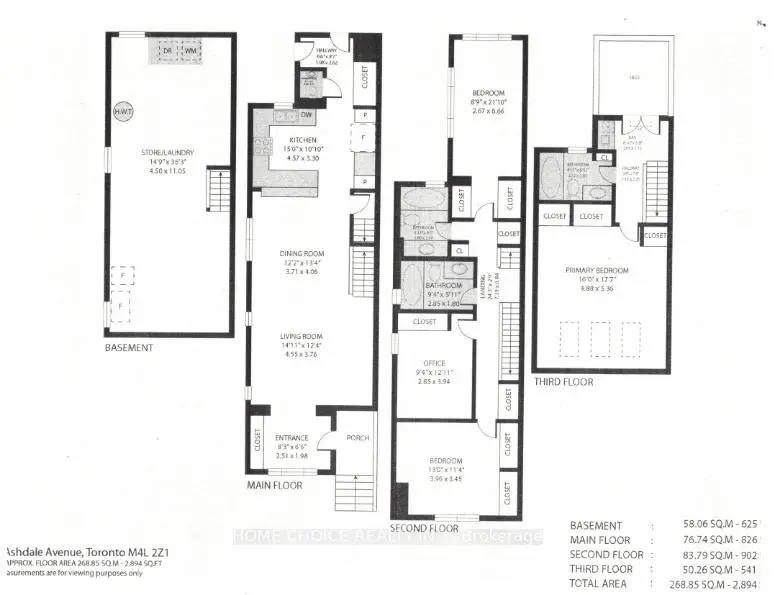
| Room | Size(M) | Description | |
|---|---|---|---|
| Living Rm | 4.55x3.76 | Hardwood Floor, Combined w/Dining |
|
| Dining Rm | 3.71x4.06 | Hardwood Floor, Combined w/Living |
|
| Kitchen | 4.57x3.30 | Breakfast Bar, Overlooks Dining |
|
| Foyer | 2.51x1.98 | Hardwood Floor |
|
| Office | 1.98x2.62 | Hardwood Floor |
|
| Br | 3.96x3.45 | Hardwood Floor |
|
| Br | 2.85x3.94 | Hardwood Floor |
|
| Br | 2.67x6.66 | Hardwood Floor |
|
| Br | 4.88x5.36 | Hardwood Floor |
|
| Other | 2.69x1.12 | B/I Bar, Walk-Out |
|
| Laundry | 4.50x11.05 |
| Bathroom | Pieces | Level | |
|---|---|---|---|
| 1xBath | 2 pcs | Main |
|
| 2xBaths | 4 pcs | Second |
|
| 1xBath | 4 pcs | Third |
Property Summary
Located close to the intersection of Gerrard and Coxwell, 283 Ashdale Ave is a 4+1 bedrooms 4 washrooms Detached. The unit has a Double Detached Parking Spaces. The property has many nice features including Upgraded Insulation, Carpet Free, Central Vacuum and Bar Fridge. Living Room Rm, Dinning Room Rm, Kitchen, Foyer and Office are on the Main floor.School Information
Elementary Schools
-
Home schoolRank: 2196 out of 3022 (Score: 5.0)Distance to school: 0.2 km (~3 min walk)
-
ST JOSEPH (Grade: JK - 8)
Catholic French Immersion school
Rank: 1165 out of 3022 (Score: 6.6)Distance to school: 1.1 km (~20 min walk) -
HOLY NAME (Grade: JK - 7)
Catholic French Immersion school
Rank: 687 out of 3022 (Score: 7.3)Distance to school: 2.1 km (~6 min drive) -
ST AGATHA (Grade: JK - 8)
Catholic French Immersion school
Rank: 1934 out of 3022 (Score: 5.5)Distance to school: 9.3 km (~28 min drive) -
ST JOHN TORONTO (Grade: 5 - 8)
Catholic French Immersion school
Distance to school: 2.3 km (~7 min drive) Secondary Schools
-
Home schoolRank: 62/746 (Score: 8.3) 5 year average: 235/746 (Score: 6.7)Distance to school: 0.7 km (~12 min walk)
-
st. Patrick (Grade: 9-12)
Catholic AP program school
Rank: 244/746 (Score: 6.9) 5 year average: 222/746 (Score: 6.8)Distance to school: 0.8 km (~14 min walk) -
Notre Dame (Grade: 9-12)
Catholic French Immersion school
Rank: 41/746 (Score: 8.6) 5 year average: 90/746 (Score: 7.7)Distance to school: 2.4 km (~7 min drive)






























