Description
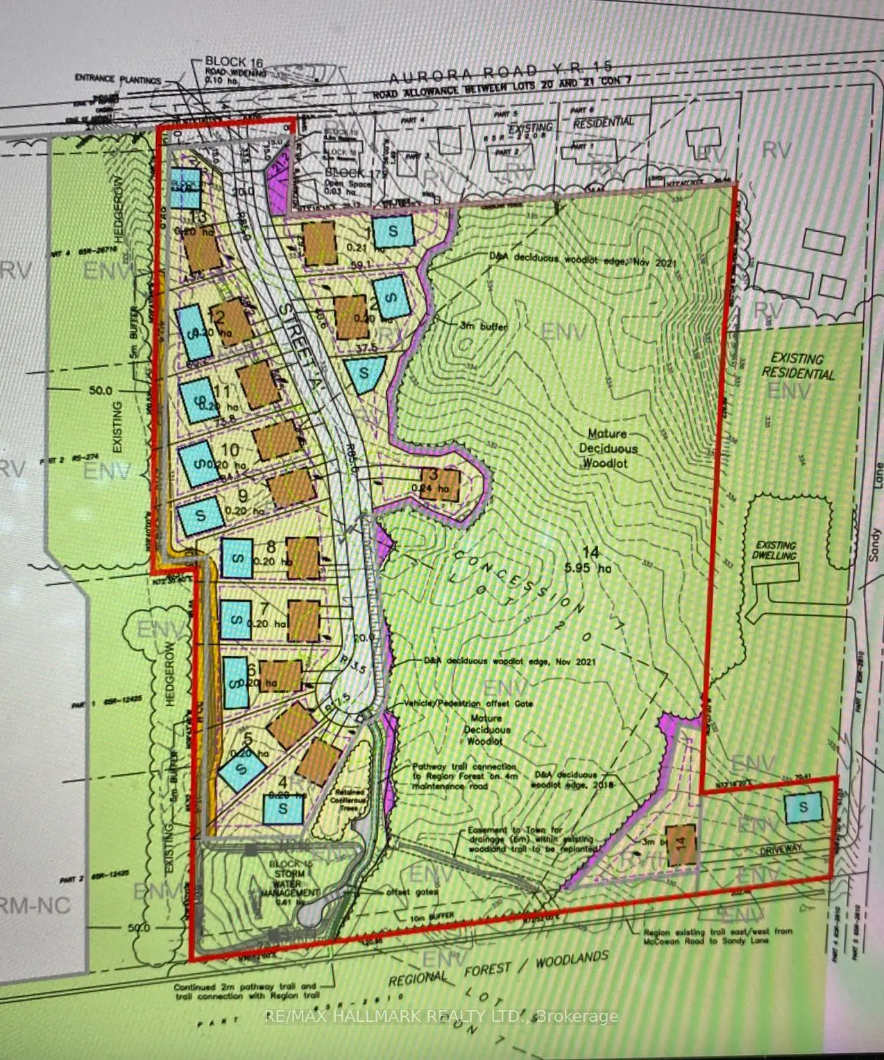
A rare opportunity for international investors and luxury home builders to acquire premium, draft plan-approved development land comprising thirteen half-acre residential lots and one exceptional parcel of approximately 15 acres. Located within the prestigious Ballantrae enclave of the Oak Ridges Moraine-an environmentally protected region with highly restricted development. Just ten minutes from Highway 404 and the Aurora Road interchange. The approved plan permits the construction of fourteen bespoke luxury estate residences. This opportunity is well-suited for luxury builders and global investors pursuing land-banking or premium residential development within Canada, an internationally recognized jurisdiction known for political stability, transparent property rights, and long-term capital preservation.
Features
- Facing: North

- Bedrooms:

- Bathrooms:

- Garages:

- Kitchens:

Details
- Lot size: 63.00 x --- Feet

- Space: ---

- Tax: $ 5932.00

- N13027370

- Listing contracted with: RE/MAX HALLMARK REALTY LTD.
Property Summary
Located close to the intersection of Aurora Rd & McCowan Rd, 4597 Aurora Rd is a bedrooms washrooms Vacant Land. .School Information
- Ballantrae Public School (Grade:JK-8)
- Stouffville District Secondary School (Grade:9-12) 281/739
- St. Mark Catholic Elementary School (Grade:1-8) 1617/3037
- St. Maximilian Kolbe Catholic High School (Grade:9-12)
- Harry Bowes Public School (Grade:1-2) 688/3037
- Glad Park Public School (Grade:3-8) 392/3037
- Aurora High School (Grade:9-12) 35/739









