Description
Step into a home that truly has it all space, style, and incredible versatility in the heart of Crosby. This beautifully renovated 4+2 bedroom semi-detached home offers a bright and inviting layout, thoughtfully upgraded from top to bottom with quality finishes throughout. From the moment you walk in, you're welcomed by warm hardwood floors, smooth ceilings, and pot lights that create a modern yet comfortable atmosphere. The spacious kitchen, complete with stainless steel appliances, flows seamlessly into the living and dining areas perfect for everyday living and entertaining. Upstairs, you'll find generously sized bedrooms, including a spacious primary retreat featuring its own private ensuite a rare and desirable upgrade in this area. The fully finished basement with a separate entrance opens the door to endless possibilities. Featuring a2-bedroom in-law suite with its own laundry, it's ideal for extended family or generating rental income. Located in a highly desirable, family-friendly neighbourhood within the Bayview Secondary School district, and just minutes to transit, highways, shopping, and parks, this home checks every box. A rare opportunity to own a move-in ready home with built-in income potential in one of Richmond Hill's most sought-after communities.
Features
- Facing: North

- Bedrooms: 4

- Bathrooms: 4

- Garages:

- Kitchens: 2

Details
- Lot size: 37.50 x 100.00 Feet

- Space: 1100-1500

- Tax: $ 4569.00

- N12916224

- Listing contracted with: RE/MAX REALTRON REALTY INC.
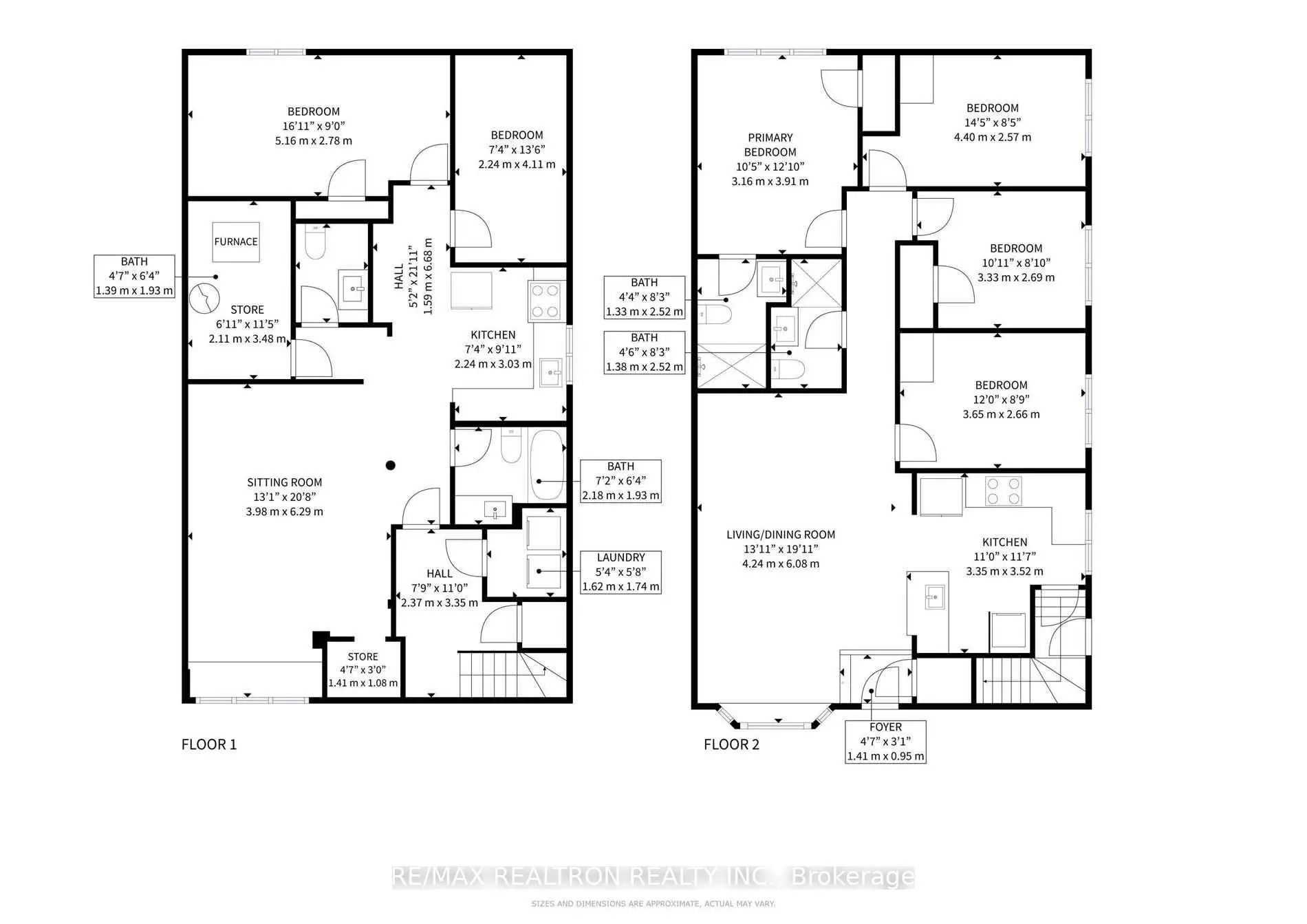
| Room | Size(M) | Description | |
|---|---|---|---|
| Living Rm | 6.17x2.88 | Hardwood Floor, Combined w/Dining, Bay Window |
|
| Dining Rm | 6.17x2.88 | Hardwood Floor, Combined w/Living, Pot Lights |
|
| Kitchen | 3.20x3.92 | Hardwood Floor, Stainless Steel Appl, Quartz Counter |
|
| Primary B | 3.16x3.98 | Hardwood Floor, 3 Pc Ensuite, Pot Lights |
|
| 2nd Br | 4.45x2.60 | Hardwood Floor, Large Window, Closet |
|
| 3rd Br | 2.93x2.69 | Hardwood Floor, Large Window, Pot Lights |
|
| 4th Br | 3.65x2.66 | Hardwood Floor, Large Window, Pot Lights |
|
| Living Rm | 6.18x3.99 | Vinyl Floor, 4 Pc Bath, Pot Lights |
|
| Kitchen | 3.07x2.22 | Vinyl Floor, Stainless Steel Appl, Quartz Counter |
|
| 5th Br | 2.84x4.51 | Vinyl Floor, Above Grade Window, Pot Lights |
|
| Br | 2.27x2.86 | Vinyl Floor, Closet, Pot Lights |
|
| Laundry | 0.00x0.00 | Vinyl Floor |
| Bathroom | Pieces | Level | |
|---|---|---|---|
| 1xBath | 3 pcs | Main |
|
| 1xBath | 3 pcs | Main |
|
| 1xBath | 2 pcs | Lower |
|
| 1xBath | 4 pcs | Lower |
Property Summary
Located close to the intersection of Bayview and Elgin Mills, 219 Beechy Dr is a 4+2 bedrooms 4 washrooms Semi-Detached. The property's basement is finished and has bedrooms. The property has many nice features including Primary Bedroom - Main and In-Law Suite. Living Room Rm, Dinning Room Rm, Kitchen, Primary B, second bedroom, third bedroom and fourth bedroom are on the Main floor; Living Room Rm, Kitchen, fifth bedroom, Br and Laundry are on the Lower floor.School Information
Elementary Schools
-
Gifted program school
Rank: 888 out of 3022 (Score: 7.0)Distance to school: 0.8 km (~14 min walk) -
French Immersion school
Rank: 516 out of 3022 (Score: 7.6)Distance to school: 1.4 km (~26 min walk) -
French Immersion school
Distance to school: 0.6 km (~11 min walk) -
Catholic French Immersion school
Rank: 150 out of 3022 (Score: 8.6)Distance to school: 4.6 km (~14 min drive) -
Catholic Gifted program school
Rank: 1 out of 3022 (Score: 10.0)Distance to school: 4.2 km (~13 min drive) Secondary Schools
-
Home schoolRank: 9/746 (Score: 9.4) 5 year average: 8/746 (Score: 8.9)Distance to school: 1.8 km (~32 min walk)
-
French Immersion school
Rank: 422/746 (Score: 5.8) 5 year average: 222/746 (Score: 6.8)Distance to school: 5.7 km (~17 min drive) -
French Immersion school
Rank: 20/746 (Score: 9.0) 5 year average: 50/746 (Score: 8.0)Distance to school: 7.1 km (~21 min drive) -
AP program school
Rank: 67/746 (Score: 8.2) 5 year average: 109/746 (Score: 7.5)Distance to school: 2.6 km (~8 min drive) -
Home school IB Program
Rank: 9/746 (Score: 9.4) 5 year average: 8/746 (Score: 8.9)Distance to school: 1.8 km (~32 min walk) -
Catholic Home school
Rank: 89/746 (Score: 8.0) 5 year average: 135/746 (Score: 7.3)Distance to school: 1.2 km (~21 min walk) -
Catholic AP program school
Rank: 89/746 (Score: 8.0) 5 year average: 135/746 (Score: 7.3)Distance to school: 1.2 km (~21 min walk) -
Catholic Gifted program school
Rank: 1729/746 (Score: 5.8)Distance to school: 2.8 km (~8 min drive)
















































