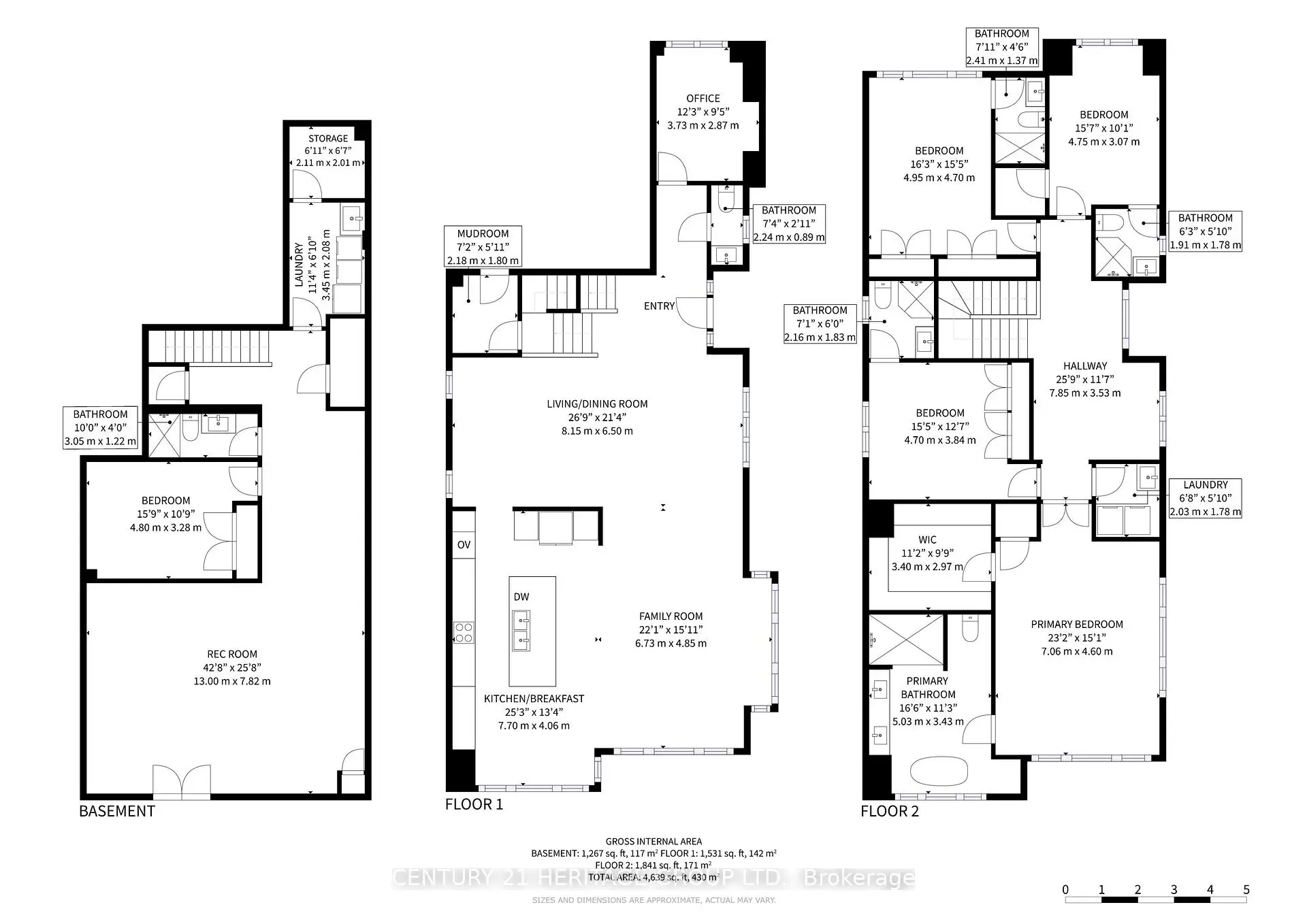
Description
This stunning, modern, nearly-new 4+1 bedroom home in highly desirable Richmond Hill showcases expansive light-filled windows and a bright, airy layout. The beautifully crafted open-concept kitchen serves as a stylish and welcoming centerpiece, featuring premium stainless steel appliances and granite countertops. Motorized blinds in the kitchen and family room add effortless luxury and everyday comfort. The main floor also includes a private office, ideal for remote work or study. Each second-floor bedroom offers its own ensuite with sleek floating vanities, delivering a refined, hotel-inspired feel. The fully finished walkup basement includes an additional bedroom and a spacious open area, providing exceptional flexibility - perfect for a guest suite, recreation space, multigenerational living, or even a potential separate unit. Nestled in a prestigious neighborhood surrounded by luxury homes and top-rated schools such as St. Theresa of Lisieux, this property offers an outstanding lifestyle. With over $100,000 in upgrades, it combines comfort, quality, and enhanced value throughout.
Features
- Facing: South

- Bedrooms: 4

- Bathrooms: 6

- Garages: 2

- Kitchens: 1

Details
- Lot size: 40.26 x 140.00 Feet

- Space: 3000-3500

- Tax: $ 10509.77

- N12875444

- Listing contracted with: CENTURY 21 HERITAGE GROUP LTD.
| Room | Size(M) | Description | |
|---|---|---|---|
| Living Rm | 8.15x6.50 | Open Concept, Large Window, Hardwood Floor |
|
| Dining Rm | 8.15x6.50 | Combined w/Living, Pot Lights, Hardwood Floor |
|
| Family Rm | 6.73x4.85 | Open Concept, Pot Lights, Hardwood Floor |
|
| Kitchen | 7.70x4.06 | Centre Island, Granite Counters, B/I Ctr-Top Stove |
|
| Office | 3.73x2.87 | Large Window, Pot Lights, Hardwood Floor |
|
| Primary B | 7.06x4.60 | Double Closet, 5 Pc Ensuite, Hardwood Floor |
|
| 2nd Br | 4.70x3.84 | Double Closet, 5 Pc Ensuite, Hardwood Floor |
|
| 3rd Br | 4.95x4.70 | Double Closet, 3 Pc Ensuite, Hardwood Floor |
|
| 4th Br | 4.75x3.07 | Pot Lights, 3 Pc Ensuite, Hardwood Floor |
|
| 5th Br | 4.80x3.28 | Double Closet, 3 Pc Bath, Laminate |
|
| Mud Rm | 2.18x1.80 | W/O To Garage, Tile Floor |
|
| Recreatio | 13.00x7.82 | Walk-Up, Pot Lights, Laminate |
| Bathroom | Pieces | Level | |
|---|---|---|---|
| 1xBath | 5 pcs | Second |
|
| 3xBaths | 3 pcs | Second |
|
| 1xBath | 2 pcs | Main |
|
| 1xBath | 3 pcs | Sub-Base |
Property Summary
Located close to the intersection of Bathurst & Elgin Mills, 251 Oxford St is a 4+1 bedrooms 6 washrooms Detached. The unit has a Double Built-In Parking Spaces. The property has a finished Walk-Up basement. The property has many nice features including Countertop Range, Carpet Free, Built-In Oven and Auto Garage Door Remot. Living Room Rm, Dinning Room Rm, Family Room Rm, Kitchen, Office and Mud Rm are on the Main floor.School Information
Elementary Schools
-
Home schoolRank: 516 out of 3022 (Score: 7.6)Distance to school: 1.0 km (~18 min walk)
-
French Immersion school
Rank: 516 out of 3022 (Score: 7.6)Distance to school: 4.2 km (~13 min drive) -
French Immersion school
Distance to school: 3.4 km (~10 min drive) -
Catholic French Immersion school
Rank: 77 out of 3022 (Score: 8.1) 5 year average: 76/3022 (Score: 7.8)Distance to school: 3.3 km (~10 min drive) -
Catholic Gifted program school
Rank: 1 out of 3022 (Score: 10.0)Distance to school: 3.4 km (~10 min drive) Secondary Schools
-
AP program school
Rank: 67/746 (Score: 8.2) 5 year average: 109/746 (Score: 7.5)Distance to school: 1.8 km (~33 min walk) -
French Immersion school
Rank: 422/746 (Score: 5.8) 5 year average: 222/746 (Score: 6.8)Distance to school: 5.1 km (~15 min drive) -
French Immersion school
Rank: 20/746 (Score: 9.0) 5 year average: 50/746 (Score: 8.0)Distance to school: 7.6 km (~23 min drive) -
AP program school
Rank: 67/746 (Score: 8.2) 5 year average: 109/746 (Score: 7.5)Distance to school: 1.8 km (~33 min walk) -
AP program school IB Program
Rank: 67/746 (Score: 8.2) 5 year average: 109/746 (Score: 7.5)Distance to school: 1.8 km (~33 min walk) -
Catholic Home school
Rank: 1729/746 (Score: 5.8)Distance to school: 1.3 km (~24 min walk) -
Catholic AP program school
Rank: 1729/746 (Score: 5.8)Distance to school: 1.3 km (~24 min walk) -
Catholic Gifted program school
Rank: 1729/746 (Score: 5.8)Distance to school: 1.3 km (~24 min walk)
















































