Description
Welcome to 10 Lawson Court, situated in the heart of Richmond Hill and nestled on a quiet, family-friendly cul-de-sac court. Step inside to a bright and functional main level, featuring a spacious living and dining area. Enjoy an OVERSIZED backyard offering endless potential for outdoor living, entertaining, and future enhancements. The thoughtfully designed layout offers excellent flow and versatility. Recent upgrades include a 2025 kitchen update with new cabinetry, backsplash, sink, and appliances, new luxury vinyl plank flooring on the main level, an updated powder room vanity, and fresh paint throughout. Upstairs, you'll find four generously sized bedrooms, providing comfortable space for families of all sizes. The partially finished basement adds valuable additional living space, complete with a media/entertainment area and ample room for customization, an ideal canvas for buyers looking to add their own personal touches. Thoughtfully laid out with everyday functionality in mind, this home combines comfort, convenience, and opportunity-offering the perfect foundation for a buyer to bring out its full potential and truly make it their own. Near all amenities, backing onto a top-rated school, places of workship (church, mosques), shopping, public transit, the GO station, and all major amenities, this is a location that truly delivers everyday convenience.
Features
- Facing: South

- Bedrooms: 4

- Bathrooms: 3

- Garages: 2

- Kitchens: 1

Details
- Lot size: 29.99 x 132.66 Feet

- Space: 2500-3000

- Tax: $ 7687.00

- N12747170

- Listing contracted with: RIGHT AT HOME REALTY
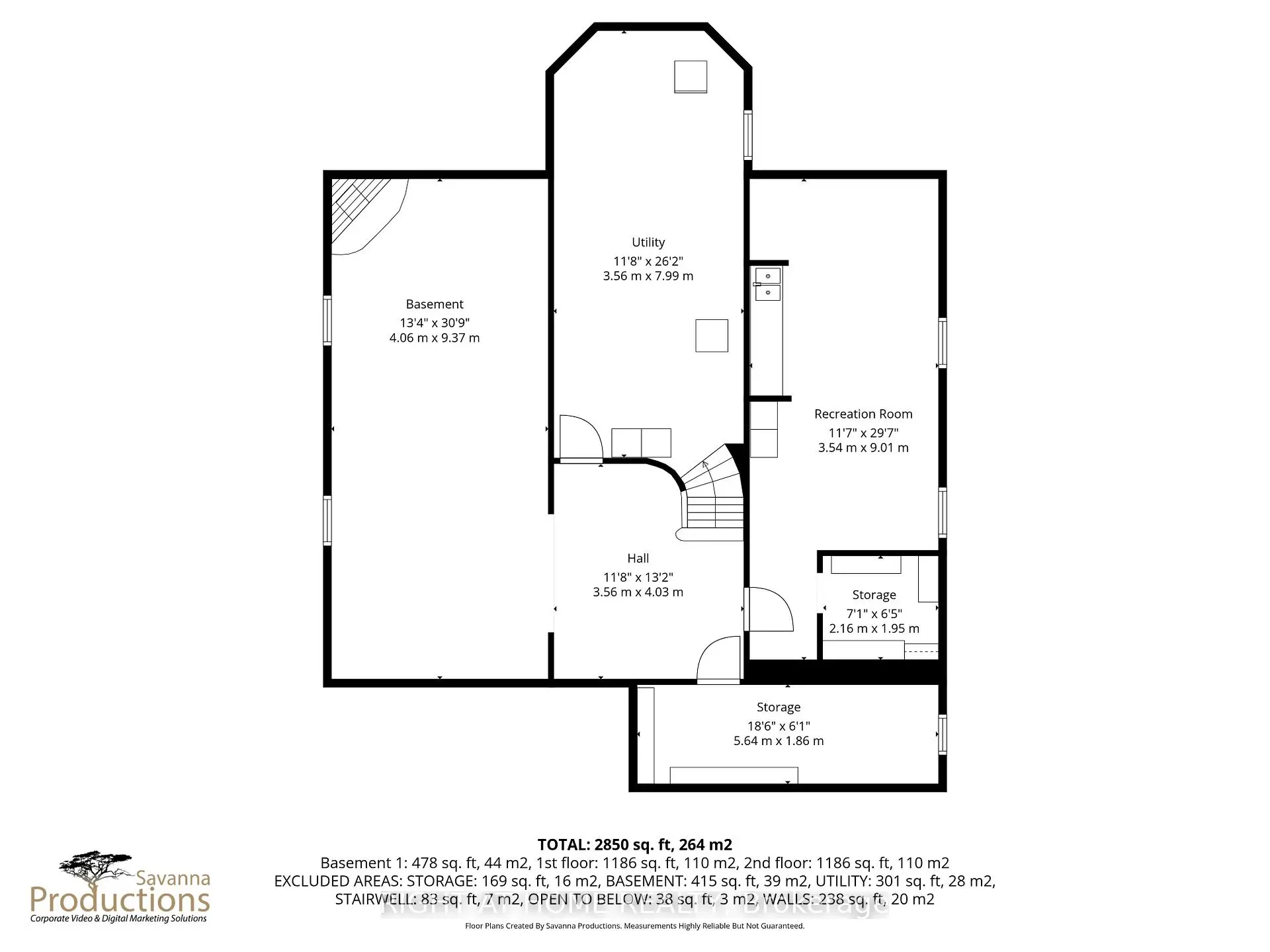
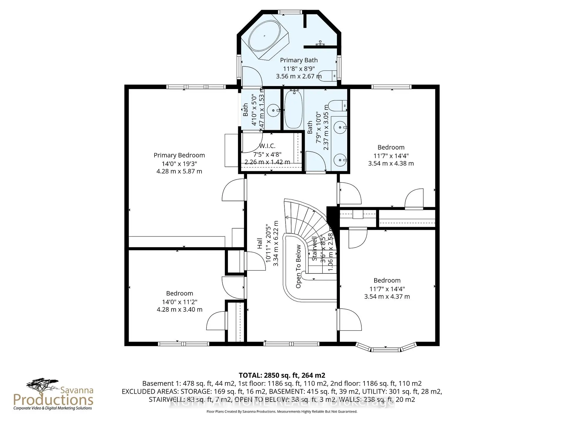
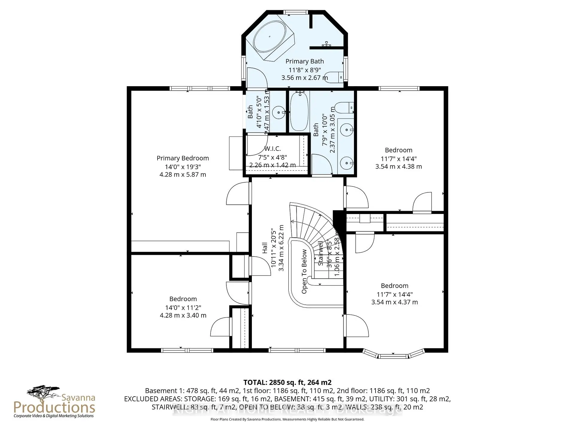
| Room | Size(M) | Description | |
|---|---|---|---|
| Living Rm | 3.54x5.21 | Vinyl Floor, Large Window |
|
| Dining Rm | 3.54x4.06 | Vinyl Floor, Large Window |
|
| Kitchen | 3.56x4.06 | Stainless Steel Appl, Family Size Kitchen |
|
| Family Rm | 4.06x5.87 | Vinyl Floor, Overlooks Backyard, Wet Bar |
|
| Breakfast | 3.56x2.77 | Large Window, Vinyl Floor |
|
| Laundry | 2.68x2.11 | Side Door |
|
| Primary B | 4.28x5.87 | Large Window, Large Closet, 4 Pc Ensuite |
|
| 2nd Br | 3.54x4.38 | Large Window |
|
| 3rd Br | 3.54x4.37 | ||
| 4th Br | 4.28x3.40 | ||
| Recreatio | 3.54x9.01 |
| Bathroom | Pieces | Level | |
|---|---|---|---|
| 1xBath | 2 pcs | Main |
|
| 2xBaths | 4 pcs | Second |
Property Summary
Located close to the intersection of Bayview and Major Mackenzie, 10 Lawson Crt is a 4+1 bedrooms 3 washrooms Detached. The unit has a Double Attached Parking Spaces. The property basement is Partially Fi . The property has many nice features including Carpet Free, Central Vacuum and Auto Garage Door Remot. Living Room Rm, Dinning Room Rm, Kitchen, Family Room Rm, Breakfast Room and Laundry are on the Main floor.School Information
Elementary Schools
-
Home schoolRank: 2751 out of 3022 (Score: 3.4)Distance to school: 0.8 km (~15 min walk)
-
French Immersion school
Rank: 1300 out of 3022 (Score: 6.4)Distance to school: 2.5 km (~7 min drive) -
French Immersion school
Distance to school: 2.3 km (~7 min drive) -
Catholic French Immersion school
Rank: 150 out of 3022 (Score: 8.6)Distance to school: 2.1 km (~6 min drive) -
Catholic Gifted program school
Rank: 1 out of 3022 (Score: 10.0)Distance to school: 2.9 km (~9 min drive) Secondary Schools
-
Home schoolRank: 9/746 (Score: 9.4) 5 year average: 8/746 (Score: 8.9)Distance to school: 1.1 km (~19 min walk)
-
French Immersion school
Rank: 422/746 (Score: 5.8) 5 year average: 222/746 (Score: 6.8)Distance to school: 3.8 km (~11 min drive) -
French Immersion school
Rank: 20/746 (Score: 9.0) 5 year average: 50/746 (Score: 8.0)Distance to school: 4.5 km (~14 min drive) -
AP program school
Rank: 67/746 (Score: 8.2) 5 year average: 109/746 (Score: 7.5)Distance to school: 2.5 km (~7 min drive) -
Home school IB Program
Rank: 9/746 (Score: 9.4) 5 year average: 8/746 (Score: 8.9)Distance to school: 1.1 km (~19 min walk) -
Catholic Home school
Rank: 89/746 (Score: 8.0) 5 year average: 135/746 (Score: 7.3)Distance to school: 2.0 km (~6 min drive) -
Catholic AP program school
Rank: 89/746 (Score: 8.0) 5 year average: 135/746 (Score: 7.3)Distance to school: 2.0 km (~6 min drive) -
Catholic Gifted program school
Rank: 1729/746 (Score: 5.8)Distance to school: 4.7 km (~14 min drive)
















































