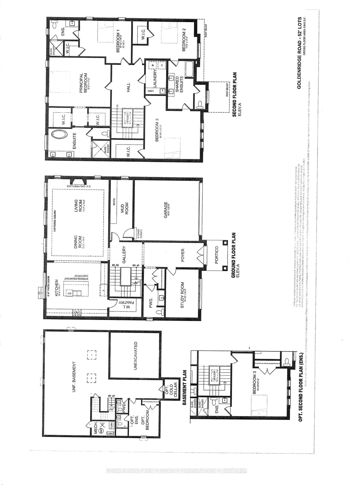
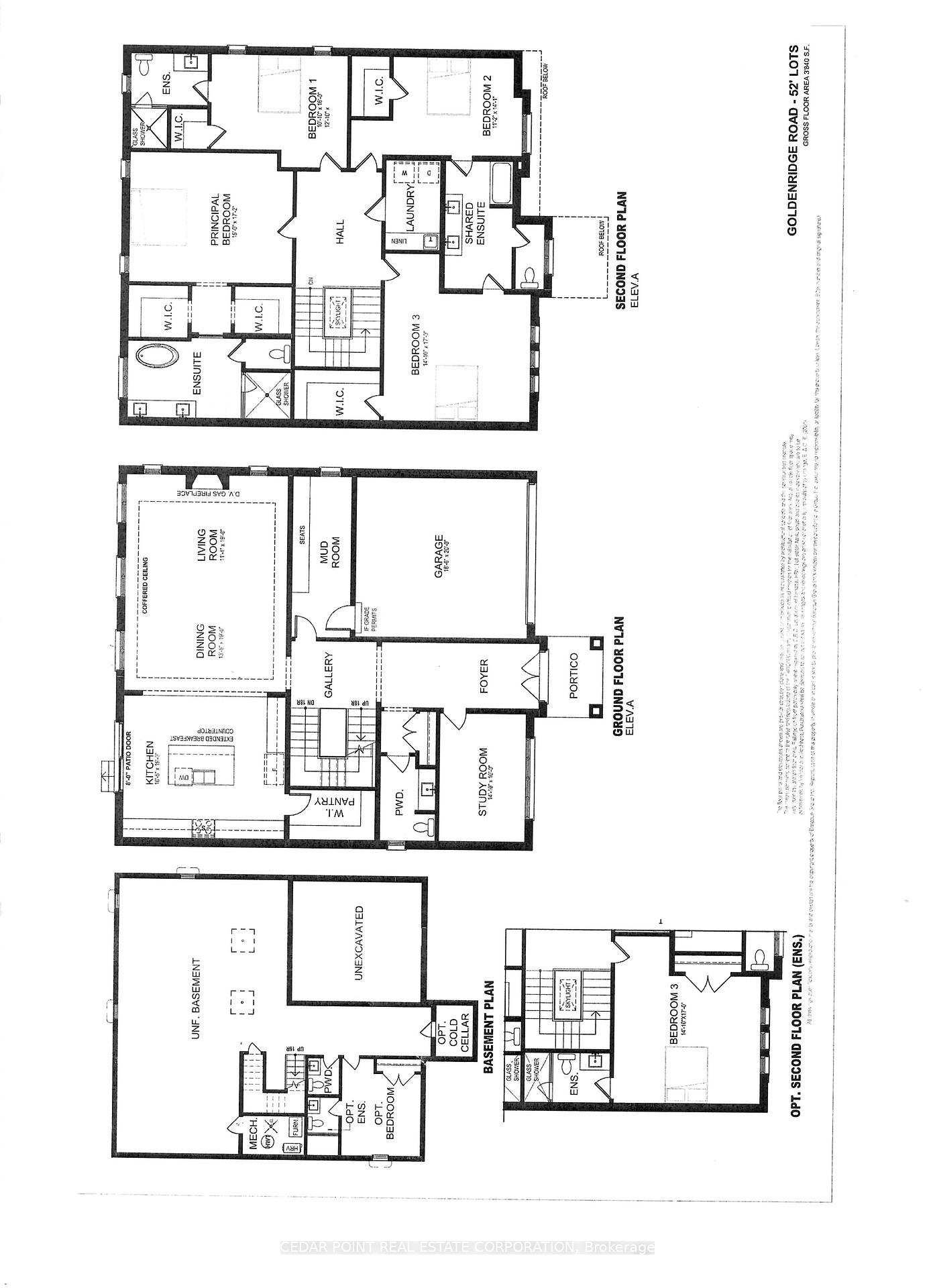
Description
Brand new luxury home to be completed by Forest Meadows Developments, a Tarion licensed builder. Located in one of Pickerings bestneighbourhoods. Beautiful 4 bedroom home, all with walk in closets & ensuite bathrooms or semi ensuite bathroom. Large kitchen with hugecentre island, quartz countertops, full walkin pantry, under cabinet lighting with valance. Engineered hardwood thru out (except tiled areas), oakstaircase. 10' ceilings on main level and 9' ceilings on 2nd level. Smooth ceilings on main & 2nd level. 8' high interior doors on main level. Quartzcounters in all bathrooms, glass shower doors, potlight in showers. 30 potlights on main level (purchaser's choice of locations). Full central airconditioning, HRV, smart thermostat. Full brick & stone exterior with metal roof accents Property is lot 4 on the attached site plan. Purchaser toselect the interior finishes from Seller's included features. Picture of home and elevations are renderings only, other exterior elevations alsoavailable (see attachments). Note long closing date of summer 2026. Please see attachments for Floor Plan, Full Features & Finishes, Site Plan& Elevation Options. Taxes have not been assessed yet. Visit ForestMeadowsDevelopments.com
Features
- Facing: West

- Bedrooms: 4

- Bathrooms: 4

- Garages: 2

- Kitchens: 1

Details
- Lot size: 51.50 x 132.00 Feet

- Space: 3500-5000

- Tax: $ 0.00

- E12328333

- Listing contracted with: CEDAR POINT REAL ESTATE CORPORATION
| Room | Size(M) | Description | |
|---|---|---|---|
| Kitchen | 5.79x5.00 | Centre Island, Quartz Counter, Pantry |
|
| Dining Rm | 5.79x4.17 | Crown Moulding, Combined w/Living |
|
| Living Rm | 5.79x3.45 | Crown Moulding, Combined w/Dining, Gas Fireplace |
|
| Office | 4.52x3.05 | Hardwood Floor |
|
| Primary B | 5.23x4.57 | 5 Pc Ensuite, Walk-In Closet(s), Hardwood Floor |
|
| 2nd Br | 4.29x3.40 | Semi Ensuite, Walk-In Closet(s), Hardwood Floor |
|
| 3rd Br | 5.18x4.52 | Semi Ensuite, Walk-In Closet(s), Hardwood Floor |
|
| 4th Br | 4.88x3.30 | 3 Pc Ensuite, Walk-In Closet(s), Hardwood Floor |
| Bathroom | Pieces | Level | |
|---|---|---|---|
| 1xBath | 5 pcs | Second |
|
| 1xBath | 4 pcs | Second |
|
| 1xBath | 3 pcs | Second |
|
| 1xBath | 2 pcs | Ground |















