Description
Live, Work, and Prosper in the Heart of Markhams Sought-After Cornell Community. This Versatile Live and Work Freehold [2432 Sqft] Townhouse on Bur Oak Ave Offers Exceptional Exposure and Convenience, Surrounded by Established Amenities: Cornell Community Park, Bill Hogarth S.S., Cornell Community Centre & Library (129,000 Sqft of Recreation), Markham Stouffville Hospital, Nearby Shopping, and Quick Access to Hwy 7/407. Well-maintained 3-bedroom Home with an Open-Concept Kitchen, Center Island and SS appliances Combined with a Living Area Leading to a Spacious Walk-Out Deck. The Third Floor Primary Bedroom Features a Walk-In Closet, Private Balcony, and 4-Piece Ensuite for Privacy and a True Retreat. The Ground Floor has High 10ft Ceilings and a Flexible Design Perfect for Commercial or Residential Use. Currently Arranged as a Bright 1-Bedroom Unit with Laminate Floors, Full Kitchen, Wall-to-Wall Windows, Built-In Audio Speakers, and a 4-Piece Ensuite. Separate Laundry for Each Unit. Double Car Garage with Direct Access to Ground Floor and Driveway Parking. Recently Updated New Roof Shingles (Aug 2025) and Cared For By the Same Owners for the Past 18 Years, This is a Rare Opportunity to Own a Multi-Functional and Impeccably Maintained Live-Work Townhouse in One of York Regions Most Desirable Communities.
Features
- Facing: West

- Bedrooms: 3

- Bathrooms: 3

- Garages: 2

- Kitchens: 1

Details
- Lot size: 23.00 x 80.05 Feet

- Space: 2000-2500

- Tax: $ 5563.14

- N12718246

- Listing contracted with: RE/MAX CROSSROADS REALTY INC.
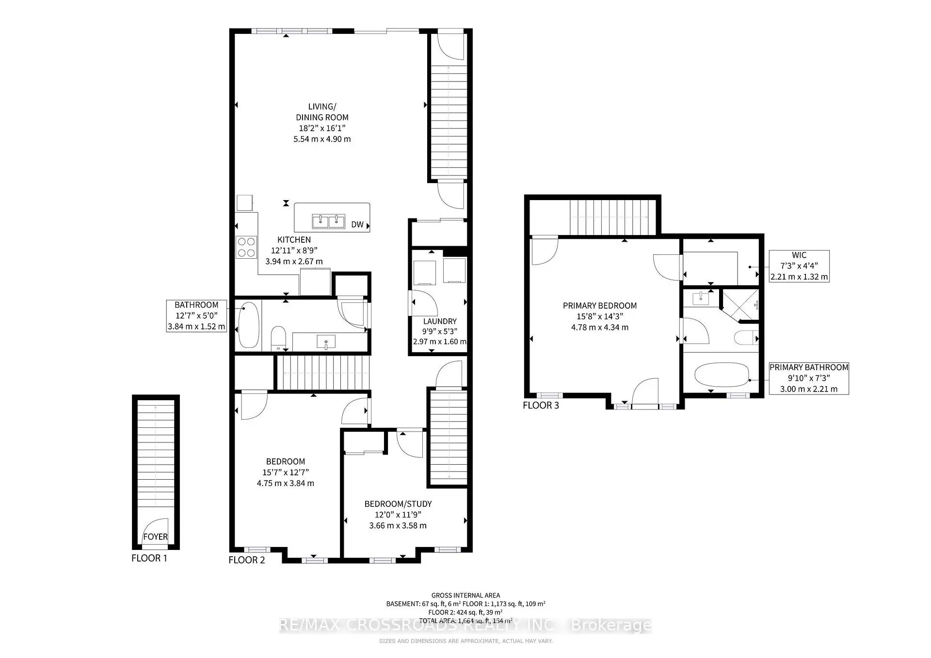
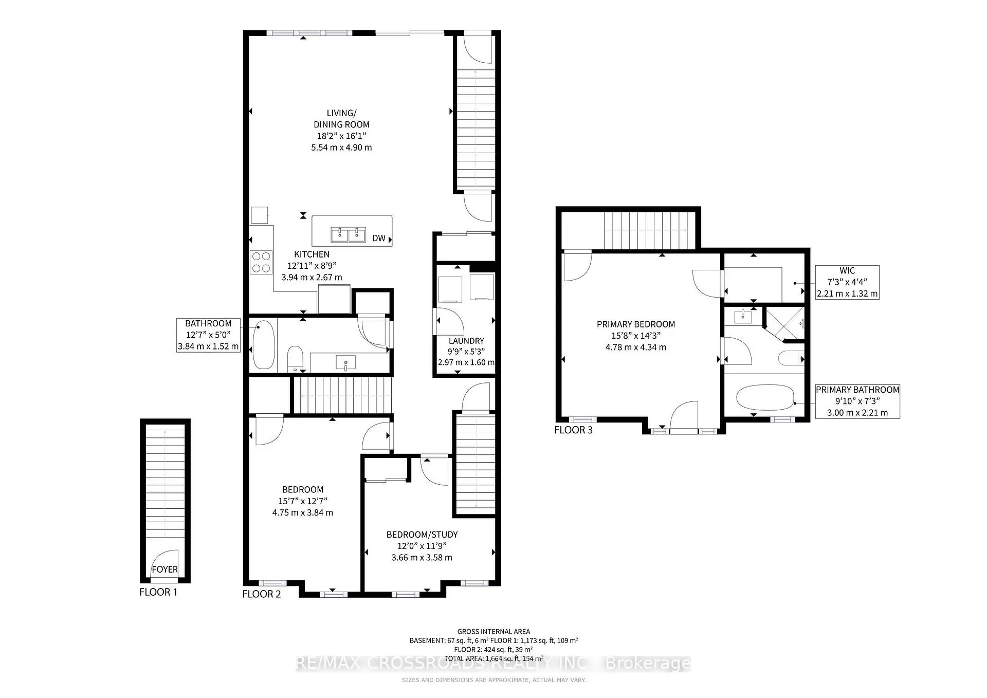
| Room | Size(M) | Description | |
|---|---|---|---|
| Living Rm | 4.09x4.79 | Laminate, Large Window, Open Concept |
|
| Dining Rm | 2.38x3.34 | Laminate, Open Concept |
|
| Kitchen | 3.04x1.71 | Ceramic Floor, B/I Shelves, W/O To Garage |
|
| Br | 3.32x2.92 | Laminate, Double Closet, 4 Pc Ensuite |
|
| Laundry | 2.34x1.57 | Separate Rm |
|
| Living Rm | 5.54x4.90 | Broadloom, Open Concept, Combined w/Dining |
|
| Dining Rm | 5.54x4.90 | Broadloom, Combined w/Living, W/O To Deck |
|
| Kitchen | 3.94x2.67 | Ceramic Floor, Stainless Steel Appl, Centre Island |
|
| 2nd Br | 3.66x3.58 | Broadloom, Large Window, Double Closet |
|
| 3rd Br | 4.75x3.84 | Broadloom, Window, Walk-In Closet(s) |
|
| Laundry | 2.97x1.60 | Ceramic Floor, B/I Shelves |
|
| Primary B | 4.78x4.34 | 4 Pc Ensuite, Walk-In Closet(s), W/O To Balcony |
| Bathroom | Pieces | Level | |
|---|---|---|---|
| 1xBath | 4 pcs | Ground |
|
| 1xBath | 4 pcs | Second |
|
| 1xBath | 4 pcs | Third |
Property Summary
Located close to the intersection of 16TH AVE and NINTH LINE, 2723 BUR OAK Ave is a 3+1 bedrooms 3 washrooms Freehold Townhouse. The unit has a Double Built-In Parking Spaces. The property has many nice features including Auto Garage Door Remot. Living Room Rm, Dinning Room Rm, Kitchen, Br and Laundry are on the Ground floor.School Information
Elementary Schools
-
Home schoolRank: 1366 out of 3022 (Score: 6.3)Distance to school: 0.6 km (~11 min walk)
-
French Immersion school
Rank: 387 out of 3022 (Score: 7.9)Distance to school: 4.3 km (~13 min drive) -
French Immersion school
Distance to school: 2.1 km (~6 min drive) -
Catholic French Immersion school
Rank: 626 out of 3022 (Score: 7.4)Distance to school: 4.1 km (~12 min drive) -
Catholic Gifted program school
Rank: 219 out of 3022 (Score: 7.0) 5 year average: 257/3022 (Score: 6.6)Distance to school: 1.9 km (~34 min walk) Secondary Schools
-
Home schoolRank: 52/746 (Score: 8.4)Distance to school: 0.4 km (~7 min walk)
-
French Immersion school
Rank: 52/746 (Score: 8.4)Distance to school: 0.4 km (~7 min walk) -
Arts program school
Rank: 24/746 (Score: 8.9) 5 year average: 9/746 (Score: 8.9)Distance to school: 9.4 km (~28 min drive) -
AP program school IB Program
Rank: 16/746 (Score: 9.1) 5 year average: 41/746 (Score: 8.2)Distance to school: 8.8 km (~26 min drive) -
Catholic Home school
Rank: 67/746 (Score: 8.2) 5 year average: 152/746 (Score: 7.3)Distance to school: 2.2 km (~7 min drive) -
Catholic AP program school
Rank: 67/746 (Score: 8.2) 5 year average: 152/746 (Score: 7.3)Distance to school: 2.2 km (~7 min drive) -
Catholic Gifted program school
Rank: 67/746 (Score: 8.2) 5 year average: 152/746 (Score: 7.3)Distance to school: 2.2 km (~7 min drive)
















































