房屋信息
这里比一个公寓还要多,这是你的下一个地方叫回家。欢迎来到木桥之心的顶楼!这个精心维护了1个寝室,1个浴室套房 1635 平方尺明亮,*功能*生活空间有令人惊叹的东-外观(俯瞰 CN 塔的自然,城市和外观)和一长长长的自然光,定位在一个安静的建筑的顶层,具有真实的社区感.享受像宾果之夜和友好的邻居一样的社交快乐让这座建筑感觉像家一样这款"温暖并邀请"的套装功能品牌"(全新FULL尺寸电器(2025/2026)(与"许多更新公寓"不同),"全新硬件"升级,"和"全新灯具(2025)"增加了"现代触摸".思绪的布局使每一寸的空间最大化,创造出一个舒适而开放的大气完美地适应日常生活。两个停车点!保留两个或租借一个帮助偏移维护费。另外,你会爱大规模存储洛K加元方便地附在您的停车空间-大到足以感觉像你自己的私人酒吧,提供惊人的存储能力。维护费包括除水电、电缆和互联网以外的所有公用事业--使预算编制简单而无压力。不可战胜的价格在一个惊人的地方!靠近大公路杂货店学校中转以及所有便利对收买者或第一时间购买者来说,希望与家人保持密切联系,享受欢迎的社区环境。
主要特征
- 朝向: 东

- 睡房: 1

- 洗手间: 1

- 车库: 2

- 厨房: 1

重要信息
- 空间: 600-699

- 房龄: 11-15
- 管理费: $ 727.67

- 地税: $ 2366.58

- N12802452

- Listing contracted with: RE/MAX EXPERTS
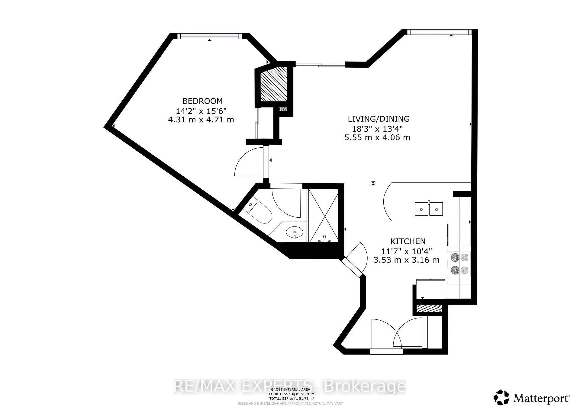
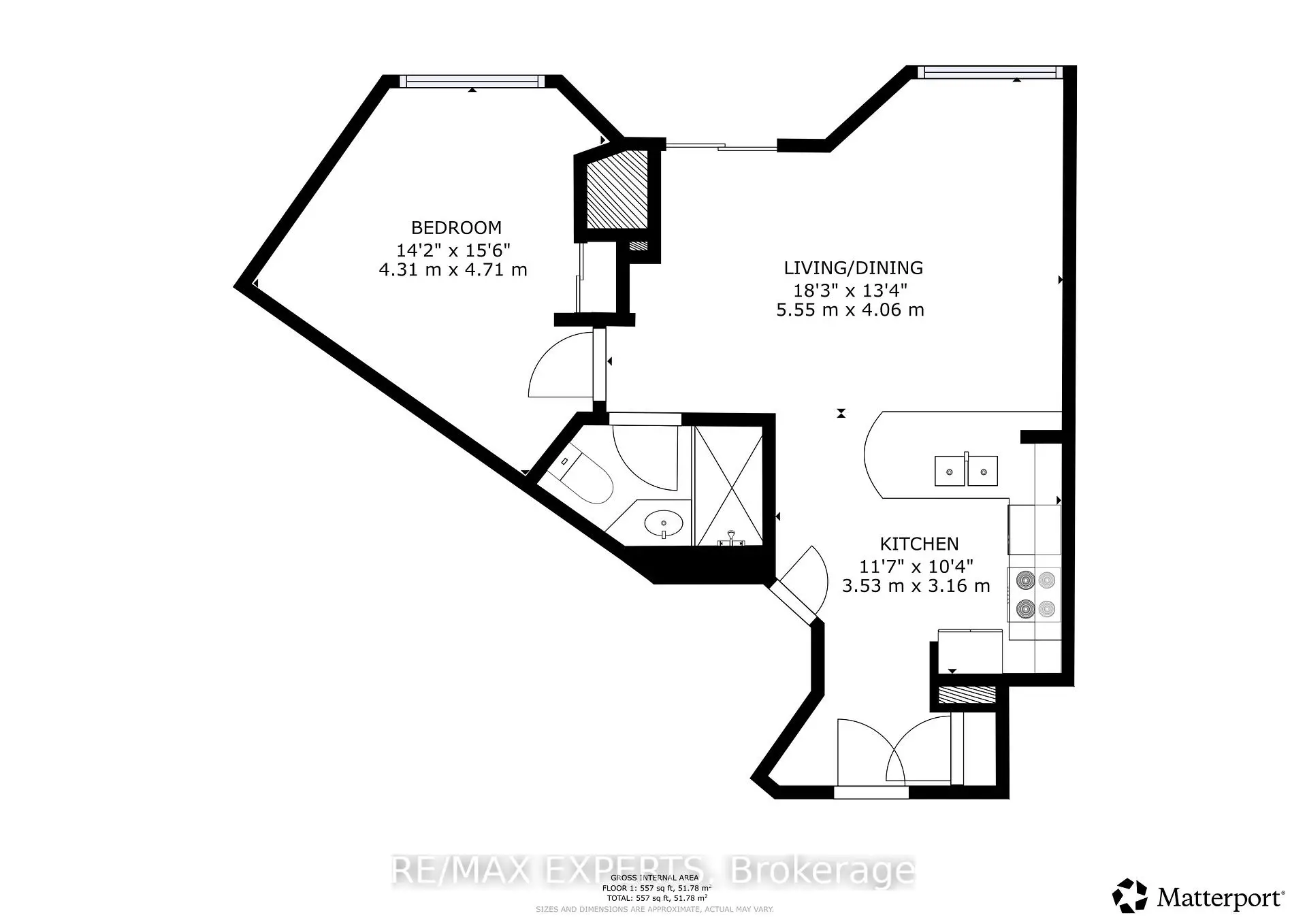
| 房间 | 尺寸(平方米) | 细节描述 | |
|---|---|---|---|
| 厨房 | 3.53x3.16 | 不锈钢电器, , |
|
| 家庭房 Rm | 5.55x4.06 | 复合地板, 大窗, 合并餐饮 |
|
| 晚餐室 Rm | 5.55x4.06 | 复合地板, 走出式阳台, 合并家庭房 |
|
| Primary B | 4.31x4.71 | 壁橱, 复合地板, 窗户 |
| 卫生间 | 卫浴件数 | 所在楼层 | |
|---|---|---|---|
| 1间 | 3件套 | 主层 |
房屋简介
房屋位于Kipling and Highway 7交界附近, 这间1房1卫双车库Condo Apt户型朝东向. #1207-7730 Kipling Ave拥有双停车位并带有一个室内储藏空间. 房屋及周边设施包括CarpetFree等. 厨房, 家庭房 Rm, 晚餐室 Rm和 Primary B在主层.Volare Condos
7730 Kipling Ave是由房地产建筑商Trimax Developments开发的, 物业年龄13年左右。该公寓大楼大约有12层118个单元。Volare Condos的设施包括用:访客停车位,前台服务,宾客套房,屋顶花园和桑拿房。每月物业管理费727.67加元包括用暖气,水和空调. 目前7730 Kipling Ave大约有0间公寓在售1间在出租。学校信息
小学
-
-
法语沉浸课程学校
在 3022学校里排名 626 (分数: 7.4)距离学校5.2公里 (开车大约16分钟) -
-
-
天主教天才项目学校
在 3022学校里排名 299 (分数: 8.1)距离学校4.8公里 (开车大约14分钟) 中学
-
对口学区学校排名: 219/746 (分数: 7.0) 5年平均分: 257/746 (分数: 6.6)距离学校1.2公里 (走路大约22分钟)
-
法语沉浸课程学校
排名: 219/746 (分数: 7.0) 5年平均分: 257/746 (分数: 6.6)距离学校1.2公里 (走路大约22分钟) -
艺术特色学校
排名: 100/746 (分数: 7.9) 5年平均分: 60/746 (分数: 7.9)距离学校12.4公里 (开车大约37分钟) -
对口学区学校 IB课程
排名: 89/746 (分数: 8.0) 5年平均分: 109/746 (分数: 7.5)距离学校8.7公里 (开车大约26分钟) -
天主教对口学区学校
排名: 112/746 (分数: 7.8) 5年平均分: 35/746 (分数: 8.2)距离学校1.2公里 (走路大约21分钟) -
天主教AP课程学校
排名: 205/746 (分数: 7.1) 5年平均分: 228/746 (分数: 6.8)距离学校3.5公里 (开车大约10分钟) -
天主教天才项目学校
排名: 205/746 (分数: 7.1) 5年平均分: 228/746 (分数: 6.8)距离学校3.5公里 (开车大约10分钟)








































