20 Joe Shuster Way 212

主要路口South Parkdale, Toronto
$489K 出售价格

房屋信息

角落单元与完全隐私与相貌林波特体育场的景色,与方便零售在地上,与新朗戈的,加拿大轮胎,赢家在相邻的角落。公交街车在你的门口。配有健身设备的大楼,图书馆,会议室,客服,露台露台等等

主要特征

  • 朝向: 南
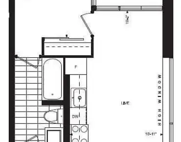
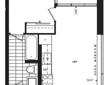
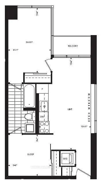
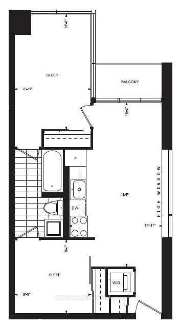
  • 睡房: 2
  • 洗手间: 1
  • 车库:
  • 厨房: 1

重要信息

  • 空间: 600-699
  • 管理费: $ 543.55
  • 地税: $ 2134.07
  • W12959498
  • Listing contracted with: Arolin Realty Inc.
卫生间 卫浴件数 所在楼层
1间4件套

主层



房屋简介

房屋位于King West and Joe Shuster Way交界附近, 这间2房1卫车库Condo Apt户型朝南向. #212-20 Joe Shuster Way带有一个储藏空间. 房屋及周边设施包括CarpetFree等. .

Fuzion

20 Joe Shuster Way是由房地产建筑商Urban Group开发的, 物业年龄13年左右。该公寓大楼大约有14层245个单元。Fuzion的设施包括用:前台服务,室内游泳池,访客停车位,会客厅,屋顶花园和宾客套房。每月物业管理费543.55加元包括用暖气,水和空调. 目前20 Joe Shuster Way大约有4间公寓在售5间在出租。


学校信息

  • 小学

  • Level
    对口学区学校
    在 3022学校里排名 1165 (分数: 6.6)
    距离学校0.8公里 (走路大约15分钟)
  • Level
    HOLY FAMILY (年级: JK - 8)
    天主教学校法语沉浸课程 天主教法语沉浸课程学校
    在 3022学校里排名 2878 (分数: 2.7)
    距离学校0.9公里 (走路大约16分钟)
  • Level
    HOLY ROSARY (年级: JK - 8)
    天主教学校法语沉浸课程 天主教法语沉浸课程学校
    在 3022学校里排名 42 (分数: 9.5)
    距离学校5.0公里 (开车大约15分钟)
  • Level
    ST VINCENT DE PAUL (年级: 5 - 8)
    天主教学校法语沉浸课程 天主教法语沉浸课程学校
    在 3022学校里排名 1 (分数: 10.0)
    距离学校2.1公里 (开车大约6分钟)
  • 中学

  • Level
    对口学区学校
    排名: 219/746 (分数: 7.0)   5年平均分: 340/746 (分数: 6.2)
    距离学校1.0公里 (走路大约18分钟)
  • Level
    St. Mary's (年级: 9-12)
    天主教学校IB国际课程 天主教学校 IB课程
    距离学校2.1公里 (开车大约6分钟)
  • Level
    天主教学校AP课程 天主教AP课程学校
    排名: 506/746 (分数: 5.3)   5年平均分: 516/746 (分数: 4.9)
    距离学校2.8公里 (开车大约9分钟)


通勤信息

Exhibition Go 火车站 (0.6公里)

地图位置



>