24 Permfield Path

主要路口Etobicoke West Mall, Toronto
$599.9K 出售价格

房屋信息

欢迎来到佩姆菲尔德大道24号,这是在西埃托比科K市中心拥有一个宽敞而负担得起的城市住宅的绝佳机会。提供4个卧室和1个半个浴室,这所房子对于正在成长的家庭,初买家,或者任何在今天的市场上寻找特殊价值的人来说都是理想的.主楼以功能布局为特色,有充足的空间供日常生活和娱乐用;而步行到私人后甲板则提供了放轻松,主持夏季烤肉会,或长日后松风的完美空间.附属的车库增加了日常的便利,同时增加了储存.最好的事情是你可以停在车库里直接进入你的家在楼上,你会找到四间配齐的卧室,让你灵活处理家庭,客人,甚至一个家庭办公室。由于每月的维护费为456.95加元,这种财产在不牺牲空间或舒适性的情况下提供了令人难以置信的承受能力。在60万加元以下的名单上,这是在理想的西埃托比科K社区进入市场的难得机会.靠近公园、学校、中转和主要高速公路,24 Permfield Path是价值、地点和生活方式的完美结合。请注意一些相片已数字化增强。

主要特征

  • 朝向: Ea
  • 睡房: 4
  • 洗手间: 2
  • 车库: 1
  • 厨房: 1

重要信息

  • 空间: 1200-1399
  • 管理费: $ 456.95
  • 地税: $ 2737.00
  • W12896148
  • Listing contracted with: RE/MAX PROFESSIONALS INC.
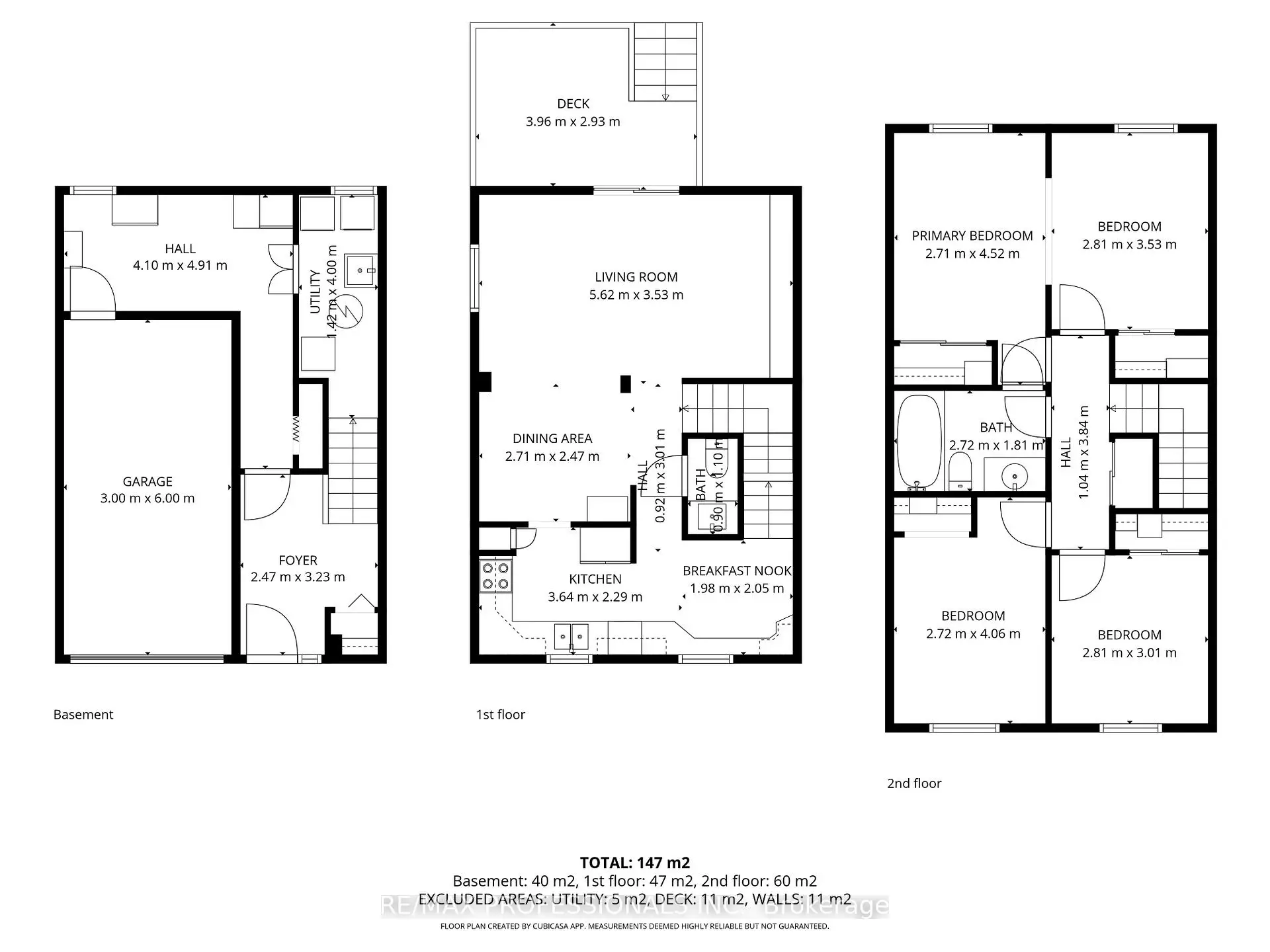
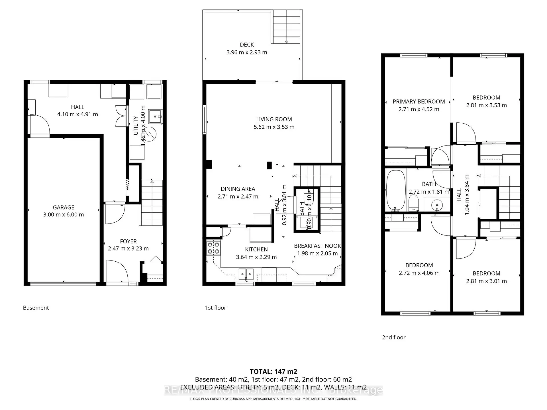
房间 尺寸(平方米) 细节描述
客厅 Rm5.62x3.53

, 走出式露台, 合并餐饮

晚餐室 Rm2.71x2.47

, 合并客厅

厨房3.64x2.29

瓷砖地板, 窗户, 早餐台

卧室2.71x4.52

复合地板, 壁橱, 窗户

第二间卧室2.81x3.53

复合地板, 壁橱, 窗户

第三间卧室2.72x4.06

复合地板, 壁橱, 窗户

第四间卧室2.81x3.01

复合地板, 壁橱, 窗户



卫生间 卫浴件数 所在楼层
1间4件套

上层

1间2件套

主层



房屋简介

房屋位于怡陶碧谷The West Mall and Holiday Dr交界附近, 这间4房2卫单车库两层共管镇屋户型朝Ea向. 24 Permfield Path拥有单连接式停车位. 地下室Partial Base . 房屋及周边设施包括None等. 客厅 Rm, 晚餐室 Rm和 厨房在主层.

通勤信息

Kipling Go 火车站 (2.8公里)

地图位置



>