房屋信息
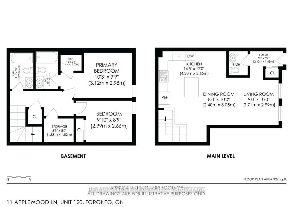
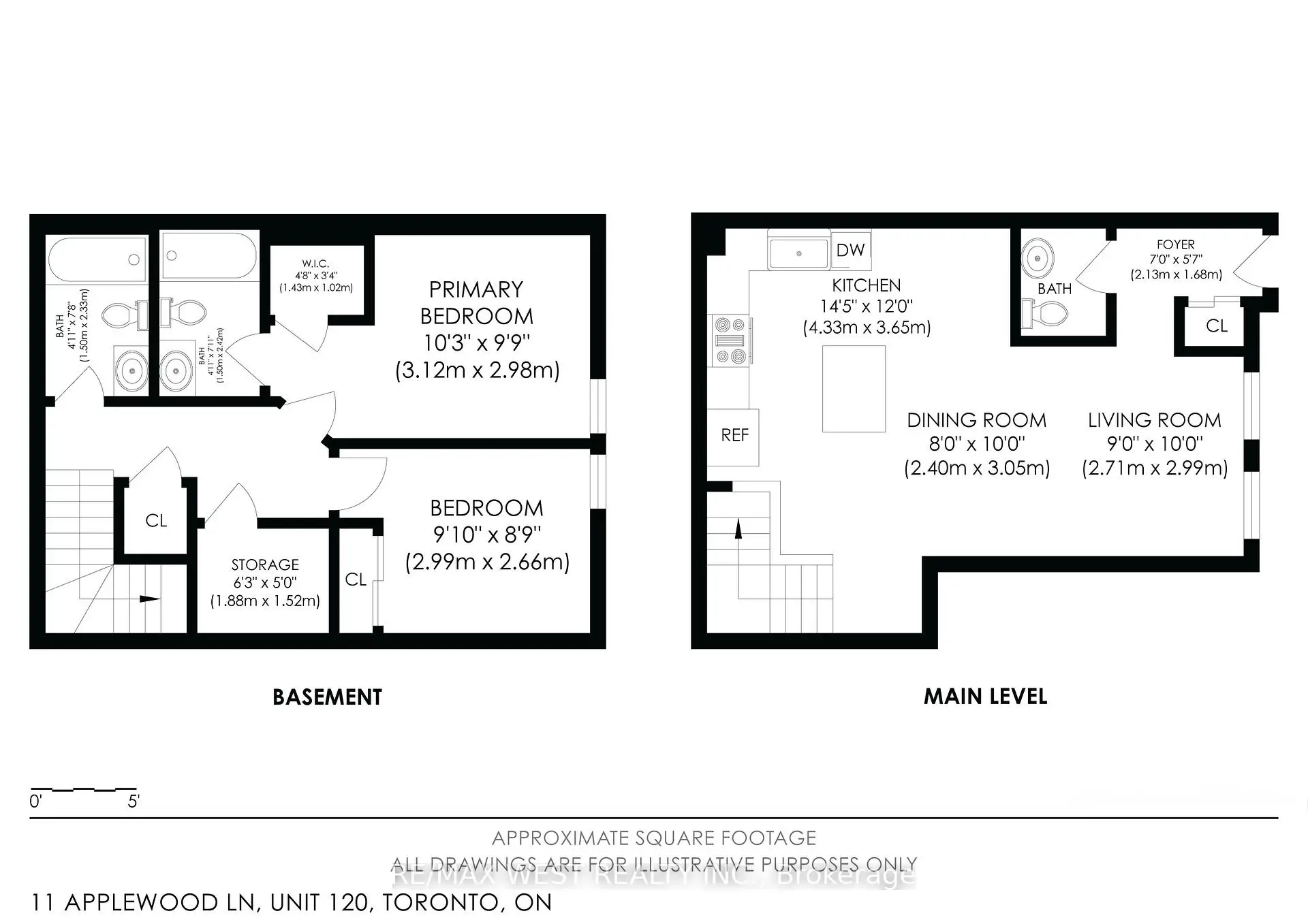
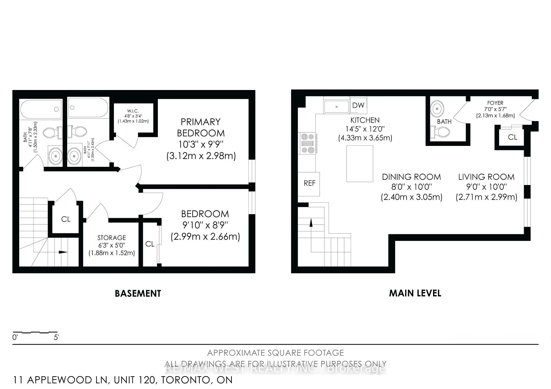
体验现代生活在11 电器ewood通道#120 -一个美丽的翻新 1071 sq ft 镇家每一个细节都经过了深思熟虑的升级!提供两间宽敞的卧室,两间完整的浴室,以及一个方便的粉房,这所住宅融合了风格,舒适和功能.随着近年获得许可的承包商完成约2万元的高质量改进,它真正可以移动了.刷新了墙壁、天花板、门和窗框,创造了一种明亮的、当代的氛围,而新的豪华地皮则在整个过程中无缝地流动。厨房有一个清新的岛和新的框架连接楼层和阁楼享受20个新安装的嵌入式天花灯、更新的底板、门外壳、电源外壳、翻新的楼梯、以及升级的门和手柄--已经考虑了每个细节。这个家完全位于怡陶碧谷,提供无与伦比的便利,与sherway购物中心购物中心,IKEa怡陶碧谷,Costco,以及像Joey sherway和空调tus俱乐部Café这样的顶级餐厅相隔几分钟.通勤是一条微风,有427号高速公路,加德纳高速公路,皮尔逊机场都很容易到达,再加上可以进入附近的公交.在公园、学校和设施周围,这个时髦的小镇住宅在多伦多联系最紧密的社区之一提供现代优雅!
主要特征
- 朝向: 西

- 睡房: 2

- 洗手间: 3

- 车库: 1

- 厨房: 1

重要信息
- 空间: 1000-1199

- 管理费: $ 323.84

- 地税: $ 3099.29

- W12670216

- Listing contracted with: RE/MAX WEST REALTY INC.
| 卫生间 | 卫浴件数 | 所在楼层 | |
|---|---|---|---|
| 1间 | 2件套 | 主层 |
|
| 2间 | 4件套 | 低层 |
房屋简介
房屋位于怡陶碧谷The West Mall & Holiday Dr交界附近, 这间2房3卫单车库两层共管镇屋户型朝西向. #120-11 Applewood Ln拥有单停车位并带有一个室内储藏空间. 房屋及周边设施包括WaterHeater,Storage,CarpetFree和AutoGarageDoorRemot等. .学校信息
- Broadacres Junior School (年级: JK-5)
- Bloordale 公立初中 (年级: 6-8)
- Martingrove 公立高中 (年级: 9-12) 281/739
- Silverthorn 公立高中 (年级: 9-12) 495/739
- Josyf Cardinal Slipyj 天主教学校 (年级: JK-8) 392/3037
- Nativity of Our Lord 天主教学校 (年级: JK-8) 267/3037
- Briarcrest Junior School (年级: JK-5)
- Broadacres Junior School (年级: JK-5)
































