房屋信息
一等一等的生活:这个升级了的2个床,2个浴室套房的特色是罕见的270平方公分. ft.私人露台-独有的由大楼的2个单元提供。享受套间洗衣房,定制的内置存储器,以及改造的豪华新后期和全吨升级.宽敞的房间规模,明亮的露天生活,以及出色的建筑管理,坚固的后备力量致力于长期维护.享受包罗万象的维护费的稳定.室内池桑拿健身房修缮党政室,更新"会道".步入公交,购物,咖啡馆,杂货店,艾伦Rd,方便地进入多伦多中城.以自信显示。 span >
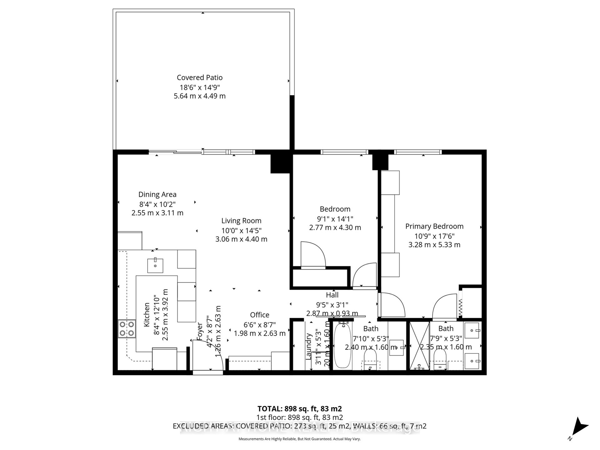
主要特征
- 朝向: 东南

- 睡房: 2

- 洗手间: 2

- 车库: 1

- 厨房: 1

重要信息
- 空间: 1000-1199

- 管理费: $ 862.00

- 地税: $ 2020.95

- W12589660

- Listing contracted with: RIGHT AT HOME REALTY
| 房间 | 尺寸(平方米) | 细节描述 | |
|---|---|---|---|
| 厨房 | 2.55x392.00 | ||
| 门厅 | 1.26x2.63 | ||
| 晚餐室 Rm | 2.55x3.11 | ||
| 客厅 Rm | 3.06x4.40 | ||
| 办公室 | 1.98x2.63 | , |
|
| 洗衣房 | 0.20x1.60 | 合并洗衣房 |
|
| Bath | 2.40x1.60 | 4 件套卫生间, 石英台面 |
|
| 卧室 | 2.77x14.10 | ||
| Primary B | 3.28x5.33 | , 3pcs卫生间套间, 智能衣橱 |
| 卫生间 | 卫浴件数 | 所在楼层 | |
|---|---|---|---|
| 1间 | 4件套 | 主层 |
|
| 1间 | 3件套 | 主层 |














































