房屋信息
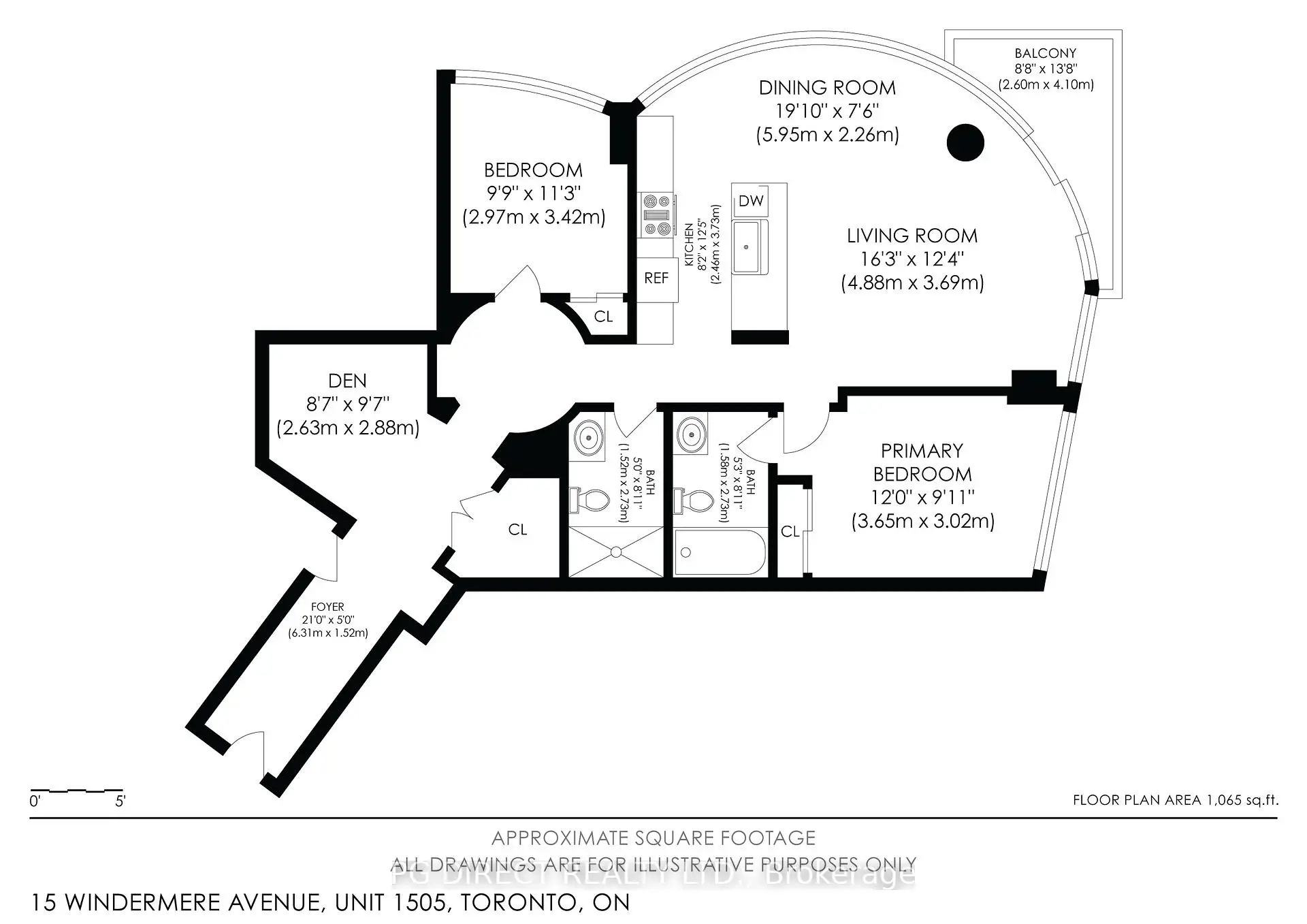
访问真实的TOR网站获取更多信息.欢迎来到15个温德米尔大街,城市的便利满足了湖边的平静。这个精美完成的2个卧室+地穴套房提供了一个智能的,功能性的布局,可以使每平方英尺的面积最大化.开放式概念生活和餐饮区是明亮而受邀的,有地上至上层的窗户,可以框起静湖和城市景色.现代厨房的特色是精密的柜子、不锈钢电器以及一个适合娱乐或放松日常生活的岛屿。宽敞的主卧室包括了充足的衣柜空间和一个私人后继器,而多能的穴室则提供了完美的家用办公室或宾馆.享受停车和储物柜的舒适度,增加方便。你从安大略湖滨水道马丁·古德曼道高地公园快速进入多伦多市中心通过加德纳快道或公交在附近,你会找到迷人的咖啡馆,商店,和充满活力的布洛尔西村只要几分钟。体验与自然相接的最好城市生活- 15 Winder仅仅的完美家。
主要特征
- 朝向: 东

- 睡房: 2+1

- 洗手间: 2

- 车库: 1

- 厨房: 1

重要信息
- 空间: 1000-1199

- 管理费: $ 1222.88

- 地税: $ 3664.86

- W12509086

- Listing contracted with: PG DIRECT REALTY LTD.
| 房间 | 尺寸(平方米) | 细节描述 | |
|---|---|---|---|
| 门厅 | 6.31x1.52 | ||
| 书房 | 2.63x2.88 | ||
| Primary B | 3.65x3.02 | ||
| 第二间卧室 | 2.97x3.42 | ||
| 晚餐室 Rm | 5.95x2.26 | ||
| 厨房 | 2.46x3.73 | ||
| 客厅 Rm | 4.80x3.69 |
| 卫生间 | 卫浴件数 | 所在楼层 | |
|---|---|---|---|
| 2间 | 4件套 | 主层 |

























