房屋信息
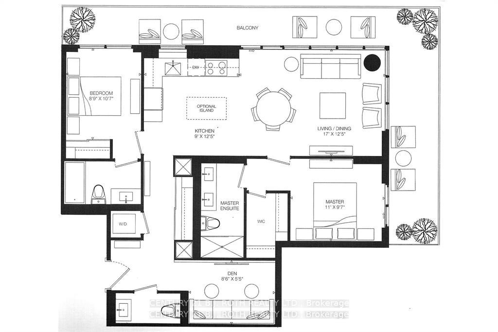
一个惊人的,2+1 睡房角单元。你得到的奢侈和舒适总共1383平方英尺。包括一个巨大的圆形阳台 326 sq.ft.,外观壮观无阻汉伯河,公园,高尔夫球场,行走小道,多伦多天际线。平面至天花板的窗户,平滑的9'天花板和开放的概念设计使得房间宽敞而明亮.高端完成,花岗岩柜台,Miele /电器,卫生间有瓷砖.初级卧室可以私下进入大阳台,有走入的衣柜和4分/秒接地.功能分化的卧室设计,每个卧室都有自己的完整的浴室.一个大而孤立的地穴可以充当家用办公室,或者用于任何其他目的.其可直接入住客用粉房,亦可作第三卧室.位于金斯威附近步行去地铁,布洛尔西村,会口,商店,餐馆,以及顶级学校.去多伦多市区的短道速滑15分钟车程.大礼堂:最先进的健身中心,七楼的活动空间,有烧烤台,屋顶休息室和户外餐厅.保证地下游客停车有很多空间 24/7门厅。
主要特征
- 朝向: 东北

- 睡房: 2+1

- 洗手间: 3

- 车库: 1

- 厨房: 1

重要信息
- 空间: 1200-1399

- 房龄: 0-5
- 管理费: $ 771.78

- 地税: $ 4198.75

- W12428616

- Listing contracted with: CENTURY 21 B.J. ROTH REALTY LTD.
| 房间 | 尺寸(平方米) | 细节描述 | |
|---|---|---|---|
| 厨房 | 3.78x2.74 | 复合地板, , 不锈钢电器 |
|
| 客厅 Rm | 5.18x3.78 | 复合地板, 合并餐饮, 走出式阳台 |
|
| 晚餐室 Rm | 5.18x3.78 | 复合地板, 东向, 走出式阳台 |
|
| Primary B | 3.35x2.92 | , 4pcs卫生间套间, 走出式阳台 |
|
| 第二间卧室 | 3.22x2.67 | 复合地板, 4pcs卫生间套间, 壁橱 |
|
| 书房 | 2.59x1.65 | 复合地板, 2 件套卫生间, 独立房间 |
| 卫生间 | 卫浴件数 | 所在楼层 | |
|---|---|---|---|
| 1间 | 2件套 | 主层 |
|
| 1间 | 4件套 | 主层 |
|
| 1间 | 3件套 | 主层 |
房屋简介
房屋位于怡陶碧谷Royal York and Dundas交界附近, 这间2房3卫单车库Condo Apt户型朝东北向. #1603-20 Brin Dr拥有单停车位并带有一个室内储藏空间. 房屋及周边设施包括Storage,GuestAccommodations和CarpetFree等. 厨房, 客厅 Rm, 晚餐室 Rm, Primary B, 第二间卧室和 书房在一层.Kingsway By The River
20 Brin Dr是由房地产建筑商Urban Capital开发的, 物业年龄4年左右。该公寓大楼大约有21层282个单元。Kingsway By The River的设施包括用:前台服务,健身房,会客厅和访客停车位。目前20 Brin Dr大约有5间公寓在售3间在出租。学校信息
- Lambton-Kingsway Junior 公立初中 (年级: JK-8) 70/3037
- Etobicoke 公立高中 (年级: 9-12) 330/739
- Josyf Cardinal Slipyj 天主教学校 (年级: JK-8) 392/3037
- Our Lady of Sorrows 天主教学校 (年级: JK-8) 301/3037
- Rosethorn Junior School (年级: JK-5)
- Briarcrest Junior School (年级: JK-5)

















































