房屋信息
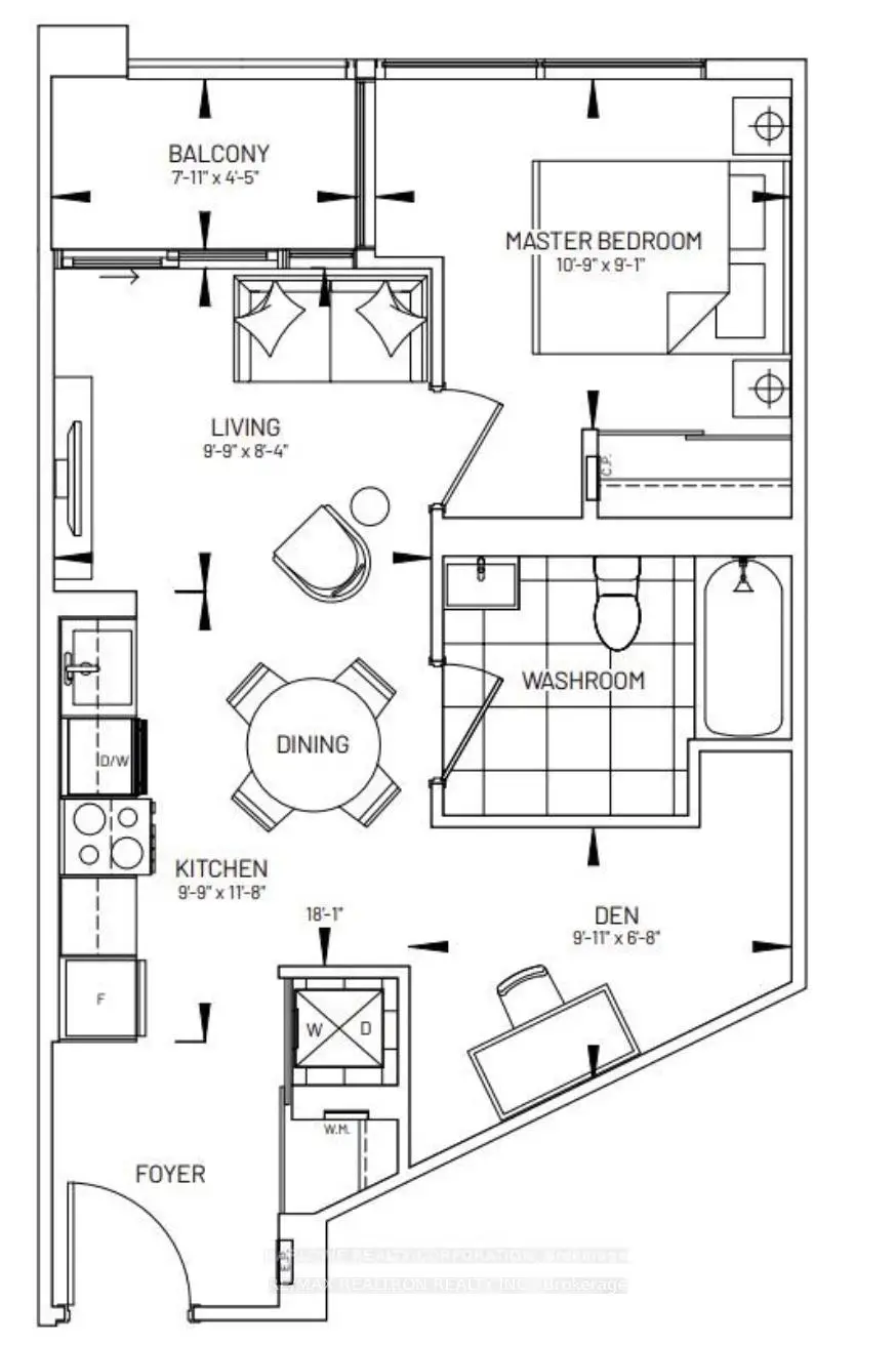
Beautiful modern finishings fantastic generous open layout 1+1 Bdrm (Den) + 192 sq.ft. Terrace E/N/W exposure CN Tower view + 2 Full Bathrooms (Rare). Includes 1 Car Parking + 1 Locker! Great Building Amenities: Concierge, Guest Suite, Fitness Center, Meeting Room, Party Room, Rooftop Terrace w/BBQ Dining Area, Kid's Play Area, Pet's Wash Station + More.
主要特征
- 朝向: 东北

- 睡房: 1+1

- 洗手间: 2

- 车库: 1

- 厨房: 1

重要信息
- 空间: 800-899

- 房龄: New
- 管理费: $ 654.14

- 地税: $ 3831.00

- E12971538

- Listing contracted with: RE/MAX REALTRON REALTY INC.
| 房间 | 尺寸(平方米) | 细节描述 | |
|---|---|---|---|
| 客厅 Rm | 3.00x2.90 | 走出式露台, 玻璃门, 复合地板 |
|
| 晚餐室 Rm | 3.00x2.90 | 走出式露台, 玻璃门, 复合地板 |
|
| 厨房 | 3.83x3.40 | 即吃式厨房, 开放式概念, 合并客厅 |
|
| Primary B | 3.60x2.70 | 3pcs卫生间套间, 复合地板, 镜面衣橱 |
|
| 书房 | 2.70x2.30 | 开放式概念, , 复合地板 |
| 卫生间 | 卫浴件数 | 所在楼层 | |
|---|---|---|---|
| 1间 | 4件套 | 主层 |
|
| 1间 | 3件套 | 主层 |
房屋简介
房屋位于世佳宝社区Kingston and Warden交界附近, 这间1房2卫单车库Condo Apt户型朝东北向. #904-2 Manderley Dr拥有单停车位. 房屋及周边设施包括CarpetFree等. 客厅 Rm, 晚餐室 Rm, 厨房, Primary B和 书房在一层.学校信息
- Birch Cliff 公立小学 (年级: JK-8) 1338/3037
- Birchmount Park 公立高中 (年级: 9-12) 676/739
- Immaculate Heart of Mary 天主教学校 (年级: JK-8) 1048/3037
- Charles Gordon 公立初中 (年级: 7-8)
- Cliffside 公立小学 (年级: JK-8) 2413/3037
- Birch Cliff 公立小学 (年级: JK-8) 1338/3037

















































