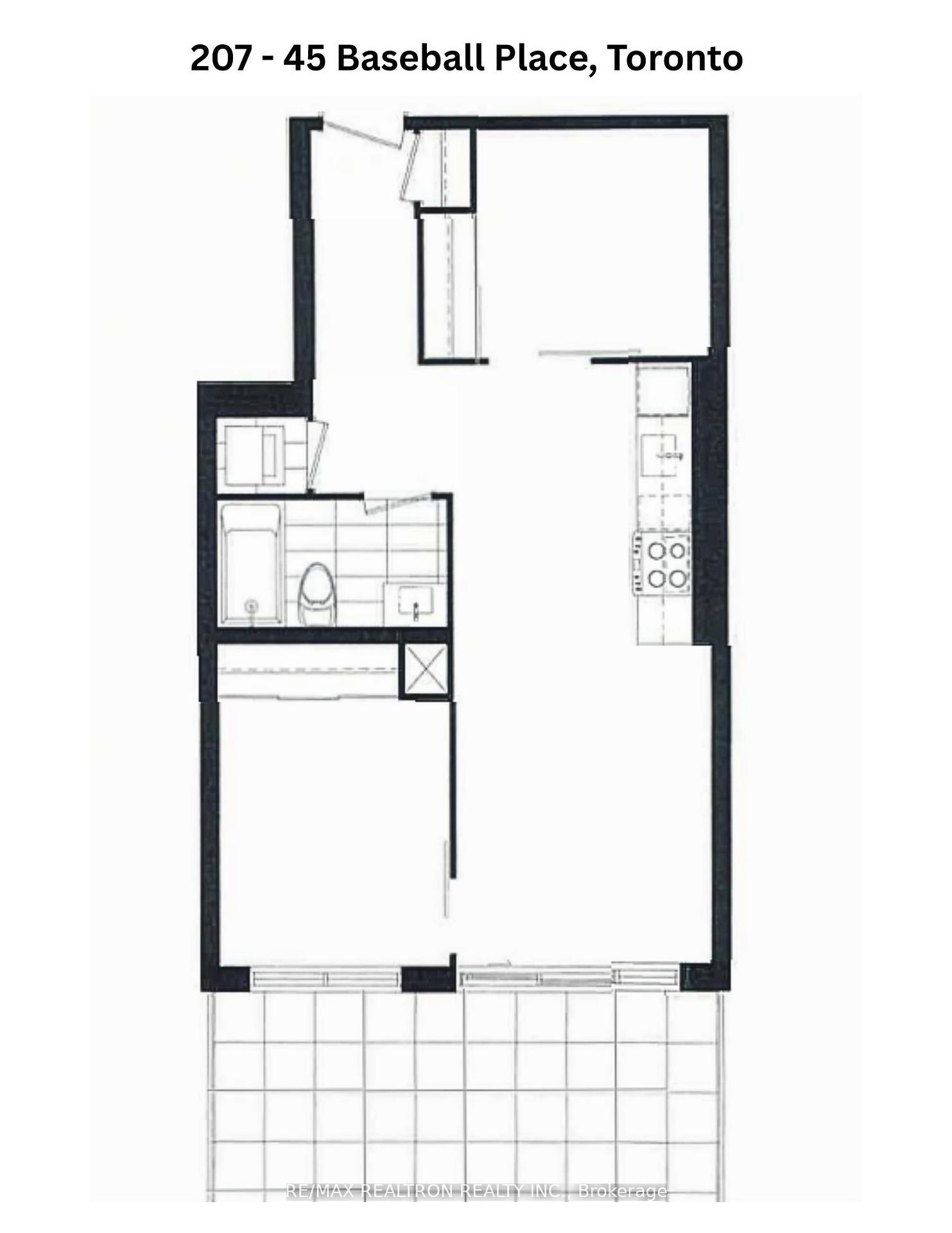
房屋信息
你从来没有见过这样的恐怖!卢K西瑞斯在河滨广场新建了华丽的单位;是多伦多市最富有追求的街区之一!.提供2个床位,1个浴室,1个停车位,新现代厨房设备齐全. 9个有奇特风格的天花板暴露出混凝土!完美的布局!完美无缺!和你的朋友和家人一起享受这个私人巨大的HaRd-TO-找独特的150英尺露台带有煤气管道;其他许多单位都不提供!.这栋楼提供一个很棒的户外游泳池,新新鲜的来宾套装,美妙的健身房,屋顶地表和这么多!走出你的新家到最热的酒吧,商店和餐馆。去任何地方与公共过渡!距离多伦多下城核心,海滩,自行车道,dVP,King/女皇东向和24小时公交线路还有几分钟.只要收拾好行李,搬入或购买作为大投资地产从第1天开始产生收入!
主要特征
- 朝向: 东

- 睡房: 2

- 洗手间: 1

- 车库: 1

- 厨房: 1

重要信息
- 空间: 5000 +

- 管理费: $ 516.42

- 地税: $ 2832.54

- E12662122

- Listing contracted with: RE/MAX REALTRON REALTY INC.
| 房间 | 尺寸(平方米) | 细节描述 | |
|---|---|---|---|
| 厨房 | 3.06x6.70 | 不锈钢电器, 合并客厅 |
|
| Primary B | 2.75x3.25 | 大衣橱, 大窗 |
|
| 第二间卧室 | 3.25x3.25 | ||
| 客厅 Rm | 3.06x6.70 | 走出式露台, 大窗, 合并厨房 |
|
| Bath | 0.00x0.00 | 4pcs卫生间套间 |
| 卫生间 | 卫浴件数 | 所在楼层 | |
|---|---|---|---|
| 1间 | 4件套 |


































