房屋信息
地点位置奢侈康多异常维护,步行到商场,公交,学校,超市购物,米利肯公园。太阳填充2个床位,2个澡堂,分出床位模式高需求,24个Hour安保,室内游泳池,桑拿,健身房,Ping Pong,网球,派对室.
主要特征
- 朝向: 东北

- 睡房: 2

- 洗手间: 2

- 车库: 1

- 厨房: 1

重要信息
- 空间: 1000-1199

- 管理费: $ 554.25

- 地税: $ 1725.65

- E12438751

- Listing contracted with: ROYAL LEPAGE SIGNATURE REALTY
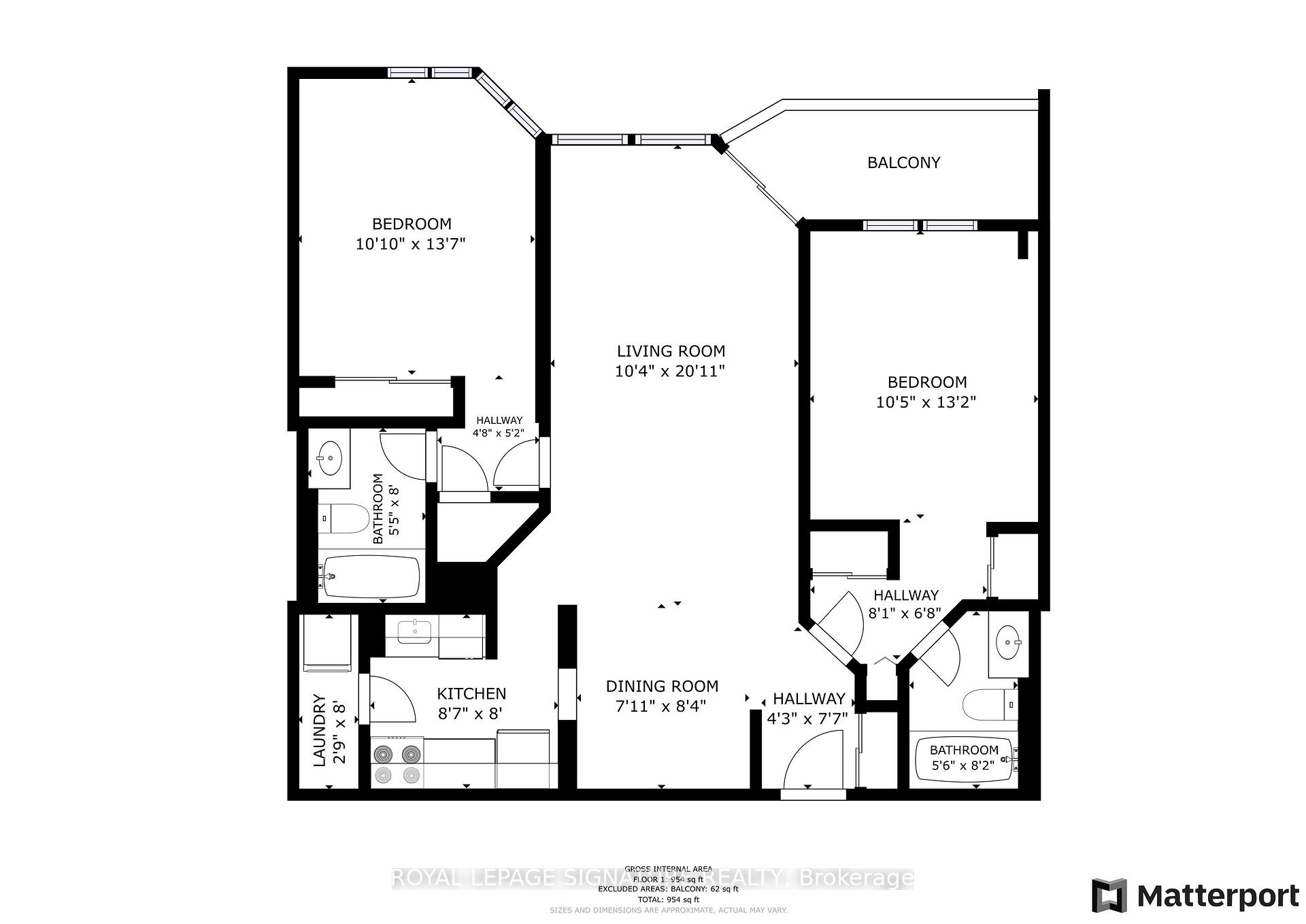
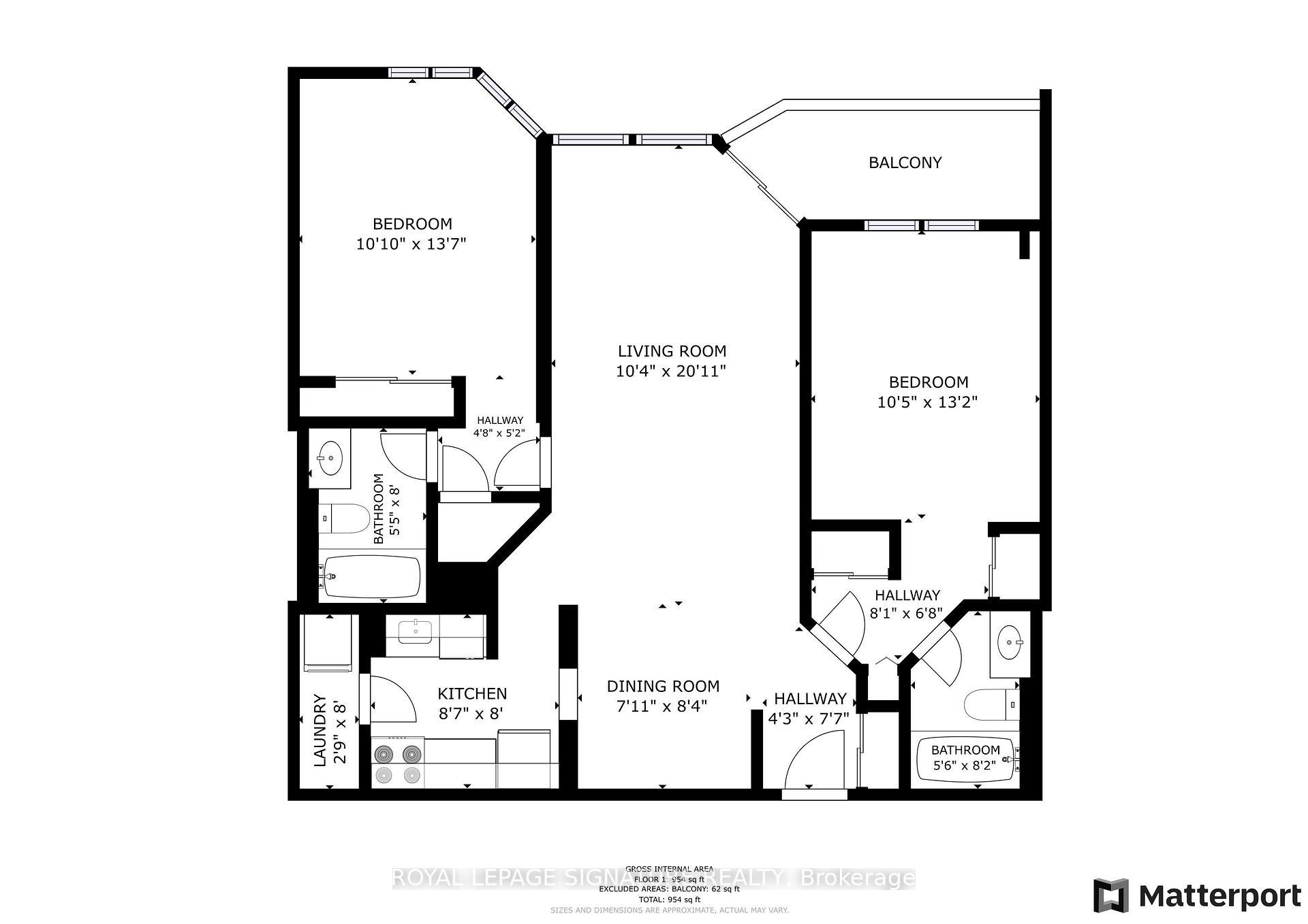
| 房间 | 尺寸(平方米) | 细节描述 | |
|---|---|---|---|
| 客厅 Rm | 6.50x3.50 | 复合地板, 走出式阳台, 风景窗 |
|
| 晚餐室 Rm | 2.56x2.24 | 复合地板, 开放式概念, |
|
| 厨房 | 2.63x2.46 | 乙烯塑胶地板, |
|
| Primary B | 4.19x3.29 | 复合地板, 4pcs卫生间套间, 窗户 |
|
| 第二间卧室 | 4.08x3.23 | 复合地板, 4pcs卫生间套间, 窗户 |
| 卫生间 | 卫浴件数 | 所在楼层 | |
|---|---|---|---|
| 1间 | 4件套 | 主层 |
|
| 1间 | 4件套 | 主层 |





































