5 Vivian Rd

主要路口Cliffcrest, Toronto
$599.99K 出售价格

房屋信息

步入这个品牌新,永不活入,2睡房和 2-洗手间镇屋与难以置信的11'Ceels!位于Cliffcrest的圣克莱尔和中地社区。升级的吨位包括"嵌入式天花灯","石英台面 aver,和更多".大型私人地平地带有天然气体连接和软管 Bib。 1 泊车位,包括和大量街道泊车。从街口直接进入完全Tarion保证。单位有生活/工作分区,为企业所有人提供灵活性。惊人的角落曝光。 5min走去GO站和下城在不时!(原始内容存档于2019-10-21)(英语).分钟可至 Bluffs,步行道,购物on st. Clair, Eglinton, Kingston Road,学校.尚未评估的税收。

主要特征

  • 朝向: 西南
  • 睡房: 2
  • 洗手间: 2
  • 车库: 1
  • 厨房: 1

重要信息

  • 空间: 700-799
  • 房龄: New
  • 管理费: $ 295.12
  • 地税: $
  • E12418816
  • Listing contracted with: BRICK + MORTAR
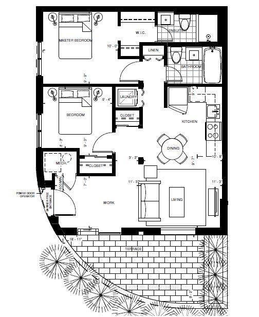
房间 尺寸(平方米) 细节描述
厨房2.84x3.25

开放式概念, 合并餐饮

客厅 Rm2.92x3.43

开放式概念, 走出式露台

办公室2.13x3.43

Primary B3.05x2.97

第二间卧室2.82x2.85



卫生间 卫浴件数 所在楼层
2间3件套

主层



房屋简介

房屋位于世佳宝社区St.Clair Ave. E. & Midland交界附近, 这间2房2卫单车库共管镇屋户型朝西南向. 5 Vivian Rd拥有单车棚停车位. 房屋及周边设施包括CarpetFree和PrimaryBedroom-Main等. 厨房, 客厅 Rm, 办公室, Primary B和 第二间卧室在主层.

通勤信息

Scarborough Go 火车站 (0.5公里)

房屋位置