10 Inn on The Park Dr 212

主要路口Banbury-Don Mills, Toronto
$1.178M 出售价格

房屋信息

Welcome To Chateau Auberge On The Park By Tridel, A Luxury Residence Beside Sunnybrook Park. This Rare 2-Bedroom + Den, 3-Bath Suite Features A Desirable Split-Bedroom Layout. The Thoughtfully Designed Floor Plan Offers Privacy, With Bedrooms On Opposite Sides, Plus A Separate Den And Breakfast Area Ideal For Working Or Dining. The Bright Open-Concept Living And Dining Space Is Filled With Natural Light From Large Windows And Opens To A Spacious West-Facing Balcony, Perfect For Afternoon Sun And Evening Sunsets. The Modern Kitchen Showcases Sleek Cabinetry, Stone Countertops, And Integrated Appliances. The Primary Bedroom Includes Generous Closet Space, A Private Ensuite, And Its Own Walkout Balcony, While The Second Bedroom Also Features An Ensuite And Large Closet. Residents Enjoy Premium Amenities Including 24-Hour Concierge, Indoor Pool, Fitness Centre, Elegant Party Lounge, Outdoor Terrace With BBQs, And Guest Suites & Plenty Of Guest/Visitor Parking. Located Steps To Sunnybrook Park, Close To Top Schools, Shopping, And The Upcoming Eglinton Crosstown LRT, With Easy Access To Major Highways And Downtown Toronto. A Rare Opportunity To Enjoy Refined Living Surrounded By Nature While Staying Connected To The City. Internet is including in the maintenance fee.

主要特征

  • 朝向: 西
  • 睡房: 2+1
  • 洗手间: 3
  • 车库:
  • 厨房: 1

重要信息

  • 空间: 1200-1399
  • 房龄: New
  • 管理费: $ 952.40
  • 地税: $
  • C12998292
  • Listing contracted with: RE/MAX REALTRON SMART CHOICE TEAM
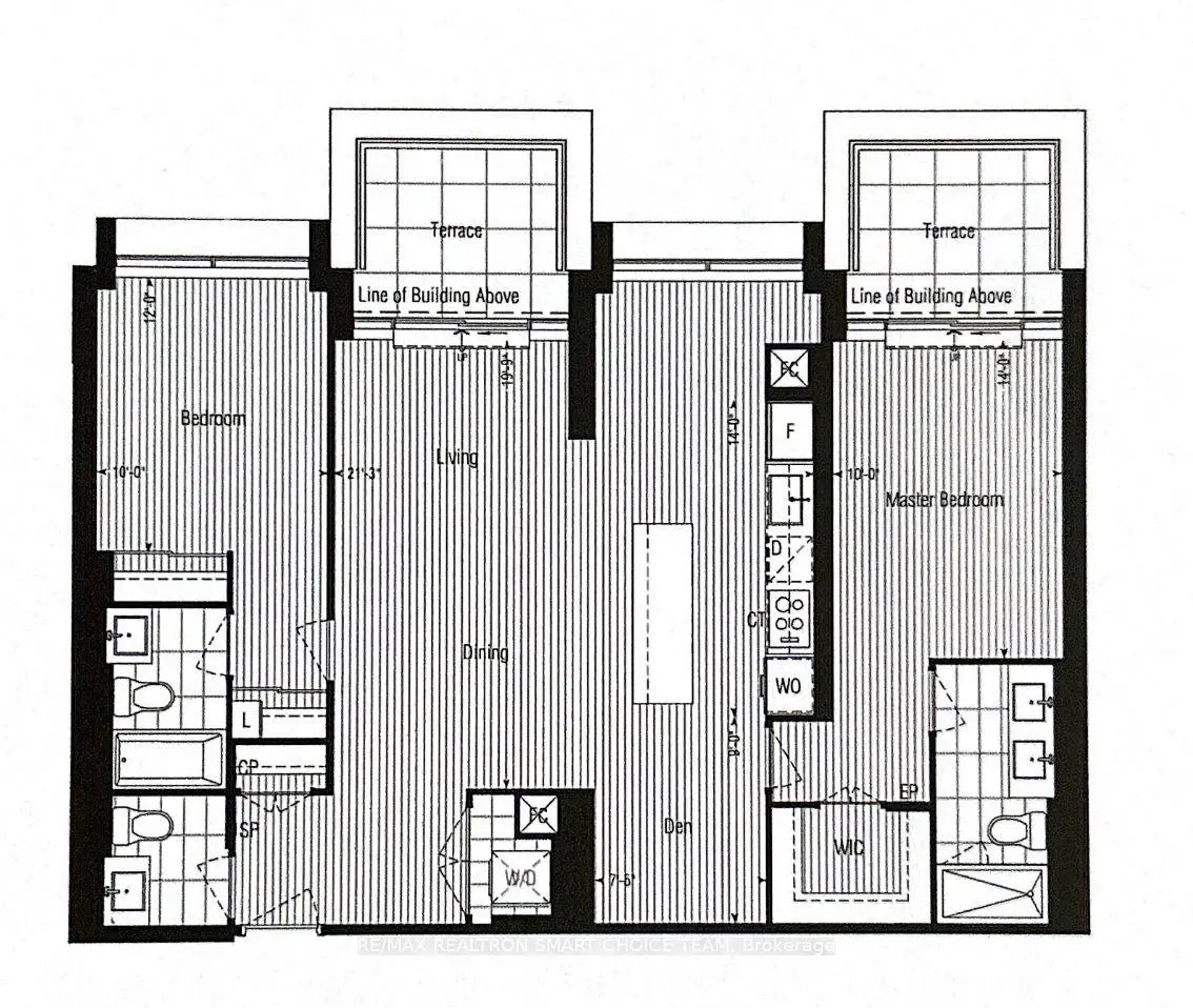
房间 尺寸(平方米) 细节描述
Primary B4.27x3.05

3pcs卫生间套间, 走出式露台

第二间卧室3.66x3.05

4pcs卫生间套间, 硬木地板, 大窗

客厅 Rm6.54x6.65

硬木地板, 走出式露台, 中心岛

厨房4.27x6.65

中心岛, 走出式露台, 合并餐饮

书房2.74x2.63

硬木地板

晚餐室 Rm6.54x6.65

合并客厅



卫生间 卫浴件数 所在楼层
1间3件套

主层

1间4件套

主层

1间2件套

主层



房屋简介

房屋位于北约克高级Banbury社区Leslie St & Eglinton Ave E交界附近, 这间2房3卫单车库Condo Apt户型朝西向. #212-10 Inn on The Park Dr拥有单停车位并带有一个室内储藏空间. 房屋及周边设施包括CountertopRange,CarpetFree,Built-InOven和Other等. .

Chateau Auberge Condos

10 Inn on The Park Dr是由房地产建筑商
TridelRecognized as the number one high-rise condo builder in the Greater Toronto Area, Tridel's design, quality, scale, capital, and service are considered top-notch.
开发的, 物业年龄1年左右。该公寓大楼大约有39层251个单元。Chateau Auberge Condos的设施包括用:前台服务,健身房,多媒体室,室外游泳池和会客厅。目前10 Inn on The Park Dr大约有4间公寓在售3间在出租。


学校信息

  • 小学

  • Level
    对口学区学校
    距离学校2.5公里 (开车大约7分钟)
  • Level
    对口学区学校
    距离学校6.6公里 (开车大约20分钟)
  • Level
    OUR LADY OF WISDOM (年级: JK - 8)
    天主教学校法语沉浸课程 天主教法语沉浸课程学校
    距离学校5.8公里 (开车大约17分钟)
  • Level
    ST BONAVENTURE (年级: 5 - 8)
    天主教学校法语沉浸课程 天主教法语沉浸课程学校
    距离学校1.6公里 (走路大约28分钟)
  • 中学

  • Level
    对口学区学校
    排名: 163/746 (分数: 7.3)   5年平均分: 176/746 (分数: 7.1)
    距离学校7.2公里 (开车大约22分钟)
  • Level
    Senator O'Connor (年级: 9-12)
    天主教学校 天主教学校
    距离学校4.3公里 (开车大约13分钟)
  • Level
    st. Patrick (年级: 9-12)
    天主教学校AP课程 天主教AP课程学校
    排名: 244/746 (分数: 6.9)   5年平均分: 222/746 (分数: 6.8)
    距离学校4.9公里 (开车大约15分钟)


地图位置



>