房屋信息
约K代尔孔多 2上市销售.给所有投资者带来绝好的机会,第一次买家和新家庭开始。这所"新"3年的建筑的特色是一个真正的豪华套房,有2个卧室,1个完整的浴室,1个停车站,1个洛K,后续洗衣房,平滑的天花板,巨大的露台可以享受."豪华的"大楼位于通往约K代尔商场和约K代尔地铁线路的几个台阶上.卧室除了彼此还有更多的隐私和不锈钢电器.大楼的特色是24小时警卫、聚会室、锻炼室、室外露台、游客停车等。一个地下停车场和一个储物柜拥有和包含。去约K代尔商场和地铁的台阶方便您一下对于投资者来说,目前租户每月收取2850.00加元的租金。不要让这个机会通过。
主要特征
- 朝向: 北

- 睡房: 2

- 洗手间: 1

- 车库: 1

- 厨房: 1

重要信息
- 空间: 600-699

- 管理费: $ 542.46

- 地税: $ 2550.49

- C12909744

- Listing contracted with: RE/MAX EXPERTS
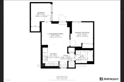
| 房间 | 尺寸(平方米) | 细节描述 | |
|---|---|---|---|
| 厨房 | 3.96x2.75 | ||
| 客厅 Rm | 3.96x3.04 | ||
| Bath | 1.22x1.82 | ||
| 洗衣房 | 1.22x0.92 | ||
| Primary B | 3.04x3.05 | ||
| 第二间卧室 | 2.75x2.44 |
| 卫生间 | 卫浴件数 | 所在楼层 | |
|---|---|---|---|
| 1间 | 3件套 | 主层 |
房屋简介
房屋位于中城区多伦多森林山北Lawrence社区Allen Rd and Ranee交界附近, 这间2房1卫单车库共管公寓户型朝北向. #317-120 Varna Dr拥有单停车位并带有一个室内储藏空间. 房屋及周边设施包括CarpetFree等. 厨房, 客厅 Rm, Bath, 洗衣房, Primary B和 第二间卧室在主层.Yorkdale Condo 2
120 Varna Dr是由房地产建筑商Context Development开发的, 物业年龄5年左右。Yorkdale Condo 2的设施包括用:健身房,前台服务,访客停车位和会客厅。每月物业管理费542.46加元包括用暖气,水和空调.学校信息
小学
-
-
-
-
-
中学
-
对口学区学校排名: 665/746 (分数: 3.8) 5年平均分: 599/746 (分数: 4.0)距离学校0.8公里 (走路大约14分钟)
-
-
Marshall McLuhan (年级: 9-12)
天主教AP课程学校
排名: 291/746 (分数: 6.6) 5年平均分: 222/746 (分数: 6.8)距离学校3.4公里 (开车大约10分钟)



























