房屋信息
亮相和 spicious 1+太阳房在有清晰的南面视图的珍贵相机建筑中!功能布局充满了自然光.封装有滑动门的太阳能,作为第二卧室或家用办公室。无敌位置,可直接从地下进入芬奇地铁站外加公交,Viva,YRT 和 GO-非常理想的,供想节省时间并不再需要一辆车的通勤者使用.进入商店、餐馆、公园和日常必需品。位于后方的厄尔·海格区享受昂贵的建筑设施,包括24小时客房、室内游泳池、健身房、桑拿、壁球场和客房。包括1个停车站和1个储物柜。最终用户或投资者寻求便利、强劲的租金需求和长期价值的理想
主要特征
- 朝向: 南

- 睡房: 1+1

- 洗手间: 1

- 车库: 1

- 厨房: 1

重要信息
- 空间: 700-799

- 管理费: $ 713.54

- 地税: $ 2330.00

- C12907094

- Listing contracted with: EXP REALTY
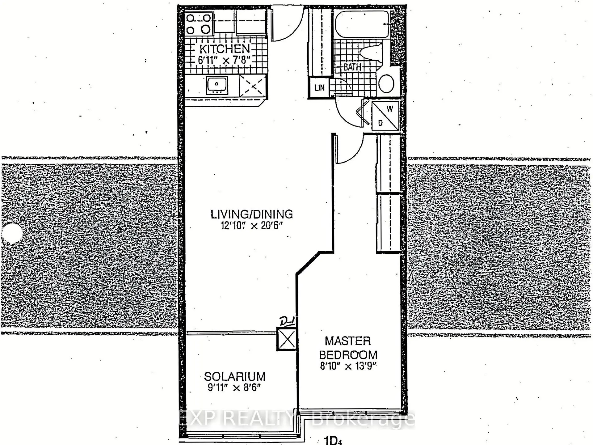
| 房间 | 尺寸(平方米) | 细节描述 | |
|---|---|---|---|
| 客厅 Rm | 6.25x3.91 | 复合地板, 合并日光浴室 |
|
| 晚餐室 Rm | 6.25x3.91 | 复合地板, 合并客厅 |
|
| 厨房 | 2.34x2.11 | 复合地板, |
|
| Primary B | 4.19x2.69 | 复合地板, |
|
| 书房 | 3.02x2.59 | 复合地板, 南向 |
| 卫生间 | 卫浴件数 | 所在楼层 | |
|---|---|---|---|
| 1间 | 4件套 | 主层 |
房屋简介
房屋位于北约克央街东侧Yonge & Finch交界附近, 这间1房1卫单车库Condo Apt户型朝南向. #1704-7 Bishop Ave拥有单停车位并带有一个室内储藏空间. 房屋及周边设施包括CarpetFree等. 客厅 Rm, 晚餐室 Rm, 厨房, Primary B和 书房在主层.Vogue Condominiums
7 Bishop Ave是由房地产建筑商Penta-Stolp Corporation开发的, 物业年龄36年左右。该公寓大楼大约有23层383个单元。Vogue Condominiums的设施包括用:健身房,前台服务,访客停车位,会客厅,壁球场,宾客套房,室内游泳池和桑拿房。每月物业管理费713.54加元包括用暖气,水,电和空调. 目前7 Bishop Ave大约有9间公寓在售3间在出租。学校信息
小学
-
-
-
-
-
中学
-
对口学区学校排名: 28/746 (分数: 8.8) 5年平均分: 26/746 (分数: 8.4)距离学校1.5公里 (走路大约26分钟)
-
St. Josephs Morrow Park (年级: 9-12)
天主教学校
距离学校2.0公里 (开车大约6分钟) -
Cardinal Carter-Arts (年级: 9-12)
天主教学校
距离学校2.0公里 (走路大约36分钟)








































