房屋信息
敦达斯广场花园小屋!美丽的角落单元和/2洗手间还有丹!非常亮和邀请单位与两个阳台! N 和在高楼曝光享受无所障碍的城市景色!在镇上最激动人心的邻居里!前往ryerson、多伦多大学、Eaton中心、George Brown,建筑设计按页面+斯蒂尔!造型师()极好! span >
主要特征
- 朝向: 西北

- 睡房: 2+1

- 洗手间: 2

- 车库:

- 厨房: 1

重要信息
- 空间: 700-799

- 管理费: $ 741.74

- 地税: $ 2782.86

- C12899680

- Listing contracted with: RE/MAX REALTRON REALTY INC.
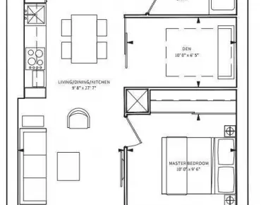
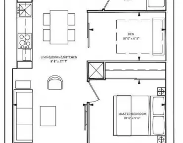
| 房间 | 尺寸(平方米) | 细节描述 | |
|---|---|---|---|
| 客厅 Rm | 7.50x2.80 | 复合地板, 合并餐饮, 走出式阳台 |
|
| 晚餐室 Rm | 7.50x2.80 | 复合地板, 合并客厅, 走出式阳台 |
|
| 厨房 | 7.50x2.80 | 复合地板, 合并餐饮, 不锈钢电器 |
|
| Primary B | 3.45x3.23 | 复合地板, 4pcs卫生间套间, 走出式阳台 |
|
| 第二间卧室 | 3.00x2.80 | 复合地板, 窗户, 壁橱 |
|
| 书房 | 2.40x2.40 | 复合地板, 窗户 |
| 卫生间 | 卫浴件数 | 所在楼层 | |
|---|---|---|---|
| 2间 | 4件套 | 主层 |
房屋简介
房屋位于多伦多市区东部Dundas St and Jarvis St交界附近, 这间2房2卫车库Condo Apt户型朝西北向. 房屋及周边设施包括Other等. 客厅 Rm, 晚餐室 Rm, 厨房, Primary B, 第二间卧室和 书房在一层.Dundas Square Gardens
251 Jarvis St是由房地产建筑商Easton Group of Hotels开发的, 物业年龄6年左右。该公寓大楼大约有49层1027个单元。Dundas Square Gardens的设施包括用:健身房,前台服务,屋顶花园,会客厅和室外游泳池。每月物业管理费741.74加元包括用暖气和空调. 目前251 Jarvis St大约有19间公寓在售35间在出租。通勤信息
Dundas 地铁站 (0.5公里)Union Go 火车站 (1.4公里)




























