715 Don Mills Rd 103

主要路口Flemingdon Park, Toronto
$499.9K 出售价格

房屋信息

步入拥有家园在Glen Valley公寓的770英尺角头套房中,这2个卧室带了罕见的空间,阳光与南和西两个接触。完整 upded 从头到尾,它提供现代设计,优质的完成,和一个真实的移动-在准备的生活方式。开放-概念活区地物有:奢侈的塑胶木板地板,音响-吸附面板,更新的修整,新道口,现代的固定装置,以及一堵起弦的进入nt墙.全新厨房装有推开内阁,Herringbone木制柜台,集成冰箱/冰柜和洗碗机,加上足够的存储和柜台空间.实用设备包括一款无污的钢材堆积瓦舍(洗衣机/甩干机(2023))和一款由冰箱和洗碗机(所有 2024!)集成而成的黑炉.步入温泉类似浴室,被深思熟虑地重造了现代名人堂,石英逆冲台,奢侈的塑胶瓷砖,Limewash 绘画,Hed/defogging镜子,优雅的Bowl水槽,以及全新修复.优质的顶部-down/下-Up滚轴百叶窗提供理想光和隐私控制.停车和洛K也包括在内月费涵盖一切!-电、热暖、水、有线电视和第二个停车点,每月50加元,足够的游客停车。多伦多最快成长的口袋之一的不可战胜位置. donMills、dVP、公交、公园和学校的商店,准备就绪,广泛翻新,为"区域"提供特殊价值。这是你一直在等待的人!

主要特征

  • 朝向: 西南
  • 睡房: 2
  • 洗手间: 1
  • 车库: 1
  • 厨房: 1

重要信息

  • 空间: 700-799
  • 管理费: $ 931.00
  • 地税: $ 1214.08
  • C12881076
  • Listing contracted with: RE/MAX HALLMARK YORK GROUP REALTY LTD.
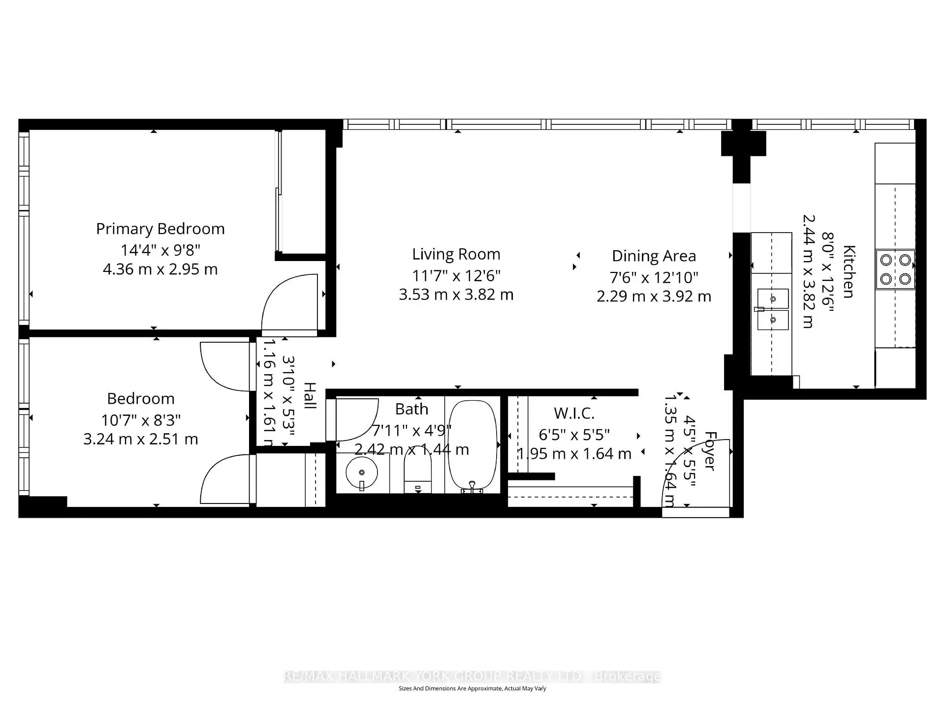
房间 尺寸(平方米) 细节描述
门厅1.35x1.64

复合地板,

客厅 Rm3.53x3.82

复合地板, 开放式概念, 合并餐饮

晚餐室 Rm2.29x3.92

复合地板, 合并客厅, 大窗

厨房2.44x3.82

翻新, 厨房, 瓷砖地板

Primary B4.36x2.95

复合地板, 镜面衣橱, 大窗

第二间卧室3.24x2.51

复合地板, 壁橱, 大窗

Bath2.42x1.44

更新, 瓷砖地板



卫生间 卫浴件数 所在楼层
1间4件套



房屋简介

房屋位于Don Mills and Eglinton交界附近, 这间2房1卫单车库Condo Apt户型朝西南向. #103-715 Don Mills Rd拥有单停车位. 房屋及周边设施包括CarpetFree等. 门厅, 客厅 Rm, 晚餐室 Rm, 厨房, Primary B, 第二间卧室和 Bath在主层.

715 Don Mills

715 Don Mills Rd是由房地产建筑商Condo Developer开发的, 物业年龄54年左右。该公寓大楼大约有26层200个单元。715 Don Mills的设施包括用:健身房,安全系统,桑拿房,室内游泳池,访客停车位和会客厅。每月物业管理费931.00加元包括用暖气,水和电. 目前715 Don Mills Rd大约有4间公寓在售4间在出租。


学校信息

  • 小学

  • Level
    对口学区学校
    在 3022学校里排名 2825 (分数: 3.0)
    距离学校0.3公里 (走路大约5分钟)
  • Level
    对口学区学校
    距离学校0.2公里 (走路大约3分钟)
  • Level
    对口学区学校
    距离学校5.0公里 (开车大约15分钟)
  • Level
    OUR LADY OF WISDOM (年级: JK - 8)
    天主教学校法语沉浸课程 天主教法语沉浸课程学校
    距离学校6.1公里 (开车大约18分钟)
  • Level
    ST JOHN XXIII (年级: JK - 8) | 学区边界
    天主教学校法语沉浸课程 天主教法语沉浸课程学校
    在 3022学校里排名 67 (分数: 8.2)   5年平均分: 152/3022 (分数: 7.3)
    距离学校0.4公里 (走路大约8分钟)
  • Level
    ST BONAVENTURE (年级: 5 - 8)
    天主教学校法语沉浸课程 天主教法语沉浸课程学校
    距离学校3.1公里 (开车大约9分钟)
  • 中学

  • Level
    对口学区学校
    排名: 671/746 (分数: 3.7)   5年平均分: 436/746 (分数: 5.5)
    距离学校0.3公里 (走路大约6分钟)
  • Level
    对口学区学校
    排名: 163/746 (分数: 7.3)   5年平均分: 176/746 (分数: 7.1)
    距离学校5.6公里 (开车大约17分钟)
  • Level
    Senator O'Connor (年级: 9-12)
    天主教学校 天主教学校
    距离学校4.6公里 (开车大约14分钟)
  • Level
    st. Patrick (年级: 9-12)
    天主教学校AP课程 天主教AP课程学校
    排名: 244/746 (分数: 6.9)   5年平均分: 222/746 (分数: 6.8)
    距离学校3.6公里 (开车大约11分钟)


地图位置



>