房屋信息
欢迎来到Leslie 和 sheppard的这个高需求阳光填充的 Concord adex 单元 1+1 通过上下层窗口无阻取景的卧室*连厨房区域*大概645sf +大存储* Convention 靠近地铁站的位置单位里有大连锁店登可转换为第2大寝室*自然之光中的空间*装有花岗岩计数器和回弹*带双衣柜的舒适卧室*打开概念*清空和宽敞*移动在条件中*享受上层设施、按摩浴缸、屋顶休息室和烧烤、聚会室、游客停放和洗车、24 Hr安保、宠物温泉、客套间、在和户外Whirlpols、桑拿、Wights/Cardio 房间.到地铁站、IKEa、社区中心、Canadien Tire、Bayview 村、TC、oriole GO、高速公路 401/404/dVP和更多! 1 包括泊车。
主要特征
- 朝向: 西

- 睡房: 1+1

- 洗手间: 1

- 车库: 1

- 厨房: 1

重要信息
- 空间: 600-699

- 房龄: 0-5
- 管理费: $ 592.12

- 地税: $ 2435.70

- C12825032

- Listing contracted with: RE/MAX PARTNERS REALTY INC.
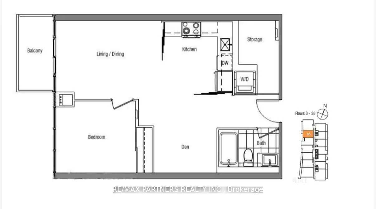
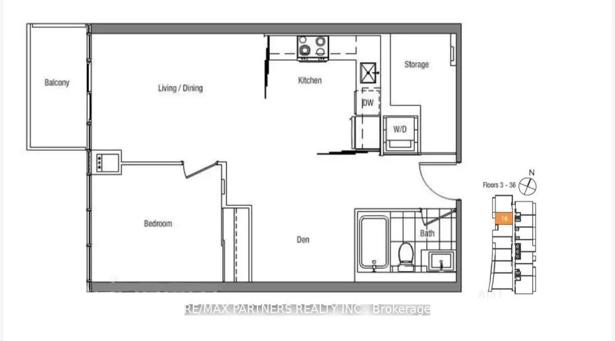
| 房间 | 尺寸(平方米) | 细节描述 | |
|---|---|---|---|
| 晚餐室 Rm | 5.14x2.57 | 合并客厅, 复合地板, 走出式阳台 |
|
| 客厅 Rm | 5.14x2.57 | 合并餐饮, 复合地板, 西向 |
|
| 厨房 | 2.90x2.24 | 开放式概念, 现代厨房, |
|
| Primary B | 2.92x2.94 | 壁橱, 复合地板, 大窗 |
|
| 书房 | 2.12x2.41 | 开放式概念, 复合地板 |
| 卫生间 | 卫浴件数 | 所在楼层 | |
|---|---|---|---|
| 1间 | 4件套 |
房屋简介
房屋位于北约克东部Leslie St. and Sheppard Ave.交界附近, 这间1房1卫单车库Condo Apt户型朝西向. #716-121 Mcmahon Dr拥有单停车位并带有一个室内储藏空间. 房屋及周边设施包括Other等. 晚餐室 Rm, 客厅 Rm, 厨房, Primary B和 书房在主层.Tango 1
121 Mcmahon Dr是由房地产建筑商ConcordConcord Adex Development Co., Ltd. (Concord Adex) is a subsidiary of Concord Adex Pacific Group Inc. Concord World Expo was established in 1987 and headquartered in Vancouver.
开发的, 物业年龄12年左右。该公寓大楼大约有36层425个单元。Tango 1的设施包括用:健身房,前台服务,会客厅,宾客套房,访客停车位和屋顶花园。每月物业管理费592.12加元包括用水,暖气和空调. 目前121 Mcmahon Dr大约有9间公寓在售14间在出租。 学校信息
小学
-
-
-
-
-
中学
-
对口学区学校排名: 474/746 (分数: 5.5) 5年平均分: 436/746 (分数: 5.5)距离学校2.3公里 (开车大约7分钟)
-
Cardinal Carter-Arts (年级: 9-12)
天主教学校
距离学校3.2公里 (开车大约10分钟) -
St. Josephs Morrow Park (年级: 9-12)
天主教学校
距离学校3.4公里 (开车大约10分钟)
通勤信息
Leslie 地铁站 (0.4公里)Oriole Go 火车站 (0.6公里)






































